West of Exe says ..
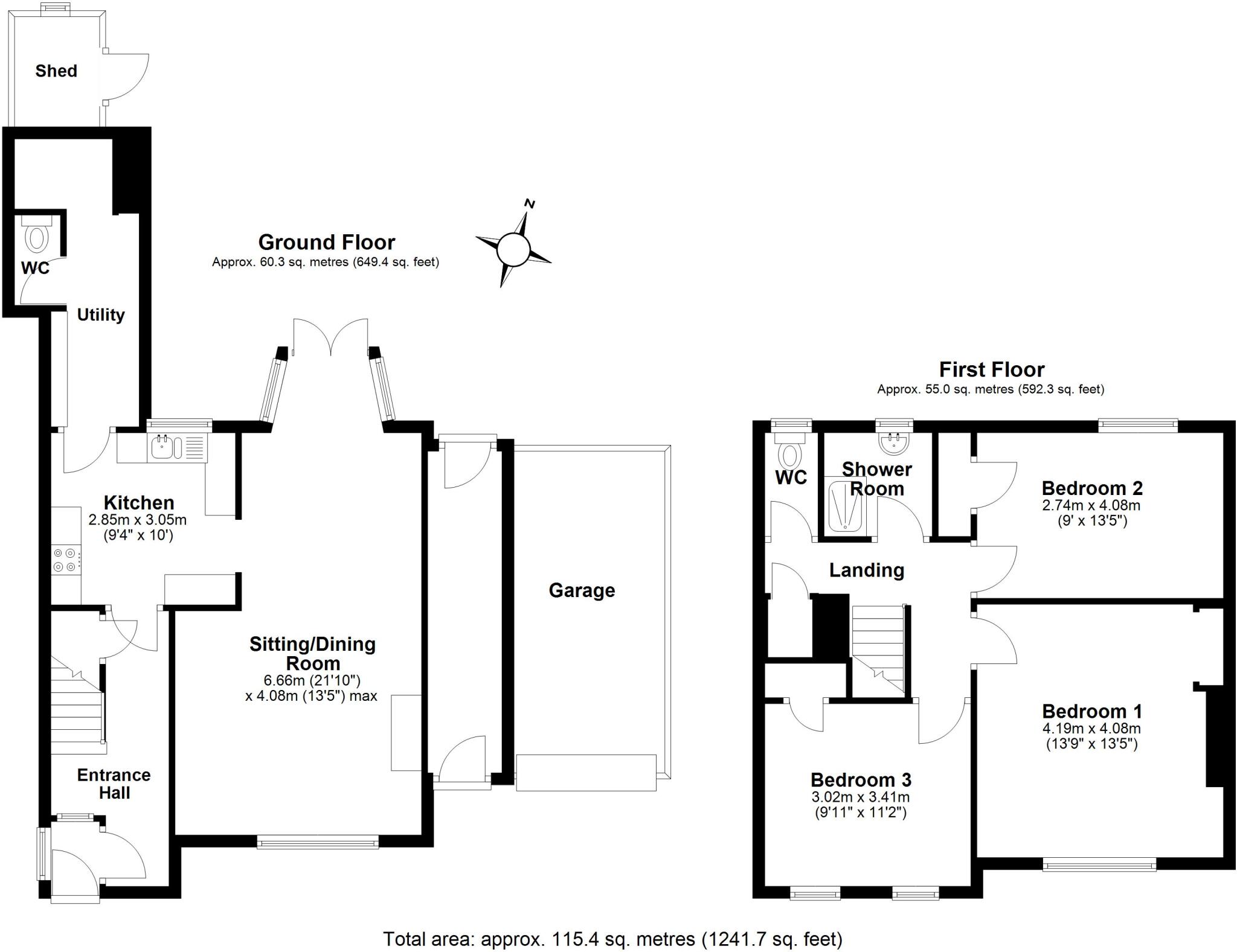
Situated in a highly sought-after residential area on the eastern outskirts of Exeter is this wonderful very spacious three double bedroom end of terrace house - offering exceptional potential for a growing family or those looking to invest and extend (subject to planning consents). The property ...
Property Oracle says ..
Therefore, we give this property 7 / 10. *Disclaimer: This is our option and does constitute a recommendation or financial advice. Do your own research. *
- Price
- 8
- Condition
- 6
- Location
- 7
- Land
- 7
- Bedrooms
- 3
- Bathrooms
- 1
- Sqft (est)
- 801.31
The heatmap indicates the level of crime in the area. The color of the heatmap indicates the crime severity and recency.
Metrics Year-on-Year
- Average area value
- 528,231.00 £Increased by 3.23 %
- Est sale value
- 513,639.71 £Increased by 28.71 %
- Average area rental value
- 1,833.00 £/moIncreased by 1.05 %
- Est letting value
- 1,602.62 £/moIncreased by 100.00 %
- Est rental Yield
- 4.16 %Decreased by 2.12 %
- Crime Rate
- 34.00 %Unchanged by 0.00 %
from 511,722.00 £
from 399,052.38 £
from 1,814.00 £/mo
from 801.31 £/mo
from 4.25 %
from 34.00 %
Agent Activity
West of Exe marked this listing as sold.
West of Exe created the listing.
Nearby Schools
| Name | Type | Ofsted | Distance |
|---|---|---|---|
| Countess Wear Exeter | Children's Centre | 0.79 KM | |
| Countess Wear Community School | Community School | Requires improvement | 0.90 KM |
| Trinity Church Of England Voluntary Aided Primary And Nursery School | Voluntary Aided School | 1.39 KM | |
| Infocus School | Non-maintained Special School | Special Measures | 1.40 KM |
| Infocus College | Special Post 16 Institution | Requires improvement | 1.40 KM |
Images
Nearby Streets
| Name | Average Price | Average Sqft | Distance |
|---|---|---|---|
| Riverside Meadow | £ 302,500 | 0 | 0.00 KM |
| Sleepy Hollow | £ 200,000 | 0 | 0.00 KM |
| Central Avenue | £ 260,000 | 0 | 0.00 KM |
| The Chase | £ 250,000 | 0 | 0.00 KM |
| Berkeley Park | £ 0 | 0 | 0.00 KM |
Nearby Transport
| Name | NLC | TLC | Distance |
|---|---|---|---|
| Newcourt | 9589 | NCO | 1.83 KM |
| Topsham | 5758 | TOP | 2.46 KM |
| Digby And Sowton | 5753 | DIG | 2.55 KM |
| Polsloe Bridge | 3422 | POL | 4.53 KM |
| Pinhoe | 5757 | PIN | 5.16 KM |
Nearby Listings
| Address | Price | Type | Score | Distance |
|---|---|---|---|---|
| Seabrook Avenue, Exeter | £ 330,000 | BUY | 6 / 10 | 0.00 KM |
| Seabrook Avenue, Exeter | £ 330,000 | BUY | 7 / 10 | 0.00 KM |
| Newport Road, Countess Wear, Exeter, EX2 | £ 325,000 | BUY | 6 / 10 | 0.07 KM |
| Seabrook Mews, Exeter | £ 190,000 | BUY | 7 / 10 | 0.20 KM |
| Seabrook Mews, Exeter | £ 350,000 | BUY | 7 / 10 | 0.22 KM |
Nearby Properties
| Address | Price | Distance |
|---|---|---|
| 8 Seabrook Avenue | £ 178,000 | 0.01 KM |
| 11 Seabrook Avenue | £ 205,000 | 0.01 KM |
| 23 Seabrook Avenue | £ 169,950 | 0.01 KM |
| 21 Seabrook Avenue | £ 197,000 | 0.01 KM |
| 15 Seabrook Avenue | £ 241,000 | 0.01 KM |