Ben Rose says ..
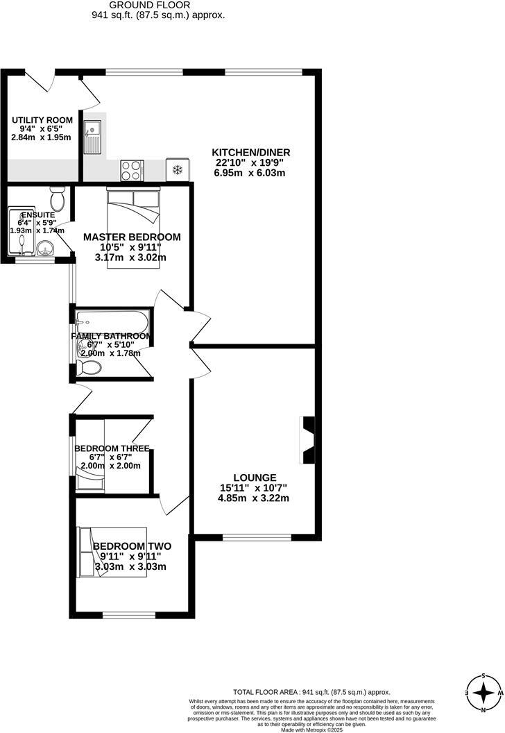
Ben Rose Estate Agents are delighted to introduce this charming three bedroom semi-detached bungalow just on the outskirts of Leyland. This delightful home would make the ideal purchase for a couple or someone looking to downsize. The home is conveniently located near local supermarkets and schoo...
Property Oracle says ..
Therefore, we give this property 7 / 10. *Disclaimer: This is our option and does constitute a recommendation or financial advice. Do your own research. *
- Price
- 9
- Condition
- 7
- Location
- 8
- Land
- 7
- Bedrooms
- 3
- Bathrooms
- 2
- Sqft (est)
- 941.00
The heatmap indicates the level of crime in the area. The color of the heatmap indicates the crime severity and recency.
Metrics Year-on-Year
- Average area value
- 472,750.00 £Decreased by 21.88 %
- Est sale value
- 723,629.00 £Increased by 27.74 %
- Average area rental value
- 1,418.00 £/moDecreased by 35.04 %
- Est letting value
- 1,882.00 £/moUnchanged by 0.00 %
- Est rental Yield
- 3.60 %Decreased by 16.86 %
- Crime Rate
- 0.00 %
from 605,189.00 £
from 566,482.00 £
from 2,183.00 £/mo
from 1,882.00 £/mo
from 4.33 %
from 0.00 %
Agent Activity
Ben Rose created the listing.
Nearby Schools
| Name | Type | Ofsted | Distance |
|---|---|---|---|
| St Catherine'S Rc Primary School | Voluntary Aided School | Good | 0.16 KM |
| Lever House Primary School | Community School | Good | 0.42 KM |
| Roselyn House School | Other Independent Special School | Good | 0.44 KM |
| Farington Primary School | Academy Sponsor Led | 0.77 KM | |
| Lancaster Lane Community Primary School | Community School | Good | 1.19 KM |
Images
Nearby Streets
| Name | Average Price | Average Sqft | Distance |
|---|---|---|---|
| The Chase | £ 360,000 | 0 | 0.00 KM |
| St Margaret's Road | £ 0 | 0 | 0.00 KM |
| St Marlow Avenue | £ 0 | 0 | 0.00 KM |
| Brookside Cottages | £ 0 | 0 | 0.00 KM |
| Bow Street | £ 260,000 | 0 | 0.00 KM |
Nearby Transport
| Name | NLC | TLC | Distance |
|---|---|---|---|
| Leyland | 2710 | LEY | 0.95 KM |
| Lostock Hall | 2689 | LOH | 2.79 KM |
| Bamber Bridge | 2561 | BMB | 3.53 KM |
| Buckshaw Parkway | 7501 | BSV | 3.63 KM |
| Euxton Balshaw Lane | 2080 | EBA | 4.54 KM |
Nearby Listings
| Address | Price | Type | Score | Distance |
|---|---|---|---|---|
| St. Davids Road, Leyland | £ 240,000 | BUY | 7 / 10 | 0.00 KM |
| St. Davids Road, Farington Moss. Leyland | £ 229,950 | BUY | 7 / 10 | 0.06 KM |
| St. Davids Road, Leyland, Lancashire, PR25 | £ 220,000 | BUY | 7 / 10 | 0.06 KM |
| St. Davids Road, Leyland, PR25 | £ 230,000 | BUY | 6 / 10 | 0.10 KM |
| St. Davids Road, Leyland | £ 240,000 | BUY | 7 / 10 | 0.10 KM |
Nearby Properties
| Address | Price | Distance |
|---|---|---|
| 120 St Davids Road | £ 205,000 | 0.06 KM |
| 29 St Davids Road | £ 122,500 | 0.06 KM |
| 82 St Davids Road | £ 130,000 | 0.06 KM |
| 128 St Davids Road | £ 119,000 | 0.06 KM |
| 134 St Davids Road | £ 147,000 | 0.06 KM |