30a Main Street, Bentham
FI

30a Main Street, Bentham

By Fisher Hopper

£ 205,000

Reviews

2 out of 5 stars

Fisher Hopper says ..

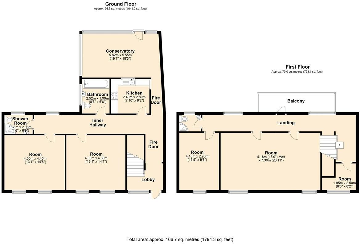
A substantial property in a central location, High Bentham. Conversion potential for a variety of uses, both residential and commercial. With off road parking and outside space. Domestic registration pending.

Property Oracle says ..

This three-bedroom, three-bathroom property located on Main Street in Bentham, North Yorkshire, presents a mixed bag of opportunities and challenges. Its central location is highly advantageous, offering proximity to Bentham train station and several well-regarded schools. This makes the property attractive for families and commuters. However, the property is clearly in need of significant modernisation and repair. The photographic evidence shows a clear need for renovation work to update the property to a contemporary standard of living. Some areas exhibit extensive wear, while others such as the kitchen suggest a degree of modernisation, but the property in its current condition is not habitable. Despite the need for significant updates, the property shows potential. The presence of a conservatory and small yard adds to the outside space, although this area is limited. The price of £205,000 may reflect the property’s potential for conversion, but potential buyers must factor in the considerable cost of renovations and modernizations. Overall, the property is suited to buyers with renovation experience, or buyers who desire a property that can be converted to commercial use. Those looking for a move-in-ready property will likely want to look elsewhere. The lack of detailed information on square footage for comparable properties prevents a more precise evaluation. However, this property has a blend of benefits and drawbacks that buyers should carefully consider.

Therefore, we give this property 5 / 10. *Disclaimer: This is our option and does constitute a recommendation or financial advice. Do your own research. *

Price
7
Condition
4
Location
7
Land
3
Bedrooms
3
Bathrooms
3
Sqft (est)
1,794.34

The heatmap indicates the level of crime in the area. The color of the heatmap indicates the crime severity and recency.

Metrics Year-on-Year

Average area value
1,245,000.00 £
Increased by 45.13 %
from 857,841.00 £
Est sale value
1,352,932.36 £
Decreased by 10.13 %
from 1,505,451.26 £
Average area rental value
2,513.00 £/mo
Increased by 0.60 %
from 2,498.00 £/mo
Est letting value
1,794.34 £/mo
Decreased by 50.00 %
from 3,588.68 £/mo
Est rental Yield
2.42 %
Decreased by 30.66 %
from 3.49 %
Crime Rate
318.00 %
Unchanged by 0.00 %
from 318.00 %

Agent Activity

  • Fisher Hopper created the listing.

Nearby Schools

NameTypeOfstedDistance
Bentham Community Primary SchoolCommunity SchoolGood1.00 KM
Stonegate SchoolOther Independent Special SchoolGood2.87 KM
Cedar House SchoolOther Independent Special SchoolGood3.69 KM
Tatham Fells Church Of England Voluntary Controlled Primary SchoolVoluntary Controlled SchoolGood4.85 KM
Ingleton Primary SchoolCommunity SchoolGood5.77 KM

Images

Inner Hallway Shower Room Shower Room Bathroom Conservatory Conservatory Room Four Room Three Room Three Shower Room External 30a Main Street 30a Main Street Conservatory First Floor Landing Room Three Room Four External Inner Hallway Room One Room Two Room Two 30a Main Street Kitchen Parking Ground Floor - Inner Hallway Room One Ground Floor - Inner Hallway Kitchen Bathroom Inner Hallway to Conservatory Conservatory

Nearby Streets

NameAverage PriceAverage SqftDistance
Gas House Lane £ 000.00 KM
South View £ 000.00 KM
Scholars Rise £ 149,00000.00 KM
Mayfield Road £ 212,00000.00 KM
Butts Lane £ 000.00 KM

Nearby Transport

NameNLCTLCDistance
Bentham2676BEN0.31 KM
Wennington2681WNN8.45 KM

Nearby Listings

AddressPriceTypeScoreDistance
30a Main Street, Bentham £ 205,000BUY5 / 100.00 KM
Honeypot Cottage, 3 Police Yard, Bentham £ 189,950BUY6 / 100.08 KM
Honey Pot Cottage, Police Yard, High Bentham, LA2 £ 179,950BUY8 / 100.08 KM
Grasmere Drive, Bentham, Lancaster, North Yorkshire, LA2 £ 210,000BUY6 / 100.11 KM
8 Station Road, Bentham, LA2 7LF £ 235,000BUY6 / 100.14 KM

Nearby Properties

AddressPriceDistance
31a Main Street £ 75,0000.03 KM
Red House £ 300,0000.03 KM
25 Main Street £ 180,0000.03 KM
27 Main Street £ 150,0000.04 KM
9 Mill Gardens £ 125,0000.05 KM