Cariad Property says ..
ADORABLE COTTAGE, SOUGHT AFTER VILLAGE POSITION, perfect for amenities and travel links, two spacious bedrooms, private garden with the woodland surrounding it, no chain, a real gem.
Property Oracle says ..
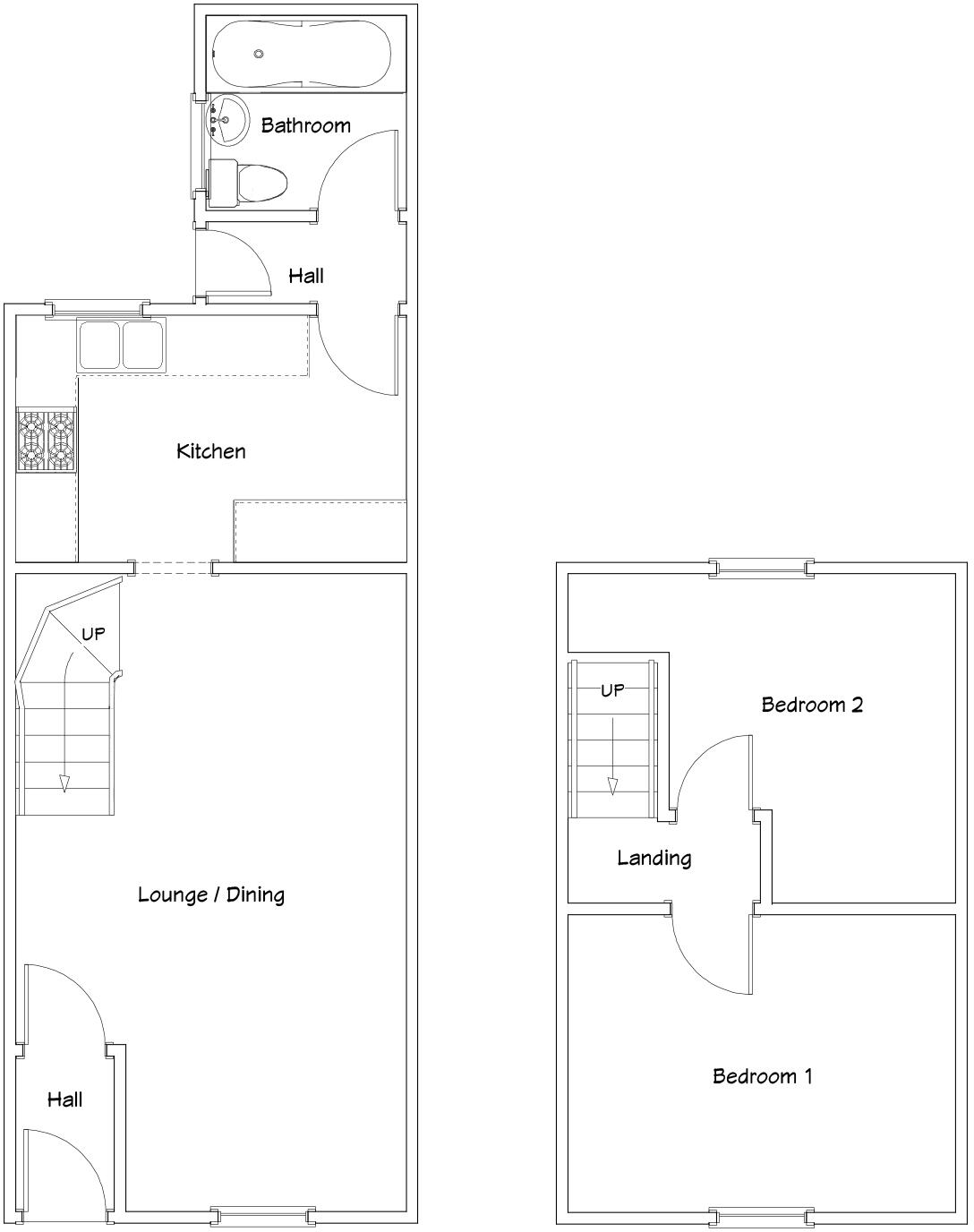
This two-bedroom end-of-terrace house located on Wood Street, Cwmcarn, is presented for sale at £139,995. The property’s key features include a recently modernised kitchen and bathroom. The kitchen boasts modern cabinetry and tiling, creating a contemporary feel. The bathroom is similarly updated, offering a modern and clean space. However, some areas of the house are in need of renovation. At least one bedroom displays noticeable damage and requires redecoration and repair work. The property benefits from a small, paved garden that could be improved with some effort. The location benefits from being close to Cwmcarn Primary school, and has reasonably convenient links to transport via the nearby train stations. Overall, the property represents a mixed bag, presenting a potentially lucrative opportunity for a buyer willing to invest time and resources in updating aspects of the property. Additional information regarding the average price per square foot for the area, and a full structural survey would help form a more conclusive evaluation. Given the lack of information regarding the specifics of nearby amenities, this affects the overall perceived value positively and negatively. The property’s selling points are the updated kitchen and bathroom and its location relative to schooling and transportation, however the need for renovation in parts of the property and the small garden are limitations.
Therefore, we give this property 5 / 10. *Disclaimer: This is our option and does constitute a recommendation or financial advice. Do your own research. *
- Price
- 7
- Condition
- 5
- Location
- 7
- Land
- 3
- Bedrooms
- 2
- Bathrooms
- 1
- Sqft (est)
- 730.06
The heatmap indicates the level of crime in the area. The color of the heatmap indicates the crime severity and recency.
Metrics Year-on-Year
- Average area value
- 186,686.00 £Decreased by 9.88 %
- Est sale value
- 55,484.56 £Decreased by 70.43 %
- Average area rental value
- 907.00 £/moIncreased by 11.98 %
- Est letting value
- 0.00 £/moDecreased by 100.00 %
- Est rental Yield
- 5.83 %Increased by 24.31 %
- Crime Rate
- 26.00 %Unchanged by 0.00 %
Agent Activity
Cariad Property created the listing.
Nearby Schools
| Name | Type | Ofsted | Distance |
|---|---|---|---|
| Cwmcarn Primary School | Welsh Establishment | 0.21 KM | |
| Y.G. Cwm Gwyddon | Welsh Establishment | 1.30 KM | |
| Waunfawr Primary School | Welsh Establishment | 1.97 KM | |
| Abercarn Primary School | Welsh Establishment | 2.09 KM | |
| Newbridge School | Welsh Establishment | 3.38 KM |
Images
Nearby Streets
| Name | Average Price | Average Sqft | Distance |
|---|---|---|---|
| James Ville | £ 0 | 0 | 0.00 KM |
| Twyncarn Road | £ 0 | 0 | 0.00 KM |
| High Street | £ 0 | 0 | 0.00 KM |
| Park Place | £ 250,000 | 0 | 0.00 KM |
| Park Street | £ 168,000 | 0 | 0.00 KM |
Nearby Transport
| Name | NLC | TLC | Distance |
|---|---|---|---|
| Crosskeys | 9902 | CKY | 1.78 KM |
| Newbridge | 9919 | NBE | 3.57 KM |
| Risca And Pontymister | 9920 | RCA | 5.35 KM |
| Llanhilleth | 9916 | LTH | 7.11 KM |
| Rogerstone | 9921 | ROR | 8.31 KM |
Nearby Listings
| Address | Price | Type | Score | Distance |
|---|---|---|---|---|
| Wood Street,CWMCARN, NP11 | £ 139,995 | BUY | 5 / 10 | 0.00 KM |
| Wood Street, Cwmcarn, NP11 | £ 145,000 | BUY | 7 / 10 | 0.03 KM |
| Newport Road, CWMCARN, NEWPORT, NP11 | £ 157,995 | BUY | 6 / 10 | 0.07 KM |
| Wood Street, Cwmcarn, Newport | £ 140,000 | BUY | 7 / 10 | 0.08 KM |
| Newport Road, Cwmcarn, Newport | £ 164,950 | BUY | 5 / 10 | 0.13 KM |
Nearby Properties
| Address | Price | Distance |
|---|---|---|
| 31 Wood Street | £ 50,000 | 0.00 KM |
| 25 Wood Street | £ 56,500 | 0.00 KM |
| 26 Wood Street | £ 73,000 | 0.00 KM |
| 32 Wood Street | £ 94,000 | 0.00 KM |
| 34 Wood Street | £ 129,500 | 0.00 KM |