Kelvin Gate, Bracknell, Berkshire, RG12
By Hat and Home
£ 220,000
Reviews
3 out of 5 stars
Hat and Home says ..
A perfect starter home or fantastic investment property, this apartment is located within the heart of Bracknell town centre and benefits from being sold with no onward chain complications.
Property Oracle says ..
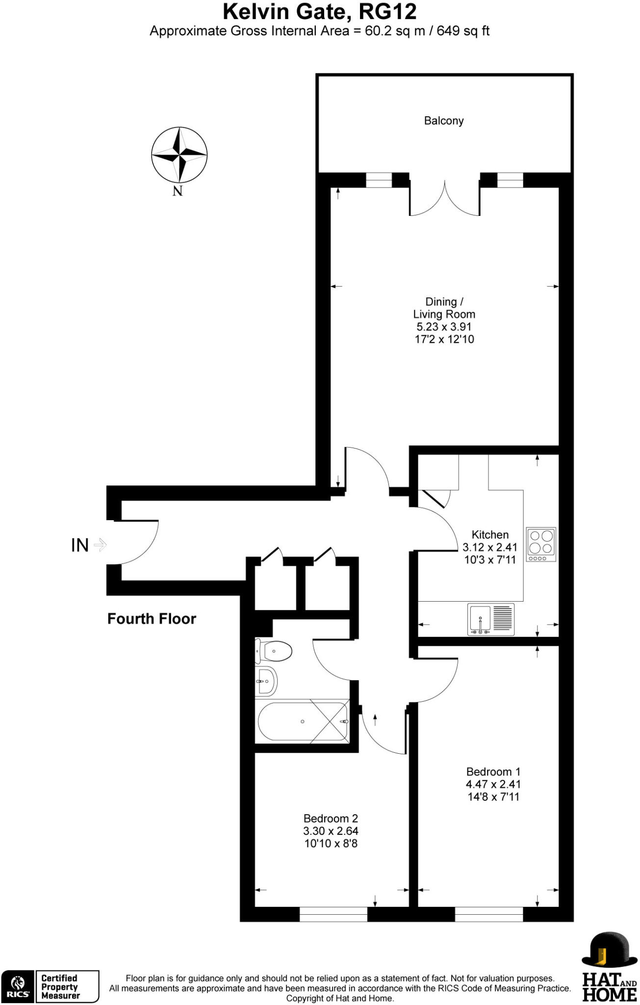
This property is a two-bedroom apartment located in Bracknell, Berkshire. The apartment is modern and appears to be in good condition based on the provided images. While the apartment itself is in good condition, the surrounding area shows a mix of property types and conditions. The property is conveniently located near several schools and transportation options, including Bracknell train station, which is approximately 1.04 km away. However, the plot size is relatively small at 649 sqft. Compared to the average price per sqft in the area (£419), the listed price of £220,000 seems slightly high, considering the smaller size of the apartment and the relatively modest plot size. More information on the specific features and amenities of the apartment would be needed to provide a more comprehensive analysis. The average price for properties in the area is significantly higher (£366,364) than the listed price of this property, but the average size is also much larger (874 sqft).
Therefore, we give this property 6 / 10. *Disclaimer: This is our option and does constitute a recommendation or financial advice. Do your own research. *
- Price
- 6
- Condition
- 8
- Location
- 7
- Land
- 3
- Bedrooms
- 2
- Bathrooms
- 1
- Sqft (est)
- 91.16
- Lot (est)
- 649.00
The heatmap indicates the level of crime in the area. The color of the heatmap indicates the crime severity and recency.
Metrics Year-on-Year
- Average area value
- 333,000.00 £Decreased by 4.86 %
- Est sale value
- 39,107.64 £Increased by 30.00 %
- Average area rental value
- 1,472.00 £/moIncreased by 12.45 %
- Est letting value
- 91.16 £/moUnchanged by 0.00 %
- Est rental Yield
- 5.30 %Increased by 18.04 %
- Crime Rate
- 14.00 %Unchanged by 0.00 %
Agent Activity
Hat and Home created the listing.
Nearby Schools
| Name | Type | Ofsted | Distance |
|---|---|---|---|
| St Joseph'S Catholic Primary School, Bracknell | Voluntary Aided School | Outstanding | 0.32 KM |
| Garth Hill College | Community School | Good | 0.60 KM |
| Ranelagh School | Academy Converter | Outstanding | 0.68 KM |
| Sandy Lane Primary School | Community School | Good | 0.98 KM |
| Holly Spring Primary School | Community School | Good | 1.09 KM |
Images
Nearby Streets
| Name | Average Price | Average Sqft | Distance |
|---|---|---|---|
| Park Road | £ 0 | 0 | 0.00 KM |
| Willow Drive | £ 0 | 0 | 0.00 KM |
| Weather Way | £ 0 | 0 | 0.00 KM |
| Dashwood Close | £ 585,000 | 0 | 0.00 KM |
| Kenilworth Avenue | £ 550,000 | 0 | 0.00 KM |
Nearby Transport
| Name | NLC | TLC | Distance |
|---|---|---|---|
| Bracknell | 5693 | BCE | 1.04 KM |
| Martins Heron | 5692 | MAO | 2.26 KM |
| Ascot (Berks) | 5666 | ACT | 7.49 KM |
| Bagshot | 5681 | BAG | 8.32 KM |
| Camberley | 5682 | CAM | 8.90 KM |
Nearby Listings
| Address | Price | Type | Score | Distance |
|---|---|---|---|---|
| Kelvin Gate, Bracknell, Berkshire, RG12 | £ 220,000 | BUY | 6 / 10 | 0.00 KM |
| Kelvin Gate, Bracknell, Berkshire, RG12 | £ 200,000 | BUY | 5 / 10 | 0.01 KM |
| Kelvin Gate, Bracknell, RG12 | £ 73,500 | BUY | Unknown | 0.01 KM |
| Kelvin Gate, Bracknell, Berkshire, RG12 | £ 200,000 | BUY | Unknown | 0.01 KM |
| Kelvin Gate, Bracknell, Berkshire | £ 220,000 | BUY | 6 / 10 | 0.01 KM |
Nearby Properties
| Address | Price | Distance |
|---|---|---|
| 203 Kelvin Gate | £ 120,000 | 0.01 KM |
| 172 Kelvin Gate | £ 224,000 | 0.01 KM |
| 170 Kelvin Gate | £ 150,000 | 0.01 KM |
| 175 Kelvin Gate | £ 174,000 | 0.01 KM |
| 156 Kelvin Gate | £ 165,000 | 0.01 KM |