Harrow Close, Addlestone, Surrey
By Leaders Sales
£ 270,000
Reviews
3 out of 5 stars
Leaders Sales says ..
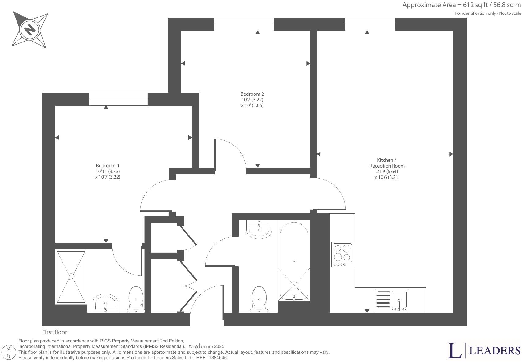
FURNISHED, 2 bedroom, 2 bathroom 1st Floor apartment FOR SALE. This first-floor apartment, perfectly positioned in the town of Addlestone. Beautifully decorated from top to bottom. At the heart of the home is a bright and spacious open-plan living and kitchen area. The primary bedroom...
Property Oracle says ..
This is a well-presented two-bedroom apartment in a popular residential area. The property is in good condition and benefits from a modern kitchen and bathrooms. The location is ideal for families, with several good schools nearby. The property is also within easy reach of local amenities and transportation links.
Therefore, we give this property 6 / 10. *Disclaimer: This is our option and does constitute a recommendation or financial advice. Do your own research. *
- Price
- 7
- Condition
- 8
- Location
- 7
- Land
- 5
- Bedrooms
- 2
- Bathrooms
- 2
- Sqft (est)
- 611.39
The heatmap indicates the level of crime in the area. The color of the heatmap indicates the crime severity and recency.
Metrics Year-on-Year
- Average area value
- 411,990.00 £Increased by 0.67 %
- Est sale value
- 294,078.59 £Decreased by 4.94 %
- Average area rental value
- 1,703.00 £/moIncreased by 10.80 %
- Est letting value
- 611.39 £/moUnchanged by 0.00 %
- Est rental Yield
- 4.96 %Increased by 9.98 %
- Crime Rate
- 8.00 %Unchanged by 0.00 %
Agent Activity
Leaders Sales created the listing.
Nearby Schools
| Name | Type | Ofsted | Distance |
|---|---|---|---|
| Chertsey High School | Free Schools | 0.57 KM | |
| St Anne'S Catholic Primary School | Academy Converter | Good | 0.73 KM |
| Stepgates Community School | Community School | Good | 0.77 KM |
| Philip Southcote School | Community Special School | Good | 0.85 KM |
| St Paul'S Cofe Primary School | Academy Sponsor Led | Good | 1.32 KM |
Images
Nearby Streets
| Name | Average Price | Average Sqft | Distance |
|---|---|---|---|
| Ford Road | £ 0 | 0 | 0.00 KM |
| Dovetail Place | £ 543,499 | 0 | 0.00 KM |
| Cartwright Drive | £ 450,000 | 0 | 0.00 KM |
| Ford Road | £ 275,000 | 0 | 0.00 KM |
| Dudley Close | £ 0 | 0 | 0.00 KM |
Nearby Transport
| Name | NLC | TLC | Distance |
|---|---|---|---|
| Chertsey | 5553 | CHY | 1.34 KM |
| Addlestone | 5550 | ASN | 1.82 KM |
| Byfleet And New Haw | 5689 | BFN | 4.00 KM |
| West Byfleet | 5684 | WBY | 4.75 KM |
| Weybridge | 5577 | WYB | 5.02 KM |
Nearby Listings
| Address | Price | Type | Score | Distance |
|---|---|---|---|---|
| Harrow Close, Addlestone, Surrey | £ 270,000 | BUY | 6 / 10 | 0.00 KM |
| Addlestone, Surrey, KT15 | £ 275,000 | BUY | Unknown | 0.01 KM |
| Harrow Close, Addlestone, Surrey, KT15 | £ 270,000 | BUY | 6 / 10 | 0.03 KM |
| Harrow Close, Addlestone | £ 265,000 | BUY | 6 / 10 | 0.05 KM |
| Addlestone, Surrey, KT15 | £ 190,000 | BUY | 6 / 10 | 0.06 KM |
Nearby Properties
| Address | Price | Distance |
|---|---|---|
| 52 Harrow Close | £ 245,000 | 0.01 KM |
| 47 Harrow Close | £ 242,500 | 0.01 KM |
| 42 Harrow Close | £ 167,000 | 0.01 KM |
| 41 Harrow Close | £ 198,000 | 0.01 KM |
| 40 Harrow Close | £ 205,000 | 0.01 KM |