Manning Stainton says ..
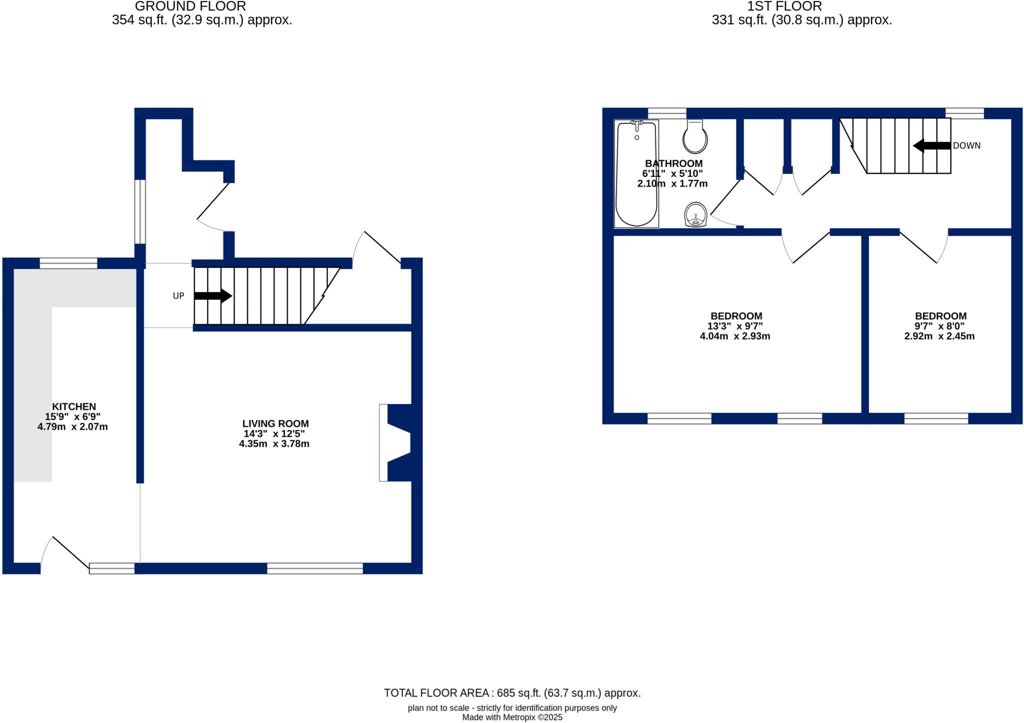
Offered with no onward chain is this spacious two bedroom end terrace. With double glazing and central heating throughout this is one not to be missed and an early viewing is essential to appreciate what is on offer.
Property Oracle says ..
Therefore, we give this property 6 / 10. *Disclaimer: This is our option and does constitute a recommendation or financial advice. Do your own research. *
- Price
- 8
- Condition
- 5
- Location
- 7
- Land
- 6
- Bedrooms
- 2
- Bathrooms
- 1
The heatmap indicates the level of crime in the area. The color of the heatmap indicates the crime severity and recency.
Metrics Year-on-Year
- Average area value
- 203,580.00 £Increased by 6.29 %
- Average area rental value
- 1,193.00 £/moIncreased by 0.17 %
- Est rental Yield
- 7.03 %Decreased by 5.76 %
- Crime Rate
- 8.00 %Unchanged by 0.00 %
from 191,535.00 £
from 1,191.00 £/mo
from 7.46 %
from 8.00 %
Agent Activity
Manning Stainton created the listing.
Nearby Schools
| Name | Type | Ofsted | Distance |
|---|---|---|---|
| The New Bewerley Community Primary School | Community School | Good | 0.26 KM |
| City And Holbeck Children'S Centre | Children's Centre | 0.38 KM | |
| New Bewerley Children'S Centre | Children's Centre | 0.41 KM | |
| Greenmount Primary School | Community School | Good | 0.50 KM |
| Hunslet Moor Primary School | Community School | Good | 0.55 KM |
Images
Nearby Streets
| Name | Average Price | Average Sqft | Distance |
|---|---|---|---|
| St Francis Close | £ 0 | 0 | 0.00 KM |
| Hill Street | £ 325,000 | 0 | 0.00 KM |
| Dobson Place | £ 0 | 0 | 0.00 KM |
| Colwyn Avenue | £ 0 | 0 | 0.00 KM |
| St. Luke's Road | £ 0 | 0 | 0.00 KM |
Nearby Transport
| Name | NLC | TLC | Distance |
|---|---|---|---|
| Leeds | 8487 | LDS | 1.93 KM |
| Cottingley | 8505 | COT | 4.47 KM |
| Burley Park | 8500 | BUY | 4.94 KM |
| Morley | 8504 | MLY | 5.64 KM |
| Headingley | 8498 | HDY | 6.70 KM |
Nearby Listings
| Address | Price | Type | Score | Distance |
|---|---|---|---|---|
| Beverley View, Leeds | £ 130,000 | BUY | 6 / 10 | 0.00 KM |
| Land at Bismarck Street, Leeds, LS11 6TN | £ 1 | BUY | Unknown | 0.16 KM |
| St. Francis Close, Leeds | £ 220,000 | BUY | 7 / 10 | 0.18 KM |
| Waverley Garth, Beeston, Leeds | £ 145,000 | BUY | Unknown | 0.19 KM |
| Flaxton Gardens, Leeds, West Yorkshire | £ 95,000 | BUY | 5 / 10 | 0.20 KM |
Nearby Properties
| Address | Price | Distance |
|---|---|---|
| 1 Greenmount Terrace | £ 105,000 | 0.12 KM |
| 4 Beverley Terrace | £ 62,500 | 0.15 KM |
| 14 Flaxton Close | £ 55,000 | 0.20 KM |
| 48 Waverley Garth | £ 130,000 | 0.20 KM |
| 56 Waverley Garth | £ 51,000 | 0.20 KM |