BR
Meadway, Upton, Wirral, CH49
By Bradshaw Farnham & Lea
£ 450,000
Reviews
4 out of 5 stars
Bradshaw Farnham & Lea says ..
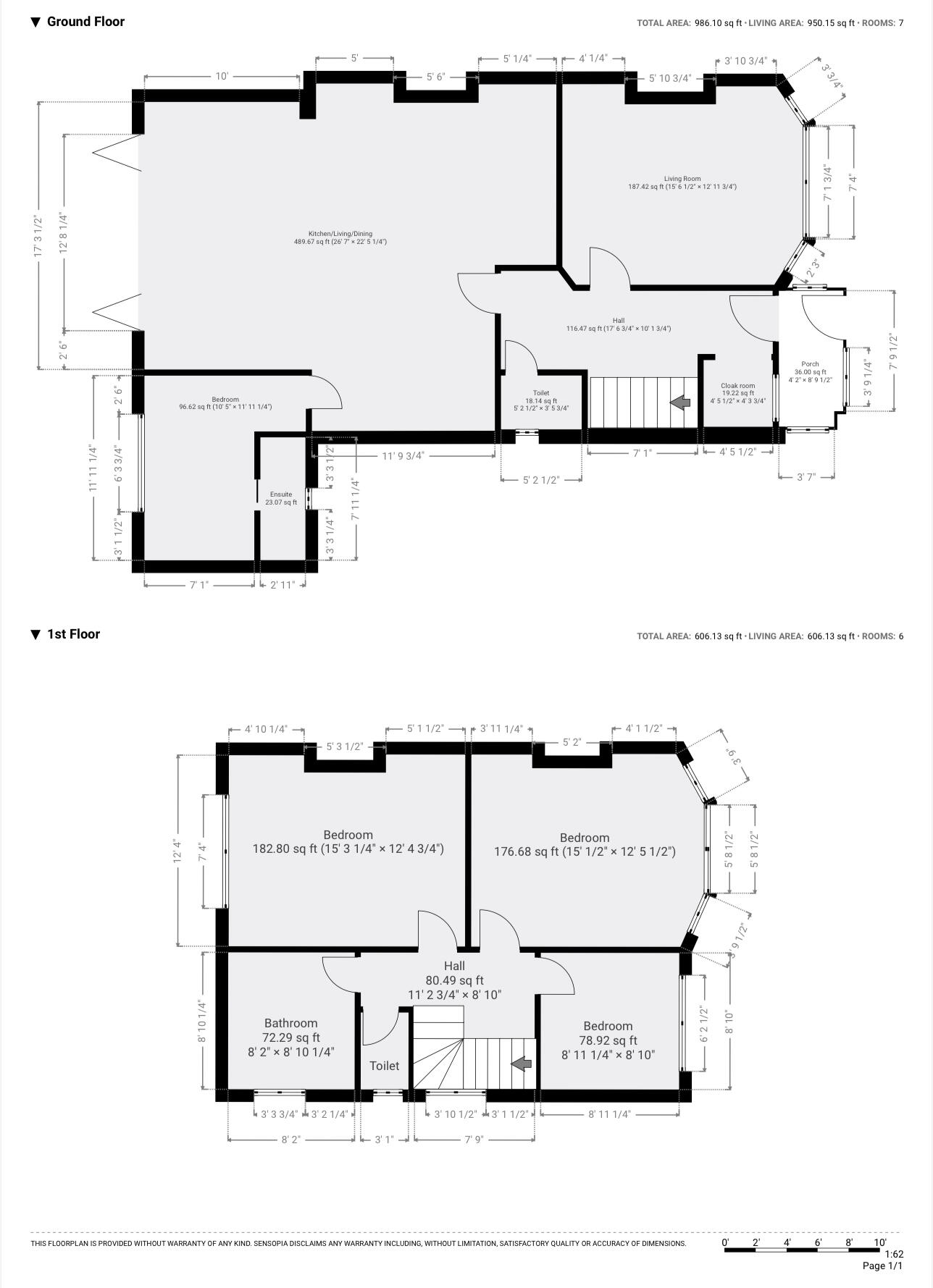
Nestled on the highly sought-after Meadway in the heart of Upton, this charming 4-bedroom semi-detached property offers the perfect blend of classic character and spacious family living.
Property Oracle says ..
Therefore, we give this property 8 / 10. *Disclaimer: This is our option and does constitute a recommendation or financial advice. Do your own research. *
- Price
- 7
- Condition
- 9
- Location
- 8
- Land
- 8
- Bedrooms
- 4
- Bathrooms
- 3
- Sqft (est)
- 986.10
The heatmap indicates the level of crime in the area. The color of the heatmap indicates the crime severity and recency.
Metrics Year-on-Year
- Average area value
- 364,766.00 £Decreased by 2.54 %
- Est sale value
- 313,579.80 £Increased by 5.30 %
- Average area rental value
- 1,277.00 £/moDecreased by 18.09 %
- Est letting value
- 986.10 £/moUnchanged by 0.00 %
- Est rental Yield
- 4.20 %Decreased by 16.00 %
- Crime Rate
- 0.00 %
from 374,277.00 £
from 297,802.20 £
from 1,559.00 £/mo
from 986.10 £/mo
from 5.00 %
from 0.00 %
Agent Activity
Bradshaw Farnham & Lea created the listing.
Nearby Schools
| Name | Type | Ofsted | Distance |
|---|---|---|---|
| Hayfield School | Community Special School | Good | 0.78 KM |
| St Joseph'S Catholic Primary School Upton | Voluntary Aided School | Good | 1.07 KM |
| St Paul'S Catholic Primary School | Voluntary Aided School | Good | 1.07 KM |
| Manor Primary School | Community School | Requires improvement | 1.14 KM |
| Upton Hall School Fcj | Academy Converter | 1.19 KM |
Images
Nearby Streets
| Name | Average Price | Average Sqft | Distance |
|---|---|---|---|
| The Paddock | £ 0 | 0 | 0.00 KM |
| Ford Close | £ 0 | 0 | 0.00 KM |
| Beeston Close | £ 0 | 0 | 0.00 KM |
| Delamere Close | £ 0 | 0 | 0.00 KM |
| Warren Drive | £ 0 | 0 | 0.00 KM |
Nearby Transport
| Name | NLC | TLC | Distance |
|---|---|---|---|
| Upton (Merseyside) | 2141 | UPT | 0.72 KM |
| Leasowe | 2237 | LSW | 2.33 KM |
| Bidston | 2136 | BID | 2.53 KM |
| Moreton (Merseyside) | 2151 | MRT | 3.27 KM |
| Birkenhead North | 2145 | BKN | 3.96 KM |
Nearby Listings
| Address | Price | Type | Score | Distance |
|---|---|---|---|---|
| Meadway, Upton, Wirral, CH49 | £ 450,000 | BUY | 8 / 10 | 0.00 KM |
| Meadway, Upton, Wirral, CH49 | £ 420,000 | BUY | 7 / 10 | 0.03 KM |
| Meadway, Upton, Wirral | £ 625,000 | BUY | 6 / 10 | 0.04 KM |
| The Stables, Manor Drive, Upton | £ 850,000 | BUY | 7 / 10 | 0.13 KM |
| South Drive, Upton, CH49 | £ 450,000 | BUY | Unknown | 0.20 KM |
Nearby Properties
| Address | Price | Distance |
|---|---|---|
| 14 Meadway | £ 385,000 | 0.03 KM |
| 5 Meadway | £ 250,000 | 0.03 KM |
| 11 Meadway | £ 220,000 | 0.03 KM |
| 30a Meadway | £ 290,000 | 0.03 KM |
| 15 Meadway | £ 202,500 | 0.03 KM |