Pine Avenue, Bournemouth, Dorset, BH6
By Tom Harris Estates
£ 650,000
Reviews
3 out of 5 stars
Tom Harris Estates says ..
** SOLD BY TOM HARRIS ESTATES ** This charming and characterful three-bedroom detached family home, has a driveway and a south-facing garden, and is situated in the heart of Southbourne, in a prime residential location, set between Southbourne Grove and the award-winning beaches. No Chain!
Property Oracle says ..
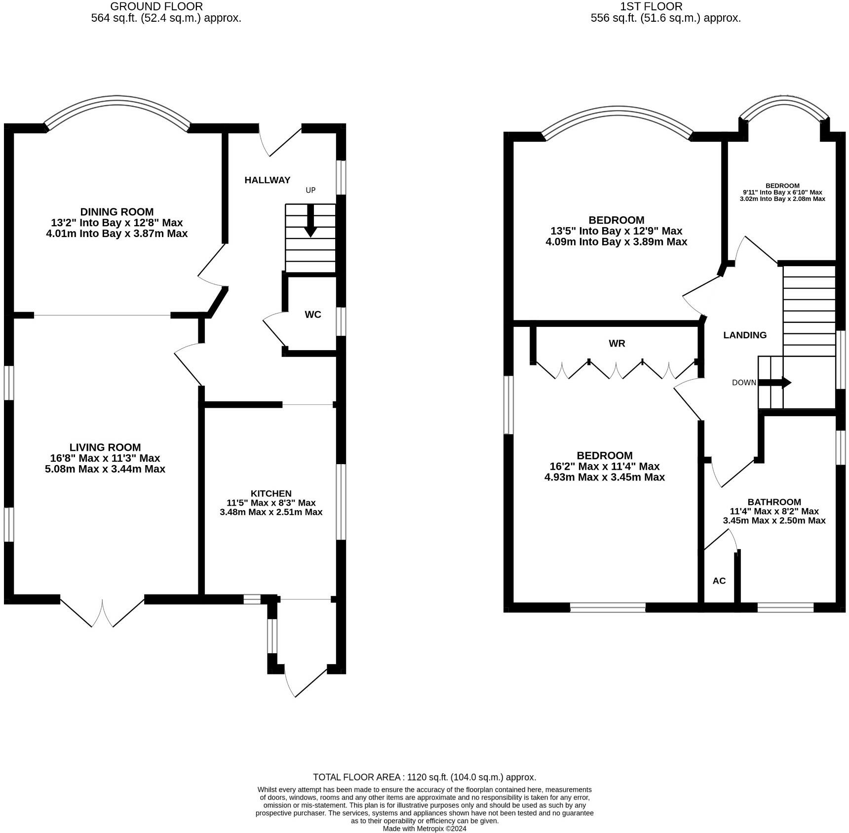
This three-bedroom detached house on Pine Avenue in West Southbourne, Bournemouth offers a charming family home. The property benefits from a convenient location close to local amenities, including shops, restaurants and award-winning beaches. The transport links to railway stations is also a plus point. Images show a well-presented interior, with a modern kitchen and bathroom, suggesting recent updates. There is a noticeable garden space, providing outdoor living potential. The property’s asking price is in line with comparables in the vicinity but lacks details concerning the plot size, which makes it hard to give an exact price per sq. ft. Overall, it presents a well-maintained and desirable property but potential buyers should consider obtaining more detail on exact plot size before making an offer.
Therefore, we give this property 7 / 10. *Disclaimer: This is our option and does constitute a recommendation or financial advice. Do your own research. *
- Price
- 7
- Condition
- 7
- Location
- 8
- Land
- 6
- Bedrooms
- 3
- Bathrooms
- 1
- Sqft (est)
- 1,120.00
The heatmap indicates the level of crime in the area. The color of the heatmap indicates the crime severity and recency.
Metrics Year-on-Year
- Average area value
- 433,125.00 £Increased by 0.07 %
- Est sale value
- 633,920.00 £Increased by 13.65 %
- Average area rental value
- 1,545.00 £/moIncreased by 1.11 %
- Est letting value
- 2,240.00 £/moIncreased by 100.00 %
- Est rental Yield
- 4.28 %Increased by 0.94 %
- Crime Rate
- 19.00 %Unchanged by 0.00 %
Agent Activity
Tom Harris Estates marked this listing as sold.
Tom Harris Estates created the listing.
Nearby Schools
| Name | Type | Ofsted | Distance |
|---|---|---|---|
| Pokesdown Children'S Centre | Children's Centre | 0.86 KM | |
| Pokesdown & Southbourne Children'S Centre | Children's Centre | 0.87 KM | |
| Pokesdown Community Primary School | Academy Converter | 1.02 KM | |
| Bournemouth Collegiate School | Other Independent School | 1.14 KM | |
| St James' Church Of England Primary Academy | Academy Converter | Good | 1.16 KM |
Images
Nearby Streets
| Name | Average Price | Average Sqft | Distance |
|---|---|---|---|
| Southbourne Grove | £ 0 | 0 | 0.00 KM |
| Beresford Road | £ 0 | 0 | 0.00 KM |
| Portman Terrace | £ 0 | 0 | 0.00 KM |
| Belle Vue Road | £ 400,000 | 0 | 0.00 KM |
| Morley Close | £ 0 | 0 | 0.00 KM |
Nearby Transport
| Name | NLC | TLC | Distance |
|---|---|---|---|
| Pokesdown | 5885 | POK | 1.36 KM |
| Christchurch | 5879 | CHR | 3.62 KM |
| Bournemouth | 5876 | BMH | 5.54 KM |
Nearby Listings
| Address | Price | Type | Score | Distance |
|---|---|---|---|---|
| Southbourne | £ 185,000 | BUY | 7 / 10 | 0.06 KM |
| Southwood Avenue, Southbourne, Bournemouth, BH6 3QA | £ 450,000 | BUY | 7 / 10 | 0.07 KM |
| Southwood Avenue , Bournemouth | £ 950,000 | BUY | 5 / 10 | 0.08 KM |
| Southwood Avenue, Southbourne, Bournemouth, Dorset, BH6 | £ 900,000 | BUY | 7 / 10 | 0.08 KM |
| Grand Avenue, Bournemouth, BH6 | £ 1,100,000 | BUY | 7 / 10 | 0.08 KM |
Nearby Properties
| Address | Price | Distance |
|---|---|---|
| 37 Grand Avenue | £ 285,000 | 0.06 KM |
| 8a Beech Avenue | £ 290,000 | 0.08 KM |
| 12 Beech Avenue | £ 510,000 | 0.08 KM |
| 12a Southwood Avenue | £ 275,000 | 0.08 KM |
| 2a Southwood Avenue | £ 131,450 | 0.08 KM |