WY
Clyde Road, St. Leonards-On-Sea
By Wyatt Hughes
£ 165,000
Reviews
3 out of 5 stars
Wyatt Hughes says ..
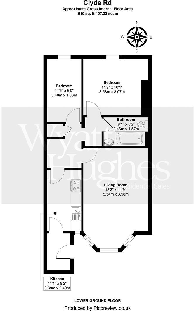
Welcome to Clyde Road, St. Leonards-On-Sea - a charming location that could be the perfect setting for your new home! This delightful flat conversion offers a cozy retreat with a well proportioned reception room with high ceilings , two bedrooms, one being a double room and the other making a goo...
Property Oracle says ..
Therefore, we give this property 7 / 10. *Disclaimer: This is our option and does constitute a recommendation or financial advice. Do your own research. *
- Price
- 9
- Condition
- 8
- Location
- 7
- Land
- 6
- Bedrooms
- 2
- Bathrooms
- 1
- Sqft (est)
- 532.69
The heatmap indicates the level of crime in the area. The color of the heatmap indicates the crime severity and recency.
Metrics Year-on-Year
- Average area value
- 288,000.00 £Decreased by 2.53 %
- Est sale value
- 243,439.33 £Increased by 32.08 %
- Average area rental value
- 969.00 £/moDecreased by 11.99 %
- Est letting value
- 532.69 £/moUnchanged by 0.00 %
- Est rental Yield
- 4.04 %Decreased by 9.62 %
- Crime Rate
- 3.00 %Unchanged by 0.00 %
from 295,471.00 £
from 184,310.74 £
from 1,101.00 £/mo
from 532.69 £/mo
from 4.47 %
from 3.00 %
Agent Activity
Wyatt Hughes created the listing.
Nearby Schools
| Name | Type | Ofsted | Distance |
|---|---|---|---|
| St Leonards Children'S Centre | Children's Centre | 0.21 KM | |
| Lansdowne Children'S Centre | Secure Units | 0.34 KM | |
| Christ Church Cofe Primary And Nursery Academy | Academy Converter | Good | 0.59 KM |
| St Mary Star Of The Sea Catholic Primary School | Voluntary Aided School | Good | 0.93 KM |
| St Paul'S Church Of England Academy | Academy Converter | Good | 1.07 KM |
Images
Nearby Streets
| Name | Average Price | Average Sqft | Distance |
|---|---|---|---|
| Station Approach | £ 430,000 | 0 | 0.00 KM |
| The Uplands | £ 400,000 | 0 | 0.00 KM |
| Archery Villas | £ 0 | 0 | 0.00 KM |
| Upper Maze Hill | £ 0 | 0 | 0.00 KM |
| Saint John's Road | £ 0 | 0 | 0.00 KM |
Nearby Transport
| Name | NLC | TLC | Distance |
|---|---|---|---|
| St Leonards Warrior Square | 5239 | SLQ | 0.38 KM |
| West St Leonards | 5242 | WLD | 1.92 KM |
| Hastings | 5219 | HGS | 2.19 KM |
| Ore | 5021 | ORE | 4.00 KM |
| Crowhurst | 5233 | CWU | 7.10 KM |
Nearby Listings
| Address | Price | Type | Score | Distance |
|---|---|---|---|---|
| Clyde Road, St. Leonards-On-Sea | £ 165,000 | BUY | 7 / 10 | 0.00 KM |
| Clyde Road, St. Leonards-On-Sea | £ 180,000 | BUY | Unknown | 0.00 KM |
| Charles Road, St. Leonards-On-Sea | £ 225,000 | BUY | 6 / 10 | 0.04 KM |
| Clyde Road, St. Leonards-On-Sea, East Sussex, TN38 | £ 122,500 | BUY | 4 / 10 | 0.04 KM |
| Charles Road, St. Leonards-On-Sea | £ 200,000 | BUY | 6 / 10 | 0.05 KM |
Nearby Properties
| Address | Price | Distance |
|---|---|---|
| 8 - 10 Clyde Road | £ 30,000 | 0.04 KM |
| 13a Clyde Road | £ 83,000 | 0.04 KM |
| 8 Clyde Road | £ 275,000 | 0.04 KM |
| 13 Clyde Road | £ 77,500 | 0.04 KM |
| 2 Clyde Road | £ 80,000 | 0.04 KM |