Daniels says ..
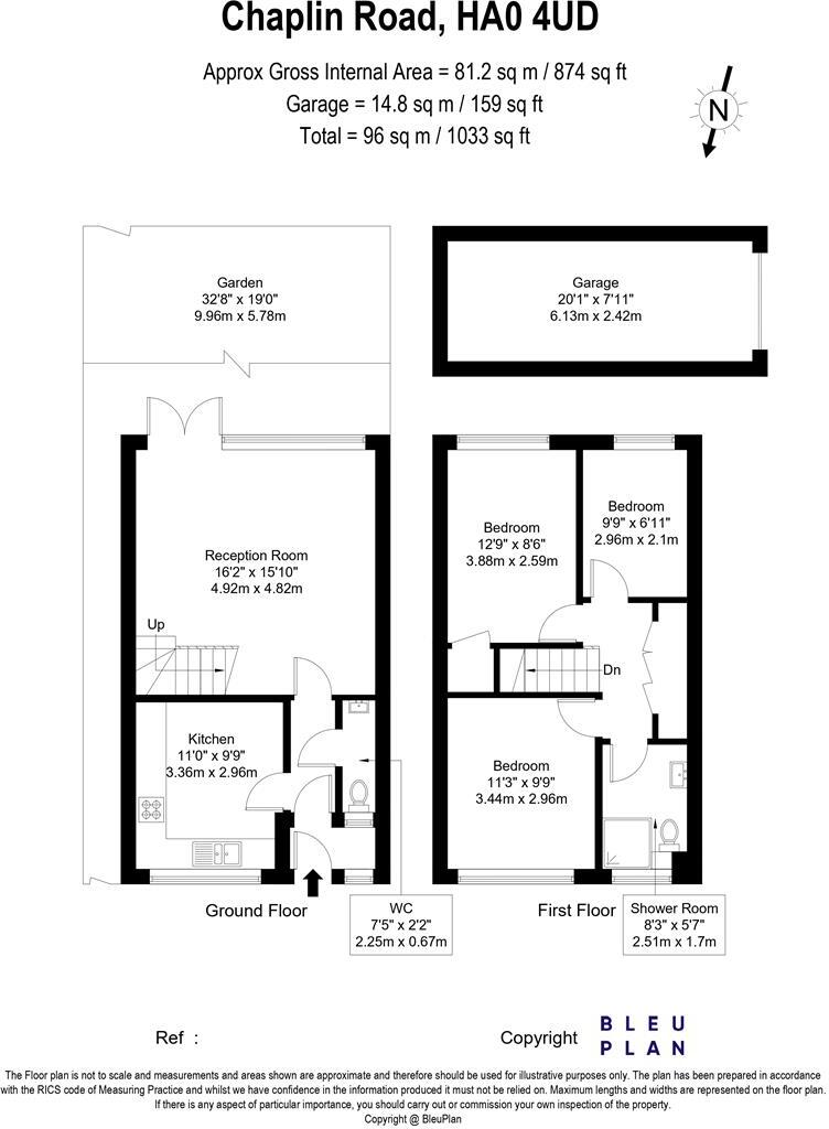
NO UPPER CHAIN – End of Terrace House in the Ealing Road Area Daniels are delighted to bring to market this fantastic end of terrace family home offering three bedrooms, a spacious lounge, good-sized kitchen, family bathroom, and the added benefit of a secure gated garage and gated parki...
Property Oracle says ..
Therefore, we give this property 5 / 10. *Disclaimer: This is our option and does constitute a recommendation or financial advice. Do your own research. *
- Price
- 4
- Condition
- 6
- Location
- 7
- Land
- 6
- Bedrooms
- 3
- Bathrooms
- 1
- Sqft (est)
- 1,033.00
- Lot (est)
- 620.00
The heatmap indicates the level of crime in the area. The color of the heatmap indicates the crime severity and recency.
Metrics Year-on-Year
- Average area value
- 373,167.00 £Decreased by 30.55 %
- Est sale value
- 331,593.00 £Decreased by 43.88 %
- Average area rental value
- 2,183.00 £/moIncreased by 7.86 %
- Est letting value
- 1,033.00 £/moDecreased by 50.00 %
- Est rental Yield
- 7.02 %Increased by 55.31 %
- Crime Rate
- 8.00 %Unchanged by 0.00 %
from 537,293.00 £
from 590,876.00 £
from 2,024.00 £/mo
from 2,066.00 £/mo
from 4.52 %
from 8.00 %
Agent Activity
Daniels created the listing.
Nearby Schools
| Name | Type | Ofsted | Distance |
|---|---|---|---|
| Barham Primary School | Community School | Good | 0.54 KM |
| The Corner School | Other Independent Special School | Good | 0.71 KM |
| Alperton Children'S Centre | Children's Centre | 1.01 KM | |
| Park Lane Primary School | Community School | Good | 1.12 KM |
| Ark Elvin Academy | Academy Sponsor Led | Good | 1.25 KM |
Images
Nearby Streets
| Name | Average Price | Average Sqft | Distance |
|---|---|---|---|
| Lincoln Road | £ 610,000 | 0 | 0.00 KM |
| Norton Road | £ 707,475 | 0 | 0.00 KM |
| Fairview Avenue | £ 0 | 0 | 0.00 KM |
| Napier Road | £ 650,000 | 0 | 0.00 KM |
| Willow Tree Court | £ 0 | 0 | 0.00 KM |
Nearby Transport
| Name | NLC | TLC | Distance |
|---|---|---|---|
| Wembley Central | 1423 | WMB | 0.68 KM |
| North Wembley | 1422 | NWB | 1.43 KM |
| Sudbury And Harrow Road | 1483 | SUD | 1.57 KM |
| Wembley Stadium | 1509 | WCX | 1.89 KM |
| South Kenton | 1453 | SOK | 2.37 KM |
Nearby Listings
| Address | Price | Type | Score | Distance |
|---|---|---|---|---|
| Chaplin Road, Wembley, Middlesex | £ 675,000 | BUY | 5 / 10 | 0.00 KM |
| Lincoln Road, Wembley, Middlesex HA0 | £ 425,000 | BUY | 7 / 10 | 0.09 KM |
| Chaplin Road, Wembley, Middlesex HA0 | £ 600,000 | BUY | 6 / 10 | 0.09 KM |
| Napier Road Wembley HA0 4UA | £ 600,000 | BUY | 5 / 10 | 0.15 KM |
| Chaplin Road, Wembley, HA0 | £ 375,000 | BUY | 6 / 10 | 0.15 KM |
Nearby Properties
| Address | Price | Distance |
|---|---|---|
| 42b Chaplin Road | £ 184,000 | 0.02 KM |
| 41a Chaplin Road | £ 169,950 | 0.02 KM |
| 71 Chaplin Road | £ 510,000 | 0.02 KM |
| 50 Chaplin Road | £ 775,000 | 0.02 KM |
| 42c Chaplin Road | £ 140,000 | 0.02 KM |