North View Avenue, Bideford
HA

North View Avenue, Bideford

By Harding and Co

£ 250,000

Reviews

3 out of 5 stars

Harding and Co says ..

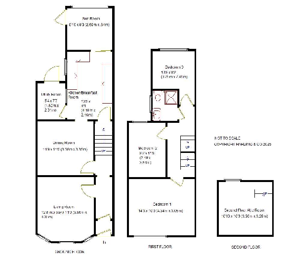
An extremely well presented and spacious 3 / 4 bedroom terraced house situated in a popular residential area within a flat walk to the towns’ facilities. The accommodation includes 2 reception rooms, a charming kitchen/breakfast room with a separate utility room/sun room, 3 first floor bedrooms, ...

Property Oracle says ..

This three-bedroom terraced house in Bideford, Devon, is listed at £250,000. The property benefits from a good-sized garden, as shown in the provided images. The interior appears well-maintained and recently decorated, although the kitchen shows some signs of age. The location is close to several primary and secondary schools, with distances ranging from 0.65km to 1.18km. While specific Ofsted reports are not available, the proximity to schools is a positive aspect. The average house price in the area is £265,283, with an average price per square foot of £251. This property is slightly below average in price, considering its size (1200.93 sqft) and the presence of a garden. Nearby comparable properties range in price from £100,000 to £685,000, indicating price variability in the area. The lack of nearby transportation information makes it difficult to fully assess the location score. However, the presence of a garden, proximity to schools, and relatively reasonable price compared to area averages are positive factors.

Therefore, we give this property 7 / 10. *Disclaimer: This is our option and does constitute a recommendation or financial advice. Do your own research. *

Price
8
Condition
8
Location
7
Land
7
Bedrooms
3
Bathrooms
1
Sqft (est)
1,200.93

The heatmap indicates the level of crime in the area. The color of the heatmap indicates the crime severity and recency.

Metrics Year-on-Year

Average area value
236,000.00 £
Decreased by 21.21 %
from 299,515.00 £
Est sale value
293,026.92 £
Decreased by 6.51 %
from 313,442.73 £
Average area rental value
913.00 £/mo
Increased by 21.90 %
from 749.00 £/mo
Est letting value
0.00 £/mo
from 0.00 £/mo
Est rental Yield
4.64 %
Increased by 54.67 %
from 3.00 %
Crime Rate
19.00 %
Unchanged by 0.00 %
from 19.00 %

Agent Activity

  • Harding and Co created the listing.

Nearby Schools

NameTypeOfstedDistance
St Mary'S Church Of England Primary SchoolVoluntary Controlled SchoolGood0.65 KM
Kingsley SchoolOther Independent School0.85 KM
Bideford Bay Children'S CentreChildren's Centre0.95 KM
West Croft SchoolCommunity SchoolRequires improvement1.04 KM
Bideford CollegeAcademy Sponsor LedRequires improvement1.18 KM

Images

Rear garden ii.jpg DJI_0413.JPG Lounge.jpg Dining room.jpg Dining room ii.jpg Kitchen Breakfast room ii.jpg Kitchen Breakfast room.jpg Kitchen Breakfast room iii.jpg Utility room.jpg Bedroom 1.jpg Attic room as Bedroom.jpg Shower room.jpg Rear garden iii.jpg Rear garden.jpg Landing.jpg Bedroom 1 ii.jpg Bedroom 2 ii.jpg Bedroom 2.jpg Bedroom 3.jpg Garage.jpg Front.jpg

Nearby Streets

NameAverage PriceAverage SqftDistance
North Down Road £ 424,49500.00 KM
Kingsley Street £ 215,00000.00 KM
Lime Grove £ 229,09700.00 KM
Alexandra Terrace £ 241,80000.00 KM
Elm Grove £ 252,00000.00 KM

Nearby Listings

AddressPriceTypeScoreDistance
North View Avenue, Bideford £ 250,000BUY7 / 100.00 KM
North View Avenue, Bideford £ 210,000BUY7 / 100.01 KM
Northam Road, Bideford £ 245,000BUY6 / 100.07 KM
Northam Road, Bideford, Devon, EX39 £ 240,000BUY6 / 100.08 KM
Northam Road, Bideford, Devon, EX39 £ 160,750BUY6 / 100.09 KM

Nearby Properties

AddressPriceDistance
3 Northam Road £ 144,4370.05 KM
2 Northam Road £ 100,0000.05 KM
9 Northam Road £ 230,0000.07 KM
4 Northam Road £ 210,0000.07 KM
7 Northam Road £ 145,0000.07 KM