Castles Estate Agents says ..
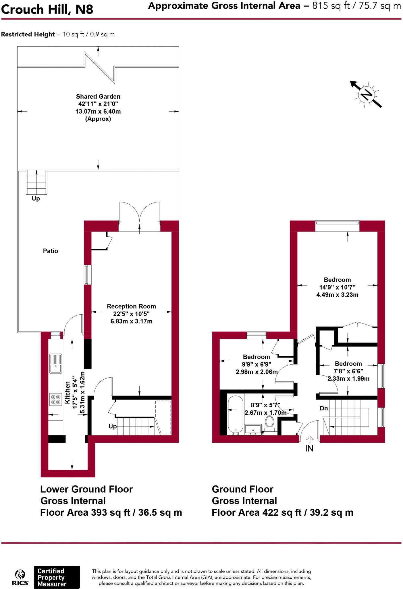
Set within a short stroll of Crouch Ends historic Broadway is this three-bedroom, purpose-built flat arranged over two floors. The property is accessed via the tree-lined Cecile Park and within the catchment of highly Ofsted rated Primary Schools. Further comprising family bathr...
Property Oracle says ..
This three-bedroom property located on Cecile Park in Crouch End, Haringey, is presented as a renovated flat. The listing highlights its proximity to Crouch End Broadway, offering easy access to local amenities and transport links. The property is also within the catchment area of several highly-rated primary schools, making it an attractive option for families. The interior features a modern, newly fitted kitchen and bathroom, shown in the photographs. However, some rooms still require flooring to be completed, indicating that the property may not be entirely finished. The property also benefits from a garden, though its size is not specified. The asking price of £700,000 requires further analysis in relation to comparable properties in the area, given the lack of precise square footage data in the provided listings. Overall, the property presents a potentially attractive opportunity, but buyers should be aware of the unfinished aspects and conduct thorough due diligence before making an offer.
Therefore, we give this property 6 / 10. *Disclaimer: This is our option and does constitute a recommendation or financial advice. Do your own research. *
- Price
- 7
- Condition
- 7
- Location
- 8
- Land
- 4
- Bedrooms
- 3
- Bathrooms
- 1
- Sqft (est)
- 815.00
The heatmap indicates the level of crime in the area. The color of the heatmap indicates the crime severity and recency.
Metrics Year-on-Year
- Average area value
- 1,033,328.00 £Increased by 10.47 %
- Est sale value
- 480,035.00 £Decreased by 34.99 %
- Average area rental value
- 1,983.00 £/moDecreased by 17.79 %
- Est letting value
- 815.00 £/moDecreased by 50.00 %
- Est rental Yield
- 2.30 %Decreased by 25.57 %
- Crime Rate
- 2.00 %Unchanged by 0.00 %
Agent Activity
Castles Estate Agents created the listing.
Nearby Schools
| Name | Type | Ofsted | Distance |
|---|---|---|---|
| Kestrel House School | Other Independent Special School | Good | 0.04 KM |
| St Gildas' Catholic Junior School | Voluntary Aided School | Good | 0.27 KM |
| Ashmount Primary School | Community School | Good | 0.37 KM |
| St Peter-In-Chains Rc Infant School | Voluntary Aided School | Good | 0.39 KM |
| Coleridge Primary School | Community School | Outstanding | 0.52 KM |
Images
Nearby Streets
| Name | Average Price | Average Sqft | Distance |
|---|---|---|---|
| Farnfield Close | £ 0 | 0 | 0.00 KM |
| Hillrise Mansions | £ 425,000 | 0 | 0.00 KM |
| Blythwood Road | £ 325,000 | 0 | 0.00 KM |
| Shaftesbury Road | £ 730,000 | 0 | 0.00 KM |
| Holly Park | £ 0 | 0 | 0.00 KM |
Nearby Transport
| Name | NLC | TLC | Distance |
|---|---|---|---|
| Crouch Hill | 7406 | CRH | 0.85 KM |
| Hornsey | 6015 | HRN | 1.61 KM |
| Upper Holloway | 1524 | UHL | 1.63 KM |
| Harringay | 6012 | HGY | 1.94 KM |
| Finsbury Park | 6119 | FPK | 2.27 KM |
Nearby Listings
| Address | Price | Type | Score | Distance |
|---|---|---|---|---|
| Crouch Hill, N8 | £ 700,000 | BUY | 6 / 10 | 0.00 KM |
| N8, Crouch End, London, N8 | £ 500,000 | BUY | Unknown | 0.04 KM |
| Crouch Hill, N8 | £ 2,250,000 | BUY | 7 / 10 | 0.05 KM |
| Crouch Hill, London, N8 | £ 1,300,000 | BUY | 7 / 10 | 0.10 KM |
| N8, Crouch End, London, N8 | £ 850,000 | BUY | Unknown | 0.10 KM |
Nearby Properties
| Address | Price | Distance |
|---|---|---|
| 116 Crouch Hill | £ 375,000 | 0.04 KM |
| 122 Crouch Hill | £ 906,000 | 0.04 KM |
| 108 Crouch Hill | £ 169,995 | 0.04 KM |
| 12a Ivy Gardens | £ 138,000 | 0.11 KM |
| 135b Crouch Hill | £ 980,000 | 0.11 KM |