Corporal Way, Liverpool, Merseyside, L12
By Reeds Rains
£ 350,000
Reviews
3 out of 5 stars
Reeds Rains says ..
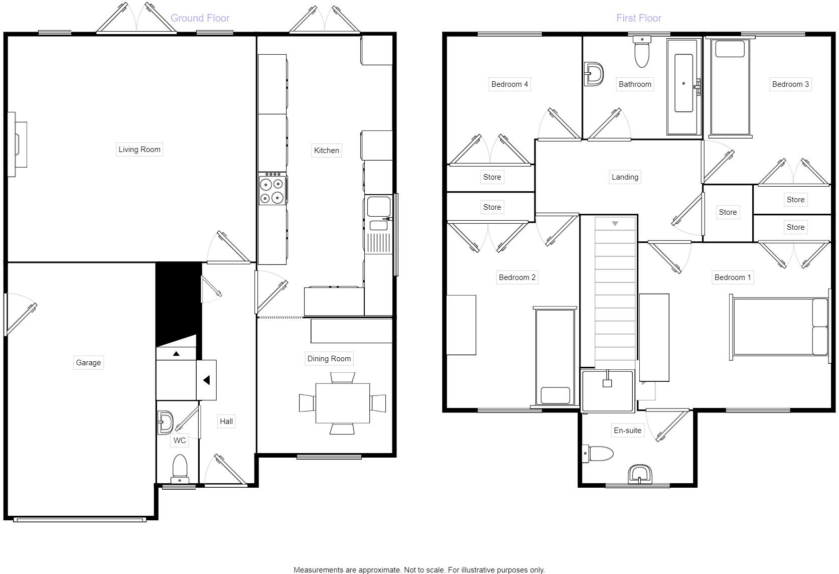
No Onward Chain - South-Facing Garden New to market, a fantastically kept, four bedroom detached home with integral garage & South-facing expansive garden. The size of the home is exceptional, with a large lounge area with French doors to the rear garden along with built...
Property Oracle says ..
This four-bedroom, two-bathroom detached house in Liverpool’s Yew Tree area, listed by Reeds Rains, presents a potentially attractive option for families. The property benefits from a garden and seems to be in reasonable condition, as evidenced by the photographs, however a lack of provided dimensions or detailed specifications are lacking. The location offers access to several schools, albeit with varying Ofsted ratings, and is within a reasonable distance of train stations (although additional transport will likely be needed). While the asking price of £350,000 seems to be in line with comparable properties in the vicinity, more detailed information, such as the house’s square footage, would be required to form a conclusive opinion on value. The images shown suggest a property that has been well-maintained and is ready to move into, though there is nothing that suggests high end renovation. The lack of exact distances to shops and other amenities hinders a fully comprehensive assessment of the property’s desirability.
Therefore, we give this property 6 / 10. *Disclaimer: This is our option and does constitute a recommendation or financial advice. Do your own research. *
- Price
- 7
- Condition
- 6
- Location
- 7
- Land
- 6
- Bedrooms
- 4
- Bathrooms
- 2
The heatmap indicates the level of crime in the area. The color of the heatmap indicates the crime severity and recency.
Metrics Year-on-Year
- Average area value
- 224,279.00 £Increased by 8.85 %
- Average area rental value
- 1,190.00 £/moIncreased by 54.55 %
- Est rental Yield
- 6.37 %Increased by 42.19 %
- Crime Rate
- 4.00 %Unchanged by 0.00 %
Agent Activity
Reeds Rains created the listing.
Nearby Schools
| Name | Type | Ofsted | Distance |
|---|---|---|---|
| St Vincent'S School - A Specialist School For Sensory Impairment And Other Needs | Non-maintained Special School | Outstanding | 0.84 KM |
| Blackmoor Park Junior School | Community School | Good | 0.94 KM |
| Broughton Hall Catholic High School | Voluntary Aided School | Requires improvement | 0.96 KM |
| Cardinal Heenan Catholic High School | Voluntary Aided School | Good | 1.04 KM |
| Blackmoor Park Infants' School | Community School | Requires improvement | 1.09 KM |
Images
Nearby Streets
| Name | Average Price | Average Sqft | Distance |
|---|---|---|---|
| St Vincent's Close | £ 0 | 0 | 0.00 KM |
| Yew Tree Close | £ 0 | 0 | 0.00 KM |
| Bevan's Lane | £ 233,000 | 0 | 0.00 KM |
| Hampton Court Road | £ 275,000 | 0 | 0.00 KM |
| Rowan Avenue | £ 0 | 0 | 0.00 KM |
Nearby Transport
| Name | NLC | TLC | Distance |
|---|---|---|---|
| Broad Green | 2240 | BGE | 2.96 KM |
| Roby | 2261 | ROB | 4.38 KM |
| Wavertree Technology Park | 8589 | WAV | 4.90 KM |
| Huyton | 2160 | HUY | 5.62 KM |
| Kirkby (Merseyside) | 2124 | KIR | 6.16 KM |
Nearby Listings
| Address | Price | Type | Score | Distance |
|---|---|---|---|---|
| Corporal Way, Liverpool, Merseyside, L12 | £ 350,000 | BUY | 6 / 10 | 0.00 KM |
| Regiment Way, Liverpool, Merseyside, L12 | £ 465,000 | BUY | 7 / 10 | 0.12 KM |
| Colonel Drive, Liverpool, Merseyside, L12 | £ 99,950 | BUY | Unknown | 0.18 KM |
| 107 Cononel Drive, Liverpool L12 4YG | £ 109,950 | BUY | 5 / 10 | 0.18 KM |
| Colonel Drive, Liverpool, L12 | £ 220,000 | BUY | 6 / 10 | 0.18 KM |
Nearby Properties
| Address | Price | Distance |
|---|---|---|
| 2 Corporal Way | £ 181,500 | 0.05 KM |
| 10 Corporal Way | £ 255,000 | 0.05 KM |
| 4 Regiment Way | £ 410,000 | 0.09 KM |
| 7 Regiment Way | £ 225,000 | 0.09 KM |
| 2 Regiment Way | £ 199,500 | 0.09 KM |