Kingswood says ..
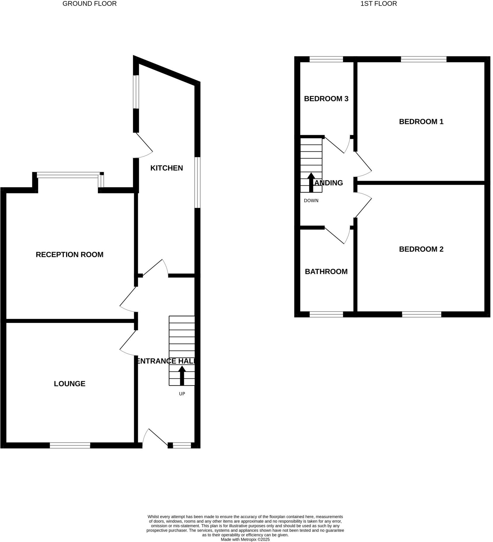
This spacious end terraced house offers so much potential. With three bedrooms and two reception rooms, once it has been modernised it will be a great first step on the property ladder for a first time buyer or a brilliant buy to let investment. Call to arrange a viewing as soon as possible to av...
Property Oracle says ..
Therefore, we give this property 5 / 10. *Disclaimer: This is our option and does constitute a recommendation or financial advice. Do your own research. *
- Price
- 7
- Condition
- 5
- Location
- 7
- Land
- 1
- Bedrooms
- 3
- Bathrooms
- 1
- Sqft (est)
- 724.57
The heatmap indicates the level of crime in the area. The color of the heatmap indicates the crime severity and recency.
Metrics Year-on-Year
- Average area value
- 308,182.00 £Increased by 29.01 %
- Est sale value
- 258,671.49 £Increased by 74.15 %
- Average area rental value
- 811.00 £/moDecreased by 5.59 %
- Est letting value
- 0.00 £/mo
- Est rental Yield
- 3.16 %Decreased by 26.85 %
- Crime Rate
- 6.00 %Unchanged by 0.00 %
from 238,886.00 £
from 148,536.85 £
from 859.00 £/mo
from 0.00 £/mo
from 4.32 %
from 6.00 %
Agent Activity
Kingswood created the listing.
Nearby Schools
| Name | Type | Ofsted | Distance |
|---|---|---|---|
| Preston Muslim Girls High School | Voluntary Aided School | Outstanding | 0.39 KM |
| St Gregory'S Catholic Primary School, Preston | Voluntary Aided School | Outstanding | 0.57 KM |
| Deepdale Community Primary School | Community School | Requires improvement | 0.67 KM |
| St Joseph'S Catholic Primary School, Preston | Voluntary Aided School | Good | 0.82 KM |
| Ribbleton Avenue Infant School | Community School | Outstanding | 0.83 KM |
Images
Nearby Streets
| Name | Average Price | Average Sqft | Distance |
|---|---|---|---|
| Rook Street | £ 0 | 0 | 0.00 KM |
| Romford Road | £ 0 | 0 | 0.00 KM |
| Wignall Street | £ 0 | 0 | 0.00 KM |
| Hollins Road | £ 0 | 0 | 0.00 KM |
| Poynter Street | £ 0 | 0 | 0.00 KM |
Nearby Transport
| Name | NLC | TLC | Distance |
|---|---|---|---|
| Preston (Lancs) | 2753 | PRE | 3.02 KM |
| Lostock Hall | 2689 | LOH | 5.05 KM |
| Bamber Bridge | 2561 | BMB | 5.39 KM |
| Leyland | 2710 | LEY | 7.86 KM |
Nearby Listings
| Address | Price | Type | Score | Distance |
|---|---|---|---|---|
| Skeffington Road, Preston, PR1 | £ 160,000 | BUY | 5 / 10 | 0.00 KM |
| Acorn Close, Preston, PR1 | £ 300,000 | BUY | 5 / 10 | 0.11 KM |
| St Chads Road, Preston, PR1 | £ 110,000 | BUY | 5 / 10 | 0.19 KM |
| Lutwidge Avenue, Preston, PR1 | £ 110,000 | BUY | 7 / 10 | 0.19 KM |
| Lutwidge Avenue, PRESTON, Lancashire, PR1 | £ 130,000 | BUY | 6 / 10 | 0.19 KM |
Nearby Properties
| Address | Price | Distance |
|---|---|---|
| 261 Skeffington Road | £ 110,000 | 0.01 KM |
| 204 Skeffington Road | £ 77,500 | 0.01 KM |
| 192 Skeffington Road | £ 146,000 | 0.01 KM |
| 194 Skeffington Road | £ 110,000 | 0.01 KM |
| 8 Penguin Street | £ 55,000 | 0.15 KM |