Tudor & Co says ..
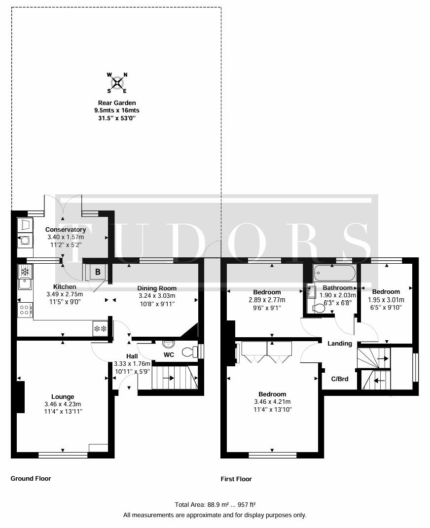
TUDORS are pleased to offer for sale this three bedroom end of terrace home which has a wonderful sized plot with potential to extend to the side and rear of the property – STPP. Offered to the market with NO ONWARD CHAIN and located in a pleasant road in the heart of East Molesey within...
Property Oracle says ..
This is a three-bedroom semi-detached house located on Hurst Lane, East Molesey. The property features a modern kitchen and bathroom, a generously sized garden, and off-street parking. While generally well-maintained, some areas could benefit from minor cosmetic improvements. The location is convenient for families, with several schools nearby, and commuters, with Hampton Court station within reasonable distance. The asking price is in line with the local market, making it a potentially attractive purchase.
Therefore, we give this property 7 / 10. *Disclaimer: This is our option and does constitute a recommendation or financial advice. Do your own research. *
- Price
- 7
- Condition
- 7
- Location
- 7
- Land
- 8
- Bedrooms
- 3
- Bathrooms
- 2
- Sqft (est)
- 956.91
The heatmap indicates the level of crime in the area. The color of the heatmap indicates the crime severity and recency.
Metrics Year-on-Year
- Average area value
- 736,658.00 £Decreased by 7.15 %
- Est sale value
- 692,802.84 £Increased by 11.56 %
- Average area rental value
- 2,100.00 £/moDecreased by 8.93 %
- Est letting value
- 1,913.82 £/moIncreased by 100.00 %
- Est rental Yield
- 3.42 %Decreased by 2.01 %
- Crime Rate
- 5.00 %Unchanged by 0.00 %
Agent Activity
Tudor & Co created the listing.
Nearby Schools
| Name | Type | Ofsted | Distance |
|---|---|---|---|
| St Alban'S Catholic Primary School | Academy Converter | Good | 0.51 KM |
| St Lawrence Cofe Aided Junior School, East Molesey | Voluntary Aided School | Good | 0.58 KM |
| Chandlers Field Primary School | Foundation School | Good | 1.18 KM |
| The Orchard Infant School | Foundation School | Outstanding | 1.29 KM |
| Twickenham Preparatory School | Other Independent School | 1.32 KM |
Images
Nearby Streets
| Name | Average Price | Average Sqft | Distance |
|---|---|---|---|
| Parabola Court | £ 0 | 0 | 0.00 KM |
| Park Way | £ 890,000 | 0 | 0.00 KM |
| Kent Road | £ 1,166,650 | 0 | 0.00 KM |
| The Fairway | £ 536,667 | 0 | 0.00 KM |
| Manor Road | £ 1,525,000 | 0 | 0.00 KM |
Nearby Transport
| Name | NLC | TLC | Distance |
|---|---|---|---|
| Hampton | 5560 | HMP | 1.94 KM |
| Hampton Court | 5561 | HMC | 1.95 KM |
| Esher | 5558 | ESH | 2.69 KM |
| Thames Ditton | 5610 | THD | 2.81 KM |
| Fulwell | 5587 | FLW | 3.64 KM |
Nearby Listings
| Address | Price | Type | Score | Distance |
|---|---|---|---|---|
| Hurst Lane, East Molesey, KT8 | £ 725,000 | BUY | 7 / 10 | 0.00 KM |
| Hurst Lane, East Molesey | £ 550,000 | BUY | 8 / 10 | 0.03 KM |
| Hurst Lane, East Molesey, KT8 | £ 500,000 | BUY | 7 / 10 | 0.05 KM |
| Hurst Lane, East Molesey, KT8 | £ 639,950 | BUY | Unknown | 0.05 KM |
| Dennis Road, East Molesey, Surrey, KT8 | £ 875,000 | BUY | 7 / 10 | 0.08 KM |
Nearby Properties
| Address | Price | Distance |
|---|---|---|
| 4 Hurst Lane | £ 148,500 | 0.01 KM |
| 44 Hurst Lane | £ 585,000 | 0.01 KM |
| 42 Hurst Lane | £ 795,000 | 0.01 KM |
| 16 Hurst Lane | £ 315,000 | 0.01 KM |
| 14 Hurst Lane | £ 390,000 | 0.01 KM |