Whaddon Way, Bletchley, Milton Keynes, MK3 7JT
By eXp UK
£ 295,000
Reviews
2 out of 5 stars
eXp UK says ..
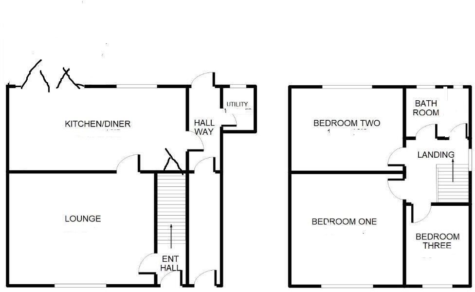
Viewing reference TB1154 Set on Whaddon Way in a popular part of Bletchley, this three-bedroom home offers great space, a big garden and drive parking in MK3. A welcoming entrance hall leads to a generous lounge at the front, ideal for relaxing and family time. Across the rear, a full-w...
Property Oracle says ..
This is a 3-bedroom semi-detached property located on Whaddon Way, Bletchley, Milton Keynes. The property is listed for £295,000 by eXp UK. While the property benefits from its location with access to nearby schools and transportation, it appears to be in need of renovation. The price seems reasonable considering the condition and the local market. The property offers an opportunity for buyers willing to invest in improvements.
Therefore, we give this property 5 / 10. *Disclaimer: This is our option and does constitute a recommendation or financial advice. Do your own research. *
- Price
- 7
- Condition
- 4
- Location
- 6
- Land
- 5
- Bedrooms
- 3
- Bathrooms
- 1
The heatmap indicates the level of crime in the area. The color of the heatmap indicates the crime severity and recency.
Metrics Year-on-Year
- Average area value
- 451,286.00 £Increased by 32.54 %
- Average area rental value
- 1,410.00 £/moDecreased by 12.04 %
- Est rental Yield
- 3.75 %Decreased by 33.63 %
- Crime Rate
- 12.00 %Unchanged by 0.00 %
Agent Activity
eXp UK created the listing.
Nearby Schools
| Name | Type | Ofsted | Distance |
|---|---|---|---|
| White Spire School | Community Special School | Outstanding | 0.23 KM |
| Lord Grey Academy | Academy Sponsor Led | 0.23 KM | |
| Rickley Park Primary School | Academy Converter | Good | 0.40 KM |
| Cambian Bletchley Park School | Other Independent Special School | Inadequate | 0.62 KM |
| Barleyhurst Park Primary | Community School | Good | 0.69 KM |
Images
Nearby Streets
| Name | Average Price | Average Sqft | Distance |
|---|---|---|---|
| Highland Close | £ 587,498 | 0 | 0.00 KM |
| Grange Road | £ 0 | 0 | 0.00 KM |
| Orchard Close | £ 0 | 0 | 0.00 KM |
| Denbigh Hall Drive | £ 0 | 0 | 0.00 KM |
| Jemima Way | £ 0 | 0 | 0.00 KM |
Nearby Transport
| Name | NLC | TLC | Distance |
|---|---|---|---|
| Bletchley | 1360 | BLY | 1.65 KM |
| Fenny Stratford | 1377 | FEN | 3.78 KM |
| Milton Keynes Central | 1378 | MKC | 4.58 KM |
| Bow Brickhill | 1381 | BWB | 6.00 KM |
| Wolverton | 1364 | WOL | 9.40 KM |
Nearby Listings
| Address | Price | Type | Score | Distance |
|---|---|---|---|---|
| Whaddon Way, Bletchley, Milton Keynes, MK3 7JT | £ 295,000 | BUY | 5 / 10 | 0.00 KM |
| Westminster Drive, Bletchley, Milton Keynes | £ 315,000 | BUY | 6 / 10 | 0.12 KM |
| Middlesex Drive, Bletchley, Milton Keynes, Buckinghamshire, MK3 7EU | £ 300,000 | BUY | Unknown | 0.17 KM |
| Essex Close, Milton Keynes, Buckinghamshire, MK3 | £ 300,000 | BUY | Unknown | 0.17 KM |
| Middlesex Drive, Bletchley, Milton Keynes, MK3 7HA | £ 325,000 | BUY | 7 / 10 | 0.25 KM |
Nearby Properties
| Address | Price | Distance |
|---|---|---|
| 310 Whaddon Way | £ 266,000 | 0.01 KM |
| 302 Whaddon Way | £ 295,000 | 0.01 KM |
| 306 Whaddon Way | £ 223,995 | 0.01 KM |
| 315 Whaddon Way | £ 279,995 | 0.07 KM |
| 289 Whaddon Way | £ 275,000 | 0.07 KM |