Chancellors says ..
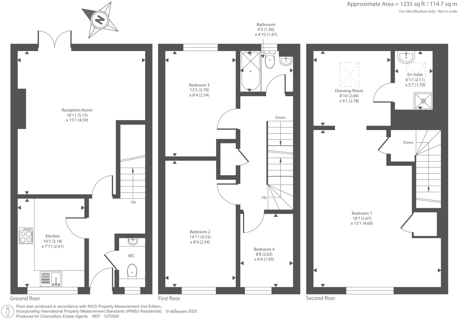
Located within 0.3 miles of Bromyard town centre, is this well presented four bedroom end of terrace modern townhouse set over three floors over private wrap around gardens and driveway parking.
Property Oracle says ..
This four-bedroom terraced house in Bromyard, Herefordshire is listed at £290,000. The property is modern and well-maintained, with a contemporary kitchen and bathrooms. It benefits from a good-sized garden and is conveniently located near several well-regarded schools, including St Peter’s Primary School and Queen Elizabeth High School, both rated “Good” by Ofsted. While specific transportation links are not detailed, its location in Bromyard suggests access to local amenities and services. The average house price in the area is £208,494, and the average price per square foot is £245. This property, at 1,235 sqft, is larger than average. Nearby comparable properties range in price from £80,000 to £465,000, reflecting the variation in property type and size. The list price of £290,000 appears relatively reasonable when considering the property’s condition, size, and location, though further analysis of comparable properties with similar square footage would strengthen this assessment.
Therefore, we give this property 7 / 10. *Disclaimer: This is our option and does constitute a recommendation or financial advice. Do your own research. *
- Price
- 7
- Condition
- 9
- Location
- 8
- Land
- 7
- Bedrooms
- 4
- Bathrooms
- 2
- Sqft (est)
- 1,235.00
The heatmap indicates the level of crime in the area. The color of the heatmap indicates the crime severity and recency.
Metrics Year-on-Year
- Average area value
- 225,619.00 £Decreased by 6.60 %
- Est sale value
- 267,995.00 £Decreased by 18.73 %
- Average area rental value
- 850.00 £/moDecreased by 4.92 %
- Est letting value
- 0.00 £/mo
- Est rental Yield
- 4.52 %Increased by 1.80 %
- Crime Rate
- 42.00 %Unchanged by 0.00 %
Agent Activity
Chancellors created the listing.
Nearby Schools
| Name | Type | Ofsted | Distance |
|---|---|---|---|
| St Peter'S Primary School | Foundation School | Good | 0.90 KM |
| Queen Elizabeth High School | Academy Converter | Good | 0.92 KM |
| H.O.P.E Children'S Centre, Bromyard | Children's Centre | 1.18 KM | |
| Rowden House School | Other Independent Special School | Good | 3.08 KM |
| Brockhampton Primary School | Academy Converter | Good | 4.23 KM |
Images
Nearby Streets
| Name | Average Price | Average Sqft | Distance |
|---|---|---|---|
| Pinetree Close | £ 350,000 | 0 | 0.00 KM |
| Ballhurst Road | £ 0 | 0 | 0.00 KM |
| Nodens Lane | £ 0 | 0 | 0.00 KM |
| Bromyard Bypass | £ 0 | 0 | 0.00 KM |
| Meadow Court | £ 0 | 0 | 0.00 KM |
Nearby Listings
| Address | Price | Type | Score | Distance |
|---|---|---|---|---|
| Bromyard, Herefordshire, HR7 | £ 290,000 | BUY | 7 / 10 | 0.00 KM |
| Clover Terrace, Bromyard, Herefordshire | £ 355,000 | BUY | 6 / 10 | 0.11 KM |
| 16 Clover Terrace, Bromyard, Herefordshire, HR7 | £ 210,000 | BUY | 5 / 10 | 0.13 KM |
| Clover Terrace, Bromyard, HR7 | £ 199,500 | BUY | 5 / 10 | 0.13 KM |
| Old Road, Bromyard | £ 415,000 | BUY | 7 / 10 | 0.15 KM |
Nearby Properties
| Address | Price | Distance |
|---|---|---|
| 2 Kempson View | £ 220,000 | 0.02 KM |
| 61 New Road | £ 275,000 | 0.13 KM |
| Amber Rise | £ 380,000 | 0.13 KM |
| 28 Clover Terrace | £ 167,000 | 0.13 KM |
| 14 Clover Terrace | £ 154,000 | 0.13 KM |