Canterbury Street, Gillingham, Kent, ME7
By Purpleproperty
£ 275,000
Reviews
2 out of 5 stars
Purpleproperty says ..
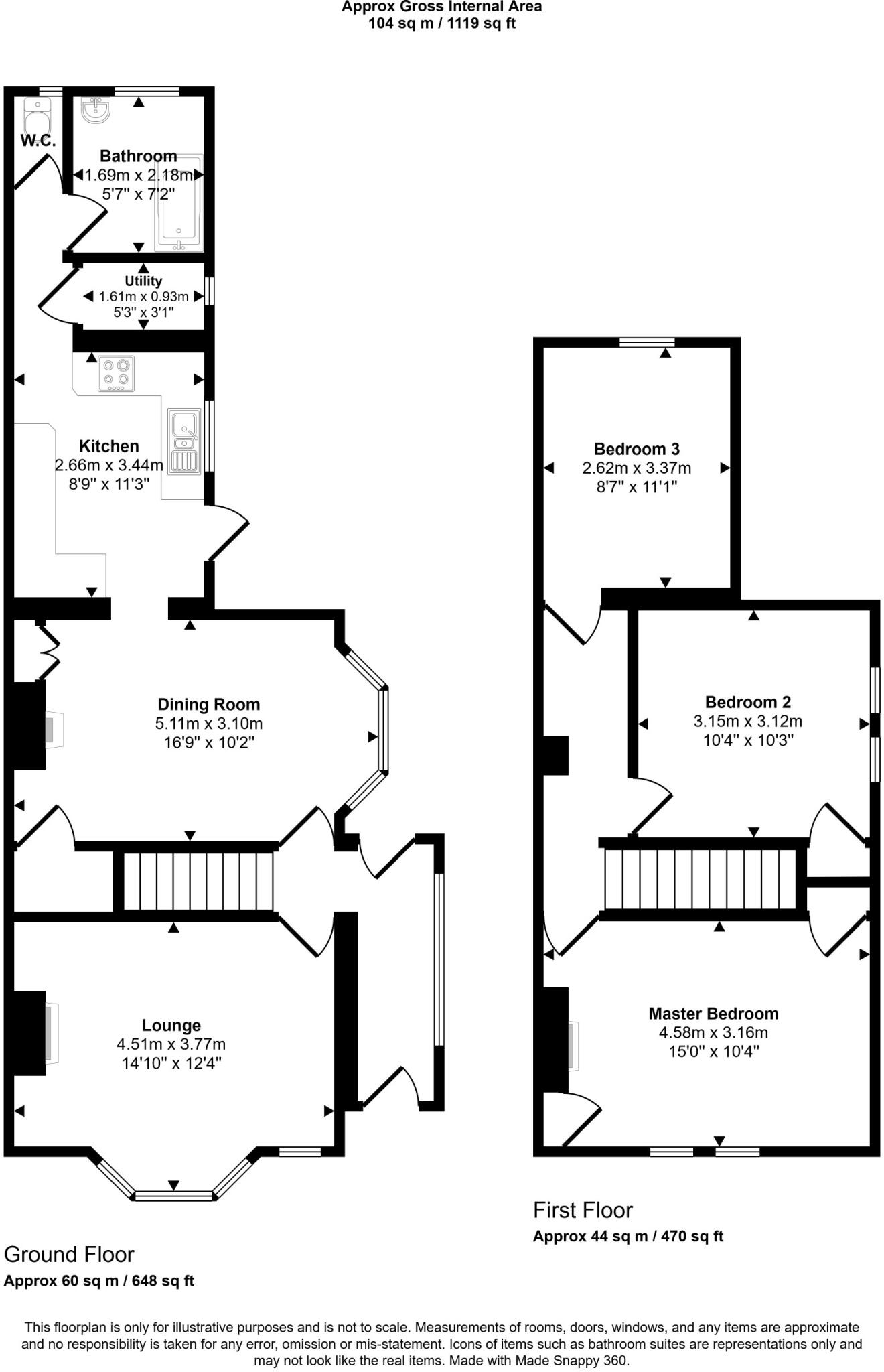
Discover this inviting end of terrace house in Canterbury Street, Gillingham, ME7 5, featuring three separate bedrooms, two reception rooms, a utility room, and a cellar with great head height. Offered at £290,000.
Property Oracle says ..
This end-of-terrace property on Canterbury Street, Gillingham, offers three bedrooms and one bathroom. While the square footage is not specified, the property is listed for £275,000. The location provides proximity to local schools and transportation, including Gillingham train station. The interior features a modern kitchen and bathroom, but some areas could benefit from updating. The property includes a small garden or yard. Considering the location, condition, and available amenities, this property presents a solid opportunity for potential buyers.
Therefore, we give this property 5 / 10. *Disclaimer: This is our option and does constitute a recommendation or financial advice. Do your own research. *
- Price
- 7
- Condition
- 6
- Location
- 6
- Land
- 4
- Bedrooms
- 3
- Bathrooms
- 1
The heatmap indicates the level of crime in the area. The color of the heatmap indicates the crime severity and recency.
Metrics Year-on-Year
- Average area value
- 253,389.00 £Increased by 1.64 %
- Average area rental value
- 981.00 £/moDecreased by 6.12 %
- Est rental Yield
- 4.65 %Decreased by 7.55 %
- Crime Rate
- 4.00 %Unchanged by 0.00 %
Agent Activity
Purpleproperty created the listing.
Nearby Schools
| Name | Type | Ofsted | Distance |
|---|---|---|---|
| Byron Primary School | Academy Sponsor Led | Requires improvement | 0.34 KM |
| Napier Community Primary And Nursery Academy | Academy Sponsor Led | Good | 0.49 KM |
| Hospital And Medical Tuition Service | Miscellaneous | 0.64 KM | |
| Chatham Grammar | Academy Converter | Good | 0.71 KM |
| Brompton Academy | Academy Sponsor Led | Good | 0.94 KM |
Images
Nearby Streets
| Name | Average Price | Average Sqft | Distance |
|---|---|---|---|
| Kimberley Road | £ 0 | 0 | 0.00 KM |
| Pretoria Road | £ 230,000 | 0 | 0.00 KM |
| Borough Road | £ 450,000 | 0 | 0.00 KM |
| Balmoral Gardens | £ 0 | 0 | 0.00 KM |
| Balmoral Road | £ 0 | 0 | 0.00 KM |
Nearby Transport
| Name | NLC | TLC | Distance |
|---|---|---|---|
| Gillingham (Kent) | 5169 | GLM | 0.76 KM |
| Chatham | 5199 | CTM | 2.94 KM |
| Rochester | 5203 | RTR | 4.18 KM |
| Strood (Kent) | 5191 | SOO | 5.57 KM |
| Rainham (Kent) | 5177 | RAI | 7.20 KM |
Nearby Listings
| Address | Price | Type | Score | Distance |
|---|---|---|---|---|
| Canterbury Street, Gillingham, Kent, ME7 | £ 275,000 | BUY | 5 / 10 | 0.00 KM |
| Canterbury Street, Gillingham, Kent | £ 220,000 | BUY | 5 / 10 | 0.04 KM |
| Canterbury Street, Gillingham, ME7 5XN | £ 425,000 | BUY | 6 / 10 | 0.04 KM |
| Wellington Road, Gillingham | £ 230,000 | BUY | 6 / 10 | 0.05 KM |
| 279 Canterbury Street, Gillingham, Kent, ME7 5XN | £ 300,000 | BUY | 5 / 10 | 0.06 KM |
Nearby Properties
| Address | Price | Distance |
|---|---|---|
| 234 Canterbury Street | £ 119,000 | 0.01 KM |
| 222a Canterbury Street | £ 35,000 | 0.01 KM |
| 216 Canterbury Street | £ 125,000 | 0.01 KM |
| 214 Canterbury Street | £ 83,000 | 0.02 KM |
| 236 Canterbury Street | £ 270,000 | 0.02 KM |