East Street, Okehampton, Devon, EX20
ST

East Street, Okehampton, Devon, EX20

By Stevens Estate Agents

£ 125,000

Reviews

2 out of 5 stars

Stevens Estate Agents says ..

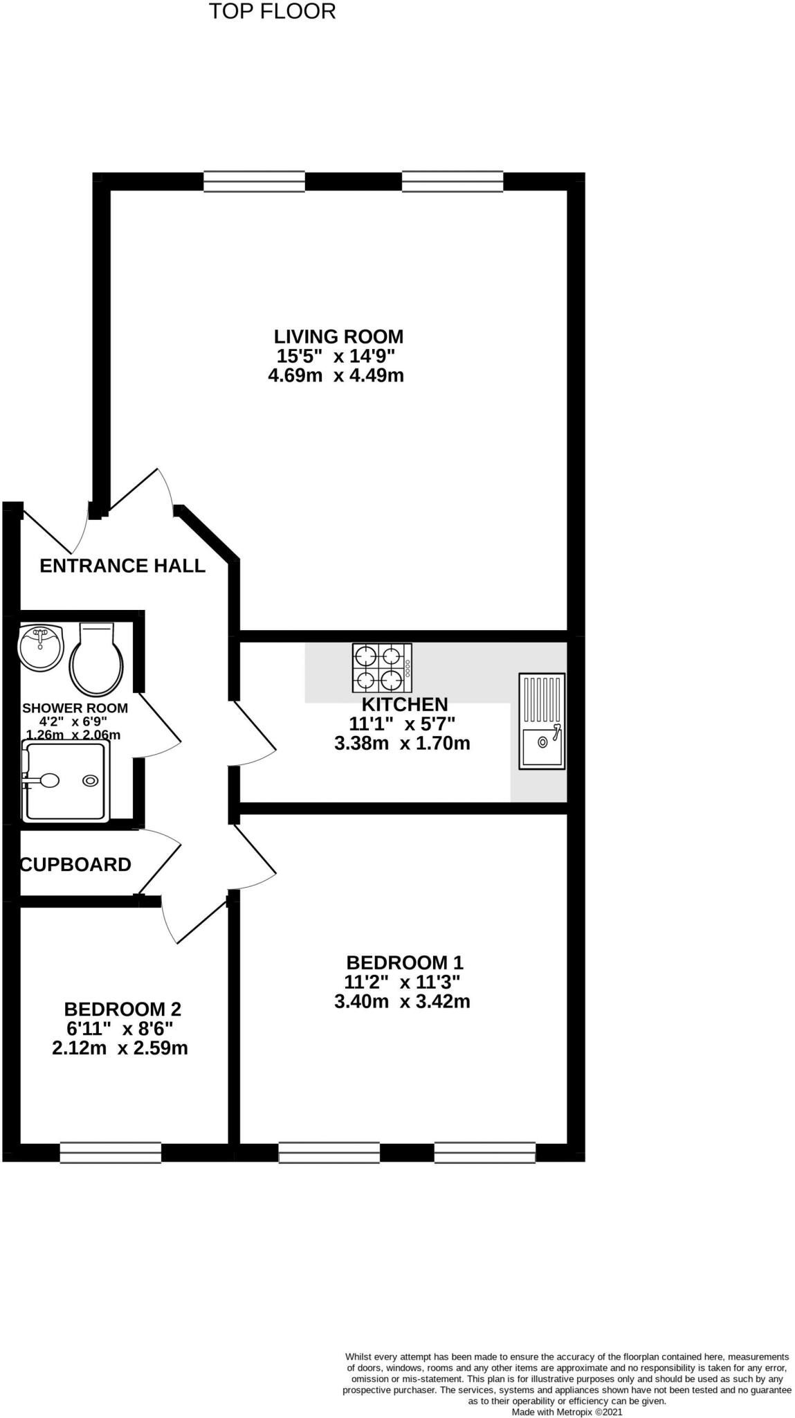
A well presented two bedroom apartment situated in a convenient location with easy access of the town and its amenities whilst benefiting from parking. Ideal property for a first time buyer or investor.

Property Oracle says ..

This two-bedroom apartment in Okehampton, Devon, presents a mixed bag of attributes. Its location on East Street provides convenient access to the town’s amenities, including schools like Okehampton College and Okehampton Primary School, which are relatively close. The train station is also within a reasonable distance. The property itself is a two-bedroom apartment which is well presented in the photographs provided. The interior décor is quite dated, and potential buyers should account for some modernisation or refurbishment based on their personal preferences. The apartment offers a small private section of communal garden space; however, there is no significant private garden area. Given the comparable listings, the price appears reasonable, though more thorough comparative market analysis is needed. Overall, the property is suitable for first-time buyers or investors, especially those prioritising a good location over expansive outdoor space. Buyers should factor in the potential costs associated with modernising the property’s interior.

Therefore, we give this property 5 / 10. *Disclaimer: This is our option and does constitute a recommendation or financial advice. Do your own research. *

Price
7
Condition
6
Location
7
Land
2
Bedrooms
2
Bathrooms
1
Sqft (est)
825.27

The heatmap indicates the level of crime in the area. The color of the heatmap indicates the crime severity and recency.

Metrics Year-on-Year

Average area value
220,000.00 £
Decreased by 15.75 %
from 261,122.00 £
Est sale value
261,610.59 £
Increased by 46.76 %
from 178,258.32 £
Average area rental value
880.00 £/mo
Increased by 12.53 %
from 782.00 £/mo
Est letting value
825.27 £/mo
from 0.00 £/mo
Est rental Yield
4.80 %
Increased by 33.70 %
from 3.59 %
Crime Rate
40.00 %
Unchanged by 0.00 %
from 40.00 %

Agent Activity

  • Stevens Estate Agents created the listing.

Nearby Schools

NameTypeOfstedDistance
Okehampton CollegeAcademy Converter0.32 KM
Okehampton Area Children'S CentreChildren's Centre0.32 KM
Okehampton Primary School And Foundation UnitAcademy Converter0.80 KM
St James Church Of England Primary And Nursery SchoolFree Schools1.37 KM
Exbourne Church Of England Primary SchoolAcademy Converter6.90 KM

Images

IMG_6203_4_5-Copy.jpg image00008-Copy.jpg image00006-Copy.jpg image00009-Copy.jpg image00007-Copy.jpg image00002-Copy.jpg image00003-Copy.jpg image00005-Copy.jpg IMG_6206_7_8-Copy.jpg image00004-Copy.jpg image00011 image00012 image00015 image00006 image00003 image00009 image00012 image00014 image00001 image00013 image00008 image00006

Nearby Streets

NameAverage PriceAverage SqftDistance
Mill Road £ 000.00 KM
Ashley Road £ 000.00 KM
Courtenay Road £ 000.00 KM
West View Road £ 000.00 KM
Cavell Way £ 000.00 KM

Nearby Transport

NameNLCTLCDistance
Okehampton5786OKE0.86 KM
Sampford Courtenay8724SMC6.53 KM

Nearby Listings

AddressPriceTypeScoreDistance
East Street, Okehampton, Devon, EX20 £ 119,950BUY7 / 100.00 KM
The Chantry, East Street, Okehampton, Devon £ 129,950BUY6 / 100.00 KM
East Street, Okehampton, Devon, EX20 £ 125,000BUY5 / 100.00 KM
Okehampton, Devon, EX20 £ 118,000BUY5 / 100.00 KM
Okehampton, Devon £ 165,000BUY4 / 100.04 KM

Nearby Properties

AddressPriceDistance
7 Crediton Road £ 147,5000.09 KM
11 Crediton Road £ 136,0000.09 KM
3 Crediton Road £ 159,0000.09 KM
51 East Street £ 130,0000.11 KM
53 East Street £ 120,0000.11 KM