Gascoigne Halman says ..
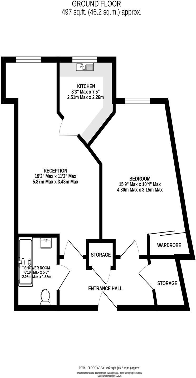
Attractive one-bedroom apartment for the over 60s, ideally positioned on the first floor with lovely views over a well-kept public garden area. Features include a fitted kitchen, modern walk-in shower room, and built-in wardrobes. The development offers lift access, a communal lounge, guest suite...
Property Oracle says ..
This one bedroom retirement property is located in Altrincham, Greater Manchester. The property itself is in good condition and benefits from a modern kitchen and bathroom. While the property is smaller than the average for the area, its location near several amenities and transport links is a significant advantage. The list price is considerably lower than the average for the area, making it potentially good value for money, especially for a retirement property.
Therefore, we give this property 6 / 10. *Disclaimer: This is our option and does constitute a recommendation or financial advice. Do your own research. *
- Price
- 7
- Condition
- 8
- Location
- 9
- Land
- 3
- Bedrooms
- 1
- Bathrooms
- 1
- Sqft (est)
- 497.00
- Lot (est)
- 497.00
The heatmap indicates the level of crime in the area. The color of the heatmap indicates the crime severity and recency.
Metrics Year-on-Year
- Average area value
- 722,500.00 £Increased by 54.20 %
- Est sale value
- 262,416.00 £Increased by 14.29 %
- Average area rental value
- 1,848.00 £/moIncreased by 23.12 %
- Est letting value
- 497.00 £/moUnchanged by 0.00 %
- Est rental Yield
- 3.07 %Decreased by 20.05 %
- Crime Rate
- 0.00 %
Agent Activity
Gascoigne Halman created the listing.
Nearby Schools
| Name | Type | Ofsted | Distance |
|---|---|---|---|
| Navigation Primary School | Community School | Good | 0.42 KM |
| Altrincham Cofe (Aided) Primary School | Voluntary Aided School | Requires improvement | 0.61 KM |
| St Vincent'S Catholic Primary School | Voluntary Aided School | Outstanding | 0.73 KM |
| Loreto Preparatory School | Other Independent School | 0.83 KM | |
| Trafford Alternative Education Provision | Pupil Referral Unit | Good | 0.85 KM |
Images
Nearby Streets
| Name | Average Price | Average Sqft | Distance |
|---|---|---|---|
| Airedale Court | £ 0 | 0 | 0.00 KM |
| Townfield Road | £ 500,000 | 0 | 0.00 KM |
| Occupation Road | £ 525,000 | 0 | 0.00 KM |
| Altrincham Interchange | £ 0 | 0 | 0.00 KM |
| Brewery Street | £ 0 | 0 | 0.00 KM |
Nearby Transport
| Name | NLC | TLC | Distance |
|---|---|---|---|
| Altrincham | 2806 | ALT | 0.56 KM |
| Navigation Road | 2940 | NVR | 0.62 KM |
| Hale (Manchester) | 2845 | HAL | 1.54 KM |
| Ashley | 2850 | ASY | 4.16 KM |
| Urmston | 2938 | URM | 6.23 KM |
Nearby Listings
| Address | Price | Type | Score | Distance |
|---|---|---|---|---|
| Hazel Road, Altrincham | £ 140,000 | BUY | 6 / 10 | 0.00 KM |
| Speakman Court, Altrincham, WA14 1BP | £ 160,000 | BUY | Unknown | 0.01 KM |
| Hazel Rd, Altrincham, WA14 1BP | £ 160,000 | BUY | 7 / 10 | 0.01 KM |
| Speakman Court, Altrincham, WA14 1BP | £ 138,000 | BUY | Unknown | 0.01 KM |
| Hazel Road, Altrincham, WA14 1BP | £ 179,500 | BUY | 7 / 10 | 0.01 KM |
Nearby Properties
| Address | Price | Distance |
|---|---|---|
| 2 Hazel Road | £ 651,000 | 0.08 KM |
| 6 Hazel Road | £ 660,000 | 0.08 KM |
| 19 Barrington Road | £ 487,000 | 0.09 KM |
| 23 Barrington Road | £ 790,000 | 0.09 KM |
| 23b Barrington Road | £ 65,000 | 0.09 KM |