Ossory Road, London, SE1
By Buy To Let Property Shop
£ 464,000
Reviews
3 out of 5 stars
Buy To Let Property Shop says ..
This apartment is set in a development designed to deliver residences that extend beyond the simple proposals of "high-quality apartments" therefore it offers a complete environment in which to make a life prosperous.
Property Oracle says ..
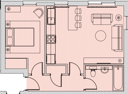
This property is a 1-bedroom, 1-bathroom apartment located in the Old Kent Road area of Southwark, London. The apartment is modern and well-presented, with a contemporary design throughout. The location benefits from proximity to several transport links and well-regarded schools, making it attractive to young professionals and families alike. However, the plot size is very small, and the average price per sqft in the area is significantly higher than the property’s list price. This suggests that the property may be undervalued, though further investigation into comparable properties would be needed to confirm this. The nearby listings suggest that prices in the area vary considerably, and the lack of sqft data for these listings makes direct comparisons challenging. The images show a modern, well-maintained property, suggesting it is in excellent condition.
Therefore, we give this property 6 / 10. *Disclaimer: This is our option and does constitute a recommendation or financial advice. Do your own research. *
- Price
- 7
- Condition
- 10
- Location
- 8
- Land
- 1
- Bedrooms
- 1
- Bathrooms
- 1
- Sqft (est)
- 374.50
The heatmap indicates the level of crime in the area. The color of the heatmap indicates the crime severity and recency.
Metrics Year-on-Year
- Average area value
- 448,750.00 £Increased by 43.15 %
- Est sale value
- 131,075.00 £Increased by 2.64 %
- Average area rental value
- 1,650.00 £/moIncreased by 60.98 %
- Est letting value
- 374.50 £/moUnchanged by 0.00 %
- Est rental Yield
- 4.41 %Increased by 12.50 %
- Crime Rate
- 5.00 %Unchanged by 0.00 %
Agent Activity
Buy To Let Property Shop created the listing.
Nearby Schools
| Name | Type | Ofsted | Distance |
|---|---|---|---|
| Phoenix Primary School | Community School | Outstanding | 0.34 KM |
| Haymerle School | Community Special School | Good | 0.38 KM |
| Southwark Inclusive Learning Service (Sils) | Pupil Referral Unit | Good | 0.54 KM |
| St Francis Rc Primary School | Voluntary Aided School | Good | 0.65 KM |
| Cobourg Primary School | Community School | Requires improvement | 0.65 KM |
Images
Nearby Streets
| Name | Average Price | Average Sqft | Distance |
|---|---|---|---|
| Mawbey Road | £ 0 | 0 | 0.00 KM |
| Ainsdale Drive | £ 0 | 0 | 0.00 KM |
| Marlborough Grove | £ 0 | 0 | 0.00 KM |
| Estate Road | £ 0 | 0 | 0.00 KM |
| Hereford Retreat | £ 450,000 | 0 | 0.00 KM |
Nearby Transport
| Name | NLC | TLC | Distance |
|---|---|---|---|
| Peckham Rye | 5423 | PMR | 1.60 KM |
| South Bermondsey | 5425 | SBM | 1.86 KM |
| Queens Road Peckham | 5424 | QRP | 1.93 KM |
| Denmark Hill | 5421 | DMK | 2.70 KM |
| East Dulwich | 5358 | EDW | 2.75 KM |
Nearby Listings
| Address | Price | Type | Score | Distance |
|---|---|---|---|---|
| Old Kent Road, London, SE1 | £ 800,000 | BUY | Unknown | 0.11 KM |
| Portway House, 2a, Ossory Road, London, SE1 | £ 125,000 | BUY | 6 / 10 | 0.15 KM |
| Portway House, 2a, Ossory Road, London, SE1 | £ 176,750 | BUY | Unknown | 0.15 KM |
| Portwayd House, 2a, Ossory Road, London, SE1 | £ 150,000 | BUY | 7 / 10 | 0.15 KM |
| Portway House, 2a, Ossory Road, London, SE1 | £ 126,250 | BUY | 6 / 10 | 0.15 KM |
Nearby Properties
| Address | Price | Distance |
|---|---|---|
| 29 Glengall Road | £ 490,000 | 0.15 KM |
| 3 Glengall Road | £ 720,000 | 0.15 KM |
| 25 Glengall Road | £ 630,000 | 0.15 KM |
| 5 Glengall Road | £ 990,000 | 0.15 KM |
| 55 Glengall Road | £ 249,950 | 0.16 KM |