Kings Road, Whithorn, DG8
SO

Kings Road, Whithorn, DG8

By South West Property Centre

£ 150,000

Reviews

2 out of 5 stars

South West Property Centre says ..

Charming 3-bed semi-detached stone house with spacious garden, woodland area, multi-fuel stove, and detached outbuildings. Ideal for renovation and family living in tranquil yet convenient location.

Property Oracle says ..

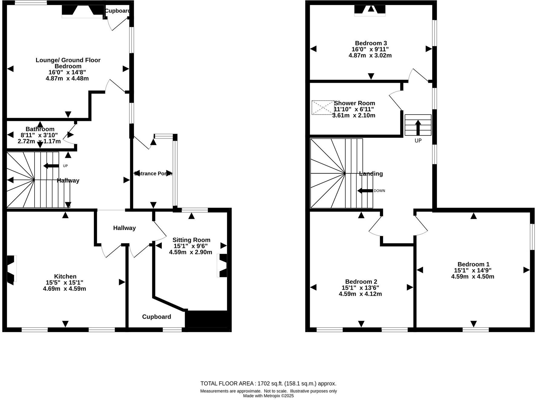
This property is a 3 bedroom, 2 bathroom semi-detached house located on King’s Road in Whithorn, Dumfries and Galloway. The list price is £150,000 and the property measures 1,702 sqft. The house is in need of significant modernisation and renovation throughout. The property benefits from a garden area to the rear which appears overgrown and in need of attention. While the location is in a quiet residential area, the lack of nearby amenities such as schools and transportation may be a drawback for some potential buyers. The average house price in the area is significantly higher than the list price of this property; however, this is likely due to the condition of the property and the need for extensive renovation.

Therefore, we give this property 4 / 10. *Disclaimer: This is our option and does constitute a recommendation or financial advice. Do your own research. *

Price
6
Condition
3
Location
4
Land
5
Bedrooms
3
Bathrooms
2
Sqft (est)
1,702.00

The heatmap indicates the level of crime in the area. The color of the heatmap indicates the crime severity and recency.

Metrics Year-on-Year

Average area value
507,692.00 £
Decreased by 14.14 %
from 591,271.00 £
Est sale value
919,080.00 £
Increased by 25.58 %
from 731,860.00 £
Average area rental value
1,925.00 £/mo
Decreased by 6.28 %
from 2,054.00 £/mo
Est letting value
3,404.00 £/mo
Increased by 100.00 %
from 1,702.00 £/mo
Est rental Yield
4.55 %
Increased by 9.11 %
from 4.17 %
Crime Rate
0.00 %
from 0.00 %

Agent Activity

  • South West Property Centre created the listing.

Images

Hallway Kitchen Kitchen Sitting Room Bathroom Lounge Landing Bedroom Shower Room Shower Room Bedroom Lounge Bedroom Bedroom

Nearby Streets

NameAverage PriceAverage SqftDistance
King's Road £ 000.00 KM
The Park £ 000.00 KM

Nearby Listings

AddressPriceTypeScoreDistance
Kings Road, Whithorn, DG8 £ 150,000BUY4 / 100.00 KM
George Street, Whithorn, DG8 £ 180,000BUY6 / 100.10 KM
George Street, Whithorn, DG8 £ 200,000BUY6 / 100.10 KM
George Street, Whithorn, DG8 £ 200,000BUY6 / 100.11 KM
George Street, Whithorn, DG8 £ 180,000BUY6 / 100.17 KM