Beaconsfield Road, London, N15
EL

Beaconsfield Road, London, N15

By Ellis & Co

£ 450,000

Reviews

3 out of 5 stars

Ellis & Co says ..

Ellis and Co. Tottenham are proud to present this beautiful FIrst Floor Flat in the heart of Tottenham. Call us on

Property Oracle says ..

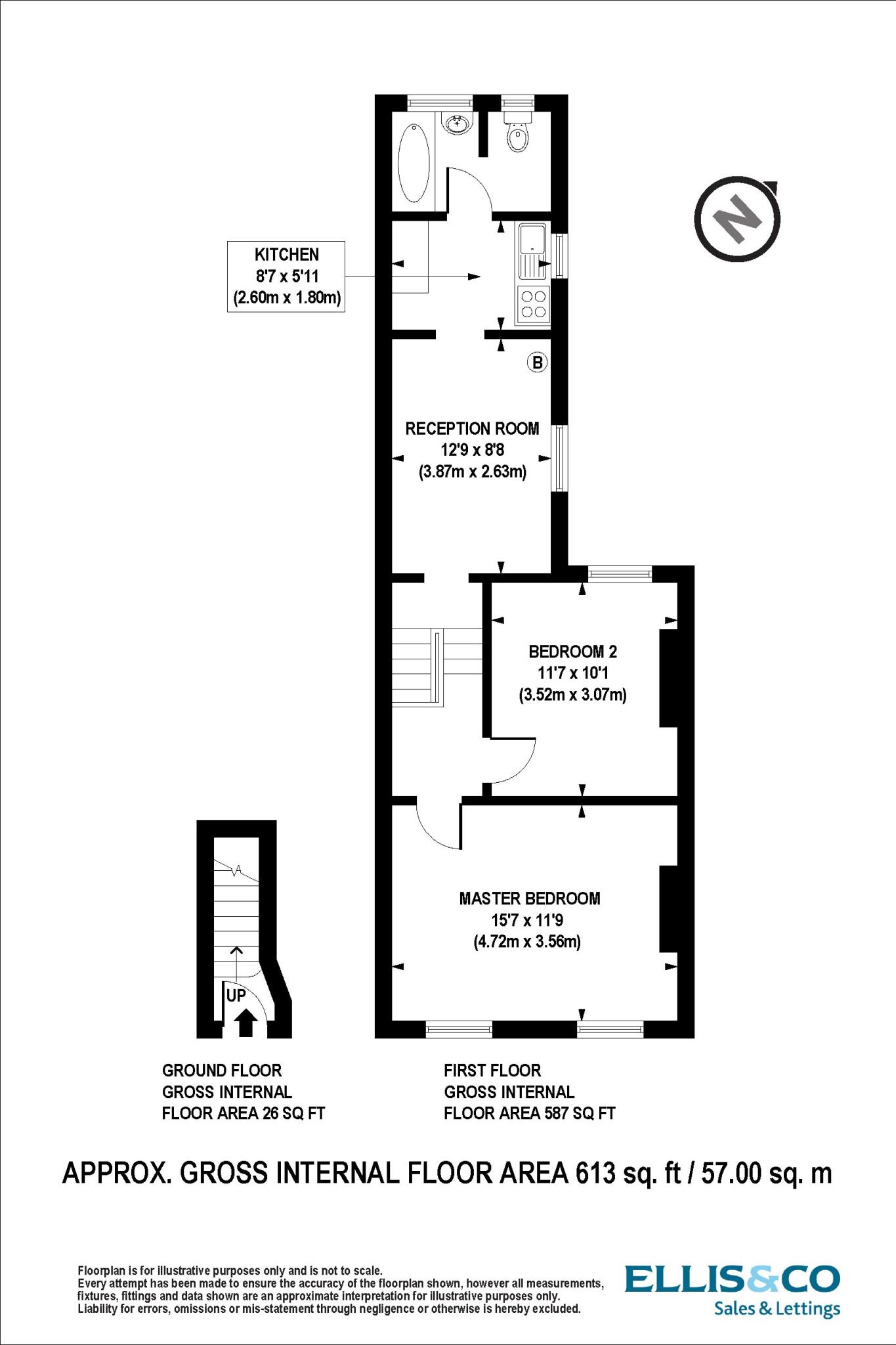
This is a two-bedroom apartment located on Beaconsfield Road in Tottenham Green, Haringey, London. The property is within close proximity to local schools and transport links. The property is listed for £450,000, which seems reasonable given the average price in the area. The property appears to be in a reasonable condition, although some aspects of the property would benefit from modernisation.

Therefore, we give this property 6 / 10. *Disclaimer: This is our option and does constitute a recommendation or financial advice. Do your own research. *

Price
7
Condition
6
Location
7
Land
4
Bedrooms
2
Bathrooms
1
Sqft (est)
464.36

The heatmap indicates the level of crime in the area. The color of the heatmap indicates the crime severity and recency.

Metrics Year-on-Year

Average area value
789,000.00 £
Increased by 13.27 %
from 696,574.00 £
Est sale value
539,586.32 £
Increased by 105.66 %
from 262,363.40 £
Average area rental value
2,233.00 £/mo
Increased by 4.05 %
from 2,146.00 £/mo
Est letting value
1,393.08 £/mo
Increased by 200.00 %
from 464.36 £/mo
Est rental Yield
3.40 %
Decreased by 8.11 %
from 3.70 %
Crime Rate
4.00 %
Unchanged by 0.00 %
from 4.00 %

Agent Activity

  • Ellis & Co created the listing.

Nearby Schools

NameTypeOfstedDistance
Ambitious CollegeSpecial Post 16 InstitutionGood0.41 KM
The Triangle CentreChildren's Centre0.75 KM
Seven Sisters Primary SchoolCommunity SchoolGood0.77 KM
South Grove Children'S CentreChildren's Centre0.77 KM
Earlsmead Children'S CentreChildren's Centre0.87 KM

Images

Picture No. 02 Picture No. 03 Picture No. 30 Picture No. 36 Picture No. 21 Picture No. 19 Picture No. 18 Picture No. 20 Picture No. 37 Picture No. 34 Picture No. 01 Picture No. 35 Picture No. 25 Picture No. 23 Picture No. 24 Picture No. 22 Picture No. 13 Picture No. 11 Picture No. 04 Picture No. 08 Picture No. 32 Picture No. 10 Picture No. 12 Picture No. 14 Picture No. 09 Picture No. 15 Picture No. 16 Picture No. 17 Picture No. 33 Picture No. 26 Picture No. 27 Picture No. 05 Picture No. 07 Picture No. 06 Picture No. 29 Picture No. 31 Picture No. 28

Nearby Streets

NameAverage PriceAverage SqftDistance
Portland Place £ 325,00000.00 KM
Houghton Road £ 000.00 KM
Lawrence Road £ 471,87500.00 KM
A10 £ 000.00 KM
Tarbert Mews £ 000.00 KM

Nearby Transport

NameNLCTLCDistance
Seven Sisters6931SVS0.41 KM
South Tottenham7404STO0.75 KM
Bruce Grove6958BCV1.14 KM
Stamford Hill6968SMH1.27 KM
Tottenham Hale6951TOM1.81 KM

Nearby Listings

AddressPriceTypeScoreDistance
Beaconsfield Road, London, N15 £ 450,000BUY6 / 100.00 KM
Beaconsfield Road, London, N15 £ 900,000BUYUnknown0.00 KM
Beaconsfield Road, London £ 649,950BUY6 / 100.03 KM
Beaconsfield Road, Seven Sisters, N15 £ 380,000BUY7 / 100.07 KM
Beaconsfield Road, London, N15 £ 700,000BUYUnknown0.07 KM

Nearby Properties

AddressPriceDistance
72 Beaconsfield Road £ 220,0000.01 KM
84a Beaconsfield Road £ 287,5000.02 KM
6 Beaconsfield Road £ 141,0000.02 KM
68 Beaconsfield Road £ 740,0000.02 KM
32 Beaconsfield Road £ 169,9950.02 KM