Terrace Road, St Leonards-on-Sea, TN37
By Express Estate Agency
£ 170,000
Reviews
2 out of 5 stars
Express Estate Agency says ..
We are proud to offer this Two Bedroom Flat – all interest and OFFERS are INVITED.*Guide Price £180,000 - £170,000*
Property Oracle says ..
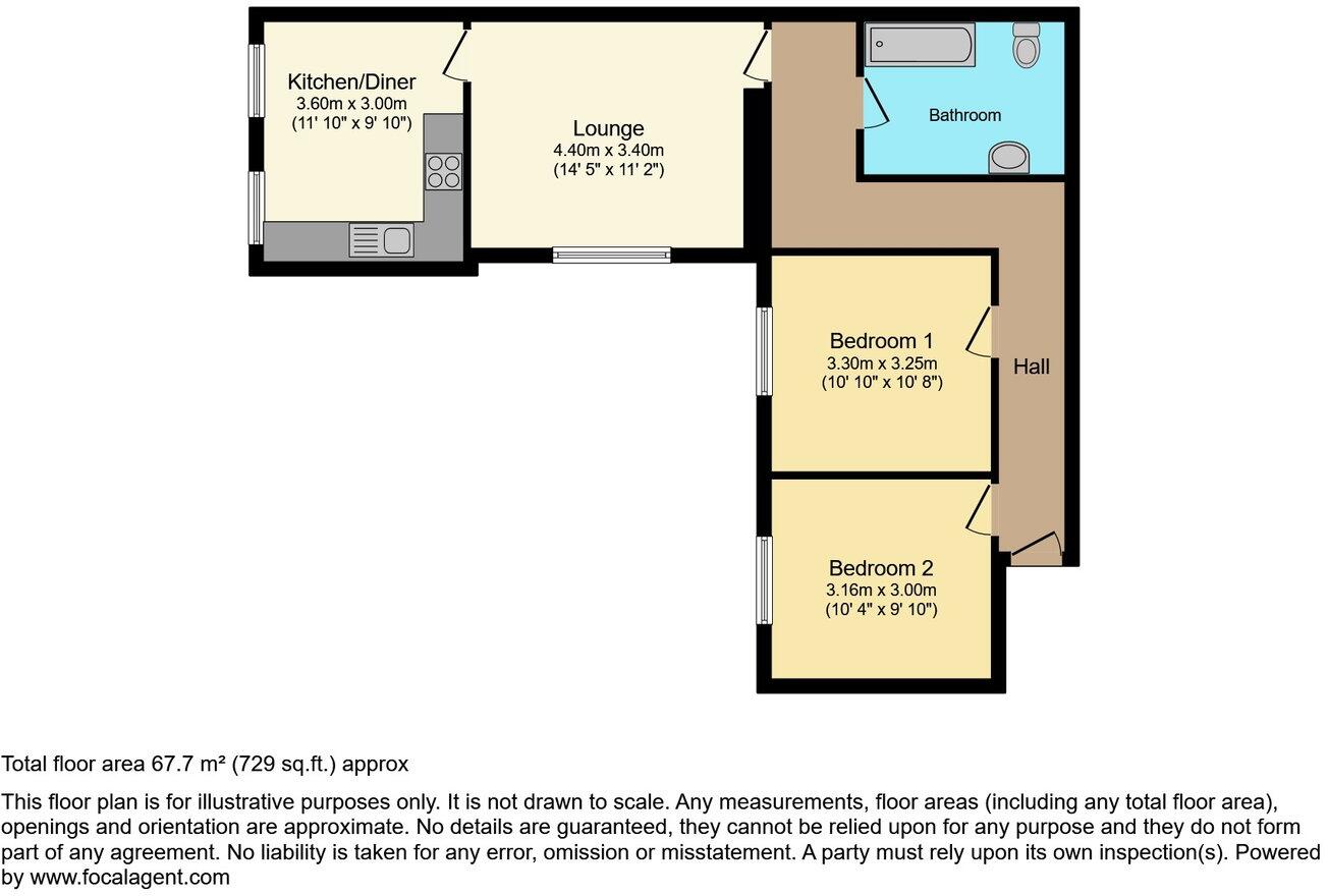
The property is a 2-bedroom property located in Central St Leonards, close to transport links and schools. It appears to be in generally good condition, though the plot size is relatively small. The list price of £170,000 requires further comparative analysis to determine its value for money due to incomplete data on nearby properties.
Therefore, we give this property 5 / 10. *Disclaimer: This is our option and does constitute a recommendation or financial advice. Do your own research. *
- Price
- 6
- Condition
- 7
- Location
- 7
- Land
- 3
- Bedrooms
- 2
- Bathrooms
- 0
- Sqft (est)
- 728.72
- Lot (est)
- 728.72
The heatmap indicates the level of crime in the area. The color of the heatmap indicates the crime severity and recency.
Metrics Year-on-Year
- Average area value
- 225,325.00 £Decreased by 9.99 %
- Est sale value
- 287,844.40 £Increased by 32.55 %
- Average area rental value
- 1,094.00 £/moIncreased by 7.25 %
- Est letting value
- 728.72 £/moUnchanged by 0.00 %
- Est rental Yield
- 5.83 %Increased by 19.22 %
- Crime Rate
- 26.00 %Unchanged by 0.00 %
Agent Activity
Express Estate Agency created the listing.
Nearby Schools
| Name | Type | Ofsted | Distance |
|---|---|---|---|
| Lansdowne Children'S Centre | Secure Units | 0.31 KM | |
| St Leonards Children'S Centre | Children's Centre | 0.43 KM | |
| St Mary Star Of The Sea Catholic Primary School | Voluntary Aided School | Good | 0.48 KM |
| St Paul'S Church Of England Academy | Academy Converter | Good | 0.95 KM |
| Christ Church Cofe Primary And Nursery Academy | Academy Converter | Good | 0.96 KM |
Images
Nearby Streets
| Name | Average Price | Average Sqft | Distance |
|---|---|---|---|
| Saint John's Road | £ 0 | 0 | 0.00 KM |
| The Cloisters | £ 0 | 0 | 0.00 KM |
| Station Approach | £ 430,000 | 0 | 0.00 KM |
| The Uplands | £ 400,000 | 0 | 0.00 KM |
| Archery Villas | £ 0 | 0 | 0.00 KM |
Nearby Transport
| Name | NLC | TLC | Distance |
|---|---|---|---|
| St Leonards Warrior Square | 5239 | SLQ | 0.27 KM |
| Hastings | 5219 | HGS | 1.65 KM |
| West St Leonards | 5242 | WLD | 2.47 KM |
| Ore | 5021 | ORE | 3.53 KM |
| Three Oaks | 5028 | TOK | 7.66 KM |
Nearby Listings
| Address | Price | Type | Score | Distance |
|---|---|---|---|---|
| Terrace Road, St Leonards-on-Sea, TN37 | £ 170,000 | BUY | 5 / 10 | 0.00 KM |
| St. Marys Court, Terrace Road, St. Leonards-On-Sea | £ 60,000 | BUY | 5 / 10 | 0.02 KM |
| Terrace Road, St Leonards-On-Sea | £ 120,000 | BUY | 4 / 10 | 0.03 KM |
| Terrace Road, St. Leonards-On-Sea | £ 220,000 | BUY | 6 / 10 | 0.03 KM |
| Terrace Road, St. Leonards-On-Sea | £ 140,000 | BUY | 6 / 10 | 0.04 KM |
Nearby Properties
| Address | Price | Distance |
|---|---|---|
| 21 Warrior Gardens | £ 52,000 | 0.09 KM |
| 18b Warrior Gardens | £ 53,000 | 0.09 KM |
| 19 Warrior Gardens | £ 320,000 | 0.09 KM |
| 12a Warrior Gardens | £ 155,000 | 0.09 KM |
| 20a Warrior Gardens | £ 145,000 | 0.09 KM |