WORDSLEY - Ensall Drive
By Ian Perks Estate Agents
£ 295,000
Reviews
3 out of 5 stars
Ian Perks Estate Agents says ..
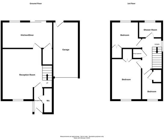
Well presented modern 3 bedrooms Link detached house conveniently located close to all amenities offered to the market with NO UPWARD CHAIN with garage and generous rear garden
Property Oracle says ..
The property is a link-detached house with three bedrooms and one bathroom. It is located in an area with good local schooling and access to transportation. The house is in reasonable condition, with a modern bathroom. However, some rooms may benefit from modernisation. The property has a garden. The list price seems reasonable given the size and location of the property.
Therefore, we give this property 7 / 10. *Disclaimer: This is our option and does constitute a recommendation or financial advice. Do your own research. *
- Price
- 7
- Condition
- 7
- Location
- 8
- Land
- 7
- Bedrooms
- 3
- Bathrooms
- 1
- Sqft (est)
- 1,248.00
The heatmap indicates the level of crime in the area. The color of the heatmap indicates the crime severity and recency.
Metrics Year-on-Year
- Average area value
- 168,333.00 £Decreased by 16.57 %
- Est sale value
- 264,576.00 £Decreased by 16.86 %
- Average area rental value
- 818.00 £/moDecreased by 10.89 %
- Est letting value
- 1,248.00 £/moUnchanged by 0.00 %
- Est rental Yield
- 5.83 %Increased by 6.78 %
- Crime Rate
- 4.00 %Unchanged by 0.00 %
Agent Activity
Ian Perks Estate Agents created the listing.
Nearby Schools
| Name | Type | Ofsted | Distance |
|---|---|---|---|
| Brook Primary School | Community School | Good | 0.69 KM |
| Glasshouse College | Special Post 16 Institution | Good | 0.94 KM |
| Ashwood Park Primary School | Community School | Good | 0.94 KM |
| Pens Meadow School | Community Special School | Good | 0.96 KM |
| Amblecote Primary School | Community School | Good | 1.14 KM |
Images
Nearby Streets
| Name | Average Price | Average Sqft | Distance |
|---|---|---|---|
| Brindley Close | £ 0 | 0 | 0.00 KM |
| Greenway Avenue | £ 0 | 0 | 0.00 KM |
| Meadowhill Drive | £ 242,500 | 0 | 0.00 KM |
| Dial Lane | £ 230,000 | 0 | 0.00 KM |
| Rectory Fields | £ 0 | 0 | 0.00 KM |
Nearby Transport
| Name | NLC | TLC | Distance |
|---|---|---|---|
| Stourbridge Town | 4643 | SBT | 2.76 KM |
| Stourbridge Junction | 4646 | SBJ | 4.01 KM |
| Lye (West Midlands) | 4640 | LYE | 4.94 KM |
| Hagley | 4577 | HAG | 5.91 KM |
| Cradley Heath | 4639 | CRA | 7.51 KM |
Nearby Listings
| Address | Price | Type | Score | Distance |
|---|---|---|---|---|
| WORDSLEY - Ensall Drive | £ 295,000 | BUY | 7 / 10 | 0.00 KM |
| Ensall Drive, Wordsley, Stourbridge, DY8 4XX | £ 315,000 | BUY | 6 / 10 | 0.01 KM |
| Marine Crescent, Stourbridge | £ 390,000 | BUY | 7 / 10 | 0.11 KM |
| Argyle Close, Stourbridge, DY8 4XT | £ 180,000 | BUY | 5 / 10 | 0.13 KM |
| Marine Crescent, Wordsley, Stourbridge, West Midlands, DY8 4XR | £ 225,000 | BUY | 6 / 10 | 0.13 KM |
Nearby Properties
| Address | Price | Distance |
|---|---|---|
| 16 Ensall Drive | £ 122,000 | 0.00 KM |
| 51 Ensall Drive | £ 182,000 | 0.00 KM |
| 41 Ensall Drive | £ 185,500 | 0.00 KM |
| 14 Ensall Drive | £ 129,950 | 0.00 KM |
| 29 Ensall Drive | £ 124,000 | 0.00 KM |