Derwent Road, London, SE20
By Stirling Ackroyd
£ 300,000
Reviews
3 out of 5 stars
Stirling Ackroyd says ..
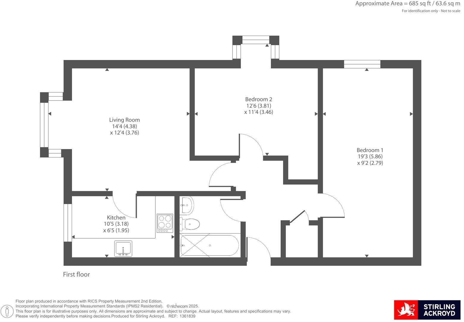
GUIDE PRICE £300,000 - £310,000 A beautifully presented first floor purpose-built flat offering 685 square feet of stylish and well-proportioned living space. This recently refurbished two double bedroom home is ready to move straight into and has been finished with a moder...
Property Oracle says ..
This is a two-bedroom apartment located on Derwent Road in Crystal Palace, London. The property is listed for £300,000 with Stirling Ackroyd. The apartment appears to be in good condition, with a modern kitchen and bathroom. The property is located in a convenient location, close to local amenities and transport links. The property is located 0.75 KM from Anerley Station. There are several schools located within 1km of the property, including James Dixon Primary School (0.67 KM) and Stewart Fleming Primary School (0.91 KM). The property is approximately 172.22 square feet, which seems incorrect given the number of rooms. The average price per square foot in the area is £668.
Therefore, we give this property 6 / 10. *Disclaimer: This is our option and does constitute a recommendation or financial advice. Do your own research. *
- Price
- 7
- Condition
- 8
- Location
- 7
- Land
- 3
- Bedrooms
- 2
- Bathrooms
- 1
- Sqft (est)
- 172.22
The heatmap indicates the level of crime in the area. The color of the heatmap indicates the crime severity and recency.
Metrics Year-on-Year
- Average area value
- 445,000.00 £Increased by 0.77 %
- Est sale value
- 115,042.96 £Increased by 14.58 %
- Average area rental value
- 1,900.00 £/moIncreased by 9.38 %
- Est letting value
- 344.44 £/moUnchanged by 0.00 %
- Est rental Yield
- 5.12 %Increased by 8.47 %
- Crime Rate
- 8.00 %Unchanged by 0.00 %
Agent Activity
Stirling Ackroyd created the listing.
Nearby Schools
| Name | Type | Ofsted | Distance |
|---|---|---|---|
| James Dixon Primary School | Academy Converter | Good | 0.67 KM |
| Stewart Fleming Primary School | Academy Converter | Outstanding | 0.91 KM |
| St Mark'S Church Of England Primary Academy | Academy Sponsor Led | Good | 0.91 KM |
| St Anthony'S Roman Catholic Primary School | Academy Converter | Good | 0.95 KM |
| Harris Academy South Norwood | Academy Sponsor Led | Outstanding | 1.08 KM |
Images
Nearby Streets
| Name | Average Price | Average Sqft | Distance |
|---|---|---|---|
| Wheathill House | £ 0 | 0 | 0.00 KM |
| Robinia Close | £ 0 | 0 | 0.00 KM |
| Trinity Mews | £ 0 | 0 | 0.00 KM |
| Goat House Bridge | £ 0 | 0 | 0.00 KM |
| Grace Mews | £ 0 | 0 | 0.00 KM |
Nearby Transport
| Name | NLC | TLC | Distance |
|---|---|---|---|
| Anerley | 5397 | ANZ | 0.75 KM |
| Birkbeck | 5401 | BIK | 1.23 KM |
| Norwood Junction | 5376 | NWD | 1.33 KM |
| Penge West | 5378 | PNW | 1.49 KM |
| Crystal Palace | 5356 | CYP | 1.55 KM |
Nearby Listings
| Address | Price | Type | Score | Distance |
|---|---|---|---|---|
| Derwent Road, London, SE20 | £ 300,000 | BUY | 6 / 10 | 0.00 KM |
| Tovil Close, London, SE20 | £ 450,000 | BUY | Unknown | 0.11 KM |
| Wheathill House, Croydon Road, Anerley, London, SE20 | £ 325,000 | BUY | 6 / 10 | 0.12 KM |
| Byron Close, Wheathill Road, Anerley, London, SE20 | £ 325,000 | BUY | 7 / 10 | 0.15 KM |
| Wheathill Road, London, SE20 | £ 300,000 | BUY | 6 / 10 | 0.15 KM |
Nearby Properties
| Address | Price | Distance |
|---|---|---|
| 177 Croydon Road | £ 255,000 | 0.10 KM |
| 77 Tovil Close | £ 285,000 | 0.11 KM |
| 63 Tovil Close | £ 150,000 | 0.11 KM |
| 95 Tovil Close | £ 175,000 | 0.11 KM |
| 55 Tovil Close | £ 283,000 | 0.11 KM |