Yopa says ..
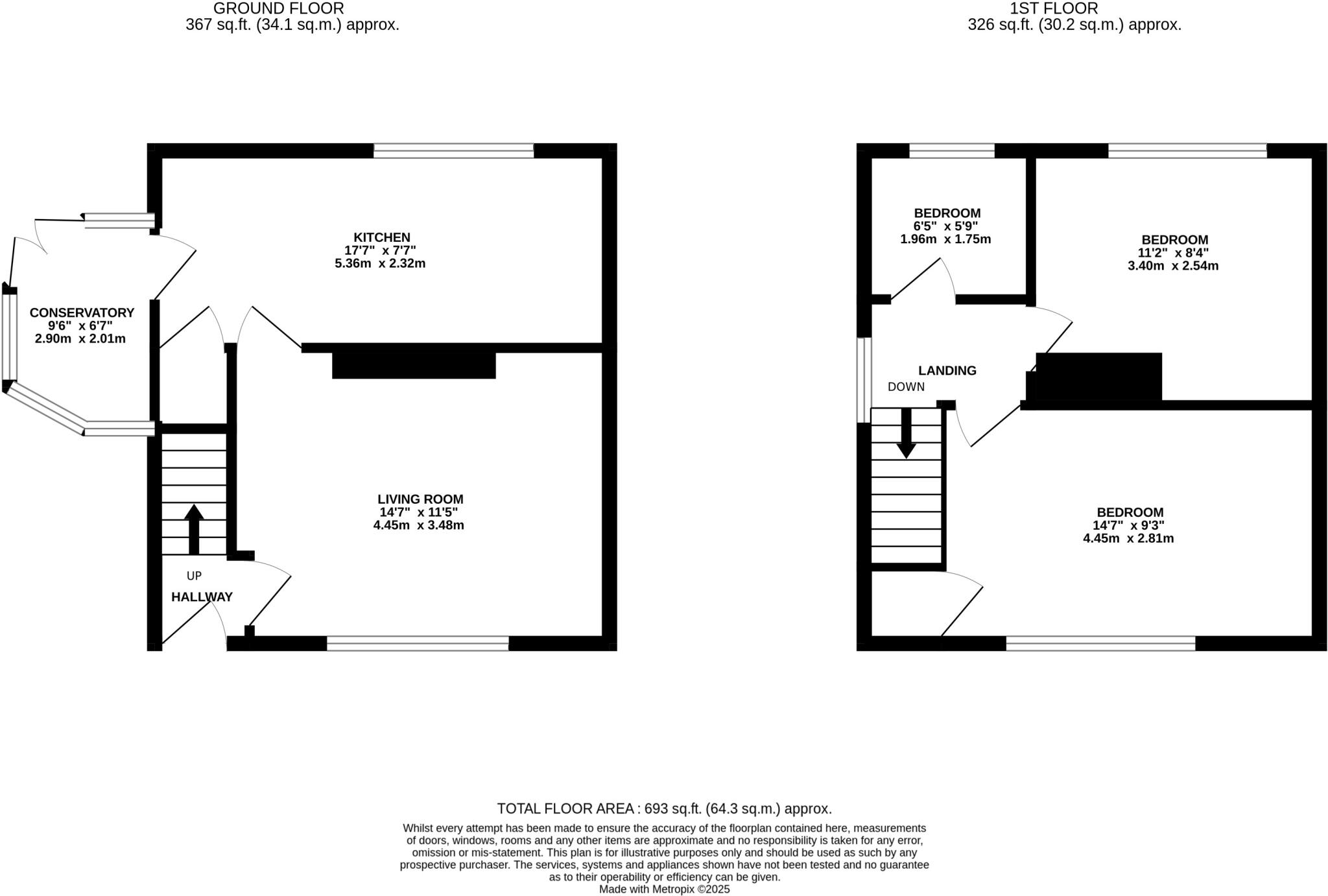
*** Offered for sale with no chain is this superb 2 bedroom semi detached home boasting large gardens to 3 sides, conservatory, spacious driveway and detached garage ***
Property Oracle says ..
Therefore, we give this property 7 / 10. *Disclaimer: This is our option and does constitute a recommendation or financial advice. Do your own research. *
- Price
- 8
- Condition
- 7
- Location
- 6
- Land
- 7
- Bedrooms
- 2
- Bathrooms
- 1
- Sqft (est)
- 637.72
The heatmap indicates the level of crime in the area. The color of the heatmap indicates the crime severity and recency.
Metrics Year-on-Year
- Average area value
- 488,600.00 £Decreased by 6.01 %
- Est sale value
- 401,125.88 £Increased by 9.01 %
- Average area rental value
- 1,814.00 £/moIncreased by 6.02 %
- Est letting value
- 1,275.44 £/moIncreased by 100.00 %
- Est rental Yield
- 4.46 %Increased by 12.91 %
- Crime Rate
- 8.00 %Unchanged by 0.00 %
from 519,839.00 £
from 367,964.44 £
from 1,711.00 £/mo
from 637.72 £/mo
from 3.95 %
from 8.00 %
Agent Activity
Yopa created the listing.
Nearby Schools
| Name | Type | Ofsted | Distance |
|---|---|---|---|
| Kippax Greenfield Primary School | Academy Converter | Requires improvement | 0.73 KM |
| Brigshaw High School | Academy Converter | Good | 1.18 KM |
| Kippax Ash Tree Primary School | Academy Converter | Requires improvement | 1.28 KM |
| Kippax Children'S Centre | Children's Centre | 1.39 KM | |
| Kippax North Primary School | Academy Converter | Good | 1.47 KM |
Images
Nearby Streets
| Name | Average Price | Average Sqft | Distance |
|---|---|---|---|
| The Green | £ 0 | 0 | 0.00 KM |
| The Square | £ 0 | 0 | 0.00 KM |
| The Rise | £ 185,000 | 0 | 0.00 KM |
| Windsor Close | £ 0 | 0 | 0.00 KM |
| Westfield Gardens | £ 0 | 0 | 0.00 KM |
Nearby Transport
| Name | NLC | TLC | Distance |
|---|---|---|---|
| East Garforth | 8472 | EGF | 3.00 KM |
| Garforth | 8474 | GRF | 3.48 KM |
| Castleford | 8359 | CFD | 5.26 KM |
| Micklefield | 8477 | MIK | 6.11 KM |
| Woodlesford | 8578 | WDS | 7.36 KM |
Nearby Listings
| Address | Price | Type | Score | Distance |
|---|---|---|---|---|
| The Drive, Leeds, LS25 | £ 180,000 | BUY | 7 / 10 | 0.00 KM |
| The Drive, Kippax, Leeds | £ 205,000 | BUY | 6 / 10 | 0.01 KM |
| The Crest, Kippax, Leeds | £ 200,000 | BUY | 7 / 10 | 0.08 KM |
| The Green, Kippax. Leeds | £ 165,000 | BUY | 6 / 10 | 0.08 KM |
| The Drive, Kippax, Leeds | £ 199,950 | BUY | Unknown | 0.12 KM |
Nearby Properties
| Address | Price | Distance |
|---|---|---|
| 56 The Drive | £ 115,000 | 0.01 KM |
| 16 The Drive | £ 95,000 | 0.01 KM |
| 23 The Drive | £ 115,000 | 0.01 KM |
| 30 The Drive | £ 110,000 | 0.01 KM |
| 19 The Drive | £ 119,000 | 0.01 KM |