Staple Lodge Road, Birmingham, West Midlands, B31
OA

Staple Lodge Road, Birmingham, West Midlands, B31

By Oakmans Estate Agents

£ 260,000

Reviews

3 out of 5 stars

Oakmans Estate Agents says ..

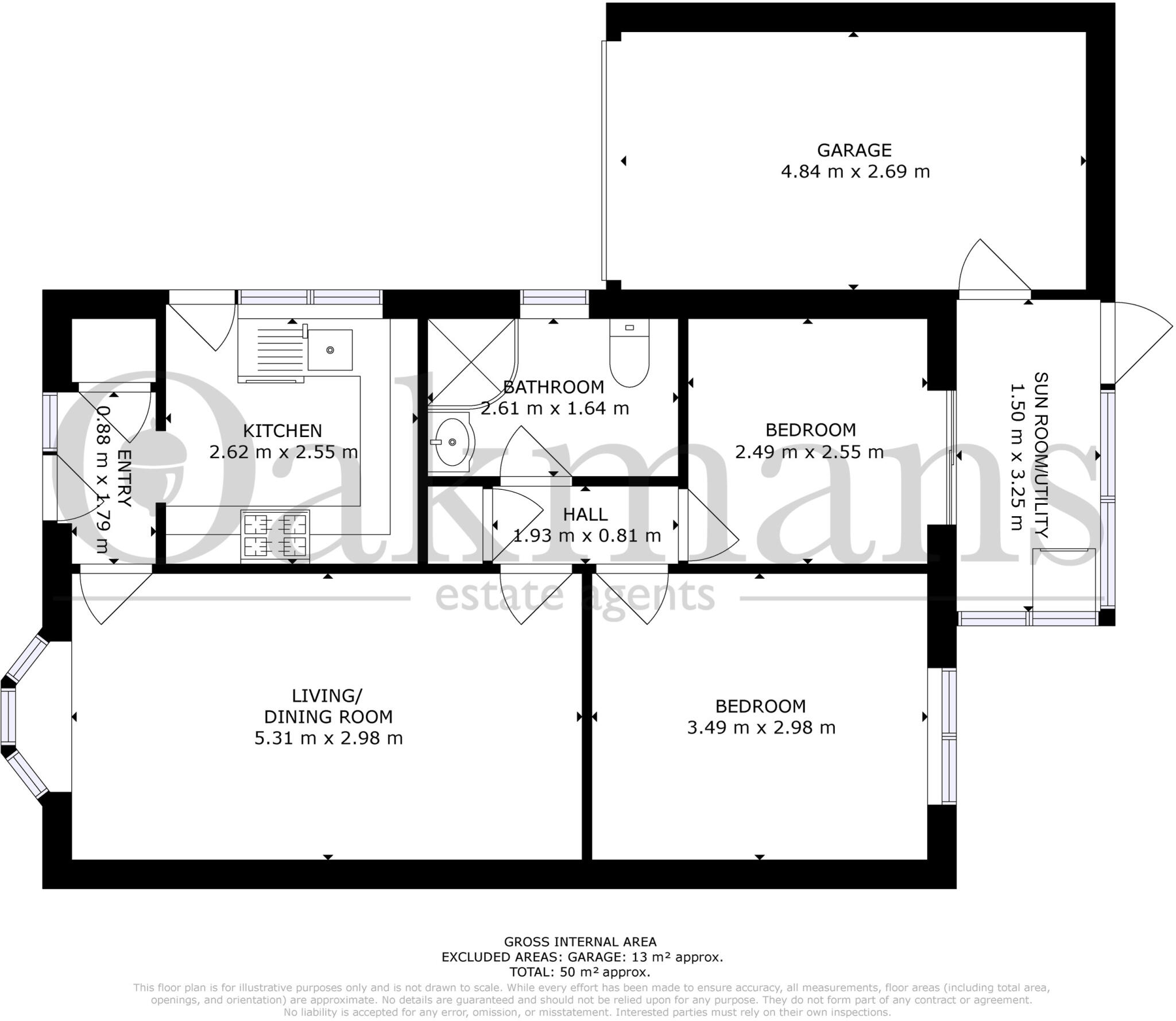
** NO UPWARD CHAIN ** ** GREAT LOCATION ** ** EXCELLENT CONDITION ** ** BEAUTIFUL GARDENS ** ** DRIVE & GARAGE ** ** CALL OAKMANS TODAY ** Oakmans Estate Agents are proud to present this charming two bedroom semi-detached bungalow, located on the sought-after, tree-lined Staple Lod...

Property Oracle says ..

This property is a two-bedroom bungalow located on Staple Lodge Road in Birmingham. The location benefits from being near local schools and transportation, including the Northfield train station. The interior of the property appears to be in good condition, with a modern kitchen and bathroom. The living room and bedrooms seem well-maintained, although the wallpaper might be a matter of personal taste. The property includes both a front and back garden. The back garden appears to be a decent size. Considering the average price per square foot in the area is £372.00, and this property is listed at approximately £368 per square foot, the price seems reasonable, especially given the condition and location.

Therefore, we give this property 7 / 10. *Disclaimer: This is our option and does constitute a recommendation or financial advice. Do your own research. *

Price
8
Condition
8
Location
7
Land
7
Bedrooms
2
Bathrooms
1
Sqft (est)
706.53

The heatmap indicates the level of crime in the area. The color of the heatmap indicates the crime severity and recency.

Metrics Year-on-Year

Average area value
221,400.00 £
Decreased by 7.85 %
from 240,248.00 £
Est sale value
262,829.16 £
Increased by 67.57 %
from 156,849.66 £
Average area rental value
1,122.00 £/mo
Increased by 12.88 %
from 994.00 £/mo
Est letting value
706.53 £/mo
from 0.00 £/mo
Est rental Yield
6.08 %
Increased by 22.58 %
from 4.96 %
Crime Rate
2.00 %
Unchanged by 0.00 %
from 2.00 %

Agent Activity

  • Oakmans Estate Agents created the listing.

Nearby Schools

NameTypeOfstedDistance
West Heath Nursery SchoolLocal Authority Nursery SchoolGood0.46 KM
West Heath Primary SchoolCommunity SchoolGood0.74 KM
King Edward Vi Northfield School For GirlsAcademy Converter1.00 KM
Merrishaw Albert Bradbeer Children'S CentreChildren's Centre Linked Site1.09 KM
Wychall Children'S CentreChildren's Centre1.10 KM

Images

Picture No. 25 Picture No. 26 Picture No. 28 Picture No. 01 Picture No. 02 Picture No. 03 Picture No. 04 Picture No. 05 Picture No. 06 Picture No. 07 Picture No. 08 Picture No. 09 Picture No. 11 Picture No. 12 Picture No. 14 Picture No. 15 Picture No. 16 Picture No. 18 Picture No. 19 Picture No. 20 Picture No. 21 Picture No. 22 Picture No. 23 Picture No. 24 Picture No. 30 Picture No. 31 Picture No. 33 Picture No. 34 Picture No. 35 Picture No. 37 Picture No. 38 Picture No. 29 Picture No. 40

Nearby Streets

NameAverage PriceAverage SqftDistance
Middlemore Road £ 000.00 KM
Kelvin Road £ 000.00 KM
Elms Close £ 190,00000.00 KM
Fairfax Drive £ 135,00000.00 KM
Copse Close £ 273,00000.00 KM

Nearby Transport

NameNLCTLCDistance
Northfield1111NFD0.79 KM
Longbridge1110LOB2.54 KM
Kings Norton1109KNN3.23 KM
Bournville1112BRV4.46 KM
Selly Oak1105SLY4.94 KM

Nearby Listings

AddressPriceTypeScoreDistance
Staple Lodge Road, Birmingham, West Midlands, B31 £ 260,000BUY7 / 100.00 KM
Over Brunton Close, West Heath, Birmingham, West Midlands, B31 £ 140,000BUY6 / 100.09 KM
Farfield Close, Birmingham, B31 £ 290,000BUY6 / 100.16 KM
Farfield Close, Birmingham, B31 £ 300,000BUY7 / 100.16 KM
Rea Valley Drive, Birmingham, B31 £ 240,000BUY6 / 100.17 KM

Nearby Properties

AddressPriceDistance
85 Houldey Road £ 75,0000.08 KM
91 Houldey Road £ 155,0000.08 KM
89 Houldey Road £ 120,0000.08 KM
14 Rea Valley Drive £ 229,0000.11 KM
34 Rea Valley Drive £ 114,0000.11 KM