Common Lane, Beer, Seaton, Devon
HU

Common Lane, Beer, Seaton, Devon

By Humberts

£ 595,000

Reviews

3 out of 5 stars

Humberts says ..

An exceptionally rare opportunity to purchase one of Beer’s iconic fisherman's cottages with breath-taking views over the beach to the sea and benefitting from an outhouse and garage

Property Oracle says ..

This two-bedroom fisherman’s cottage in Beer, Devon, offers a unique opportunity to own a piece of coastal history. Its prime location provides breathtaking views of the beach and sea, a highly desirable feature in the UK property market. The cottage’s character is evident in its exterior architecture, and the property benefits from an outhouse and a garage. However, the interior requires some modernisation and updating. The kitchen and bathroom are particularly dated in style and would likely benefit from refurbishment. The property is well situated, with a primary school within easy reach, although the data does not provide a full picture of the transportation links. The price is competitive within the context of the local market, specifically Common Lane and its close surroundings. While the aesthetic preferences and willingness to undertake renovations will significantly influence buyer’s interest, it is safe to say that this property is worth considering for those who are searching for a unique coastal property in a sought-after location that does not require a significant level of modernizing.

Therefore, we give this property 6 / 10. *Disclaimer: This is our option and does constitute a recommendation or financial advice. Do your own research. *

Price
7
Condition
6
Location
9
Land
3
Bedrooms
2
Bathrooms
1
Sqft (est)
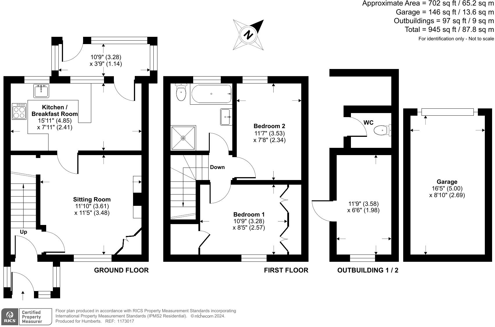
945.00

The heatmap indicates the level of crime in the area. The color of the heatmap indicates the crime severity and recency.

Metrics Year-on-Year

Average area value
459,860.00 £
Decreased by 19.17 %
from 568,900.00 £
Est sale value
404,460.00 £
Increased by 3.88 %
from 389,340.00 £
Average area rental value
1,517.00 £/mo
Increased by 26.42 %
from 1,200.00 £/mo
Est letting value
945.00 £/mo
from 0.00 £/mo
Est rental Yield
3.96 %
Increased by 56.52 %
from 2.53 %
Crime Rate
36.00 %
Unchanged by 0.00 %
from 36.00 %

Agent Activity

  • Humberts created the listing.

Nearby Schools

NameTypeOfstedDistance
Beer Church Of England Primary SchoolAcademy ConverterRequires improvement0.81 KM
Axe Valley Children'S CentreChildren's Centre2.84 KM
Seaton Primary SchoolCommunity SchoolOutstanding2.84 KM
Colyton Grammar SchoolAcademy Converter4.12 KM
Branscombe Church Of England Primary SchoolVoluntary Controlled SchoolGood5.21 KM

Images

Picture No. 03 Picture No. 09 Picture No. 05 Picture No. 02 Picture No. 07 Picture No. 11 Picture No. 14 Picture No. 01 Picture No. 06 Picture No. 10 Picture No. 08 Picture No. 12

Nearby Streets

NameAverage PriceAverage SqftDistance
Common Lane £ 595,00000.00 KM
Park Road £ 000.00 KM
Couchill Cottages £ 000.00 KM
Couchill Farm Lane £ 000.00 KM
Quarry Lane £ 000.00 KM

Nearby Listings

AddressPriceTypeScoreDistance
Common Lane, Beer, Seaton, Devon £ 595,000BUY6 / 100.00 KM
Common Lane, Beer, Seaton £ 1,100,000BUY7 / 100.12 KM
The Meadows, Beer £ 595,000BUY7 / 100.14 KM
Fore Street, Beer, Seaton £ 445,000BUY7 / 100.15 KM
Beer £ 650,000BUYUnknown0.17 KM

Nearby Properties

AddressPriceDistance
11b The Meadows £ 124,9500.11 KM
3 The Meadows £ 229,5000.11 KM
12 The Meadows £ 300,0000.11 KM
Newlands £ 280,0000.15 KM
Bank House £ 475,0000.16 KM