OA
Shelson Parade, Ashford Road, Feltham, TW13
By Oasis Estate Agents
£ 1,650
Oasis Estate Agents says ..
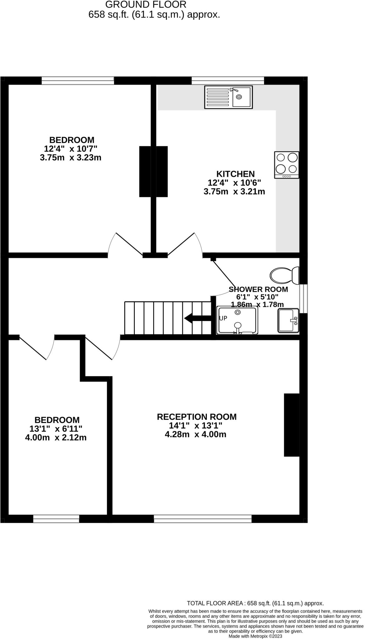
Having been refurbished in 2023 to a high standard throughout, this two bedroom first floor maisonette is located in a convenient position in Lower Feltham. The property is situated above commercial premises and comprises; a large fitted kitchen with integrated appliances, a modern shower room, t...
- Bedrooms
- 2
- Bathrooms
- 1
The heatmap indicates the level of crime in the area. The color of the heatmap indicates the crime severity and recency.
Metrics Year-on-Year
- Average area value
- 307,492.00 £Decreased by 14.02 %
- Average area rental value
- 1,833.00 £/moIncreased by 10.36 %
- Est rental Yield
- 7.15 %Increased by 28.37 %
- Crime Rate
- 12.00 %Unchanged by 0.00 %
from 357,621.00 £
from 1,661.00 £/mo
from 5.57 %
from 12.00 %
Agent Activity
Oasis Estate Agents created the listing.
Nearby Schools
| Name | Type | Ofsted | Distance |
|---|---|---|---|
| Oak Hill Academy | Academy Converter | Good | 0.18 KM |
| Feltham Hill Infant And Nursery School | Community School | Outstanding | 0.26 KM |
| Edward Pauling Primary School | Community School | Outstanding | 0.76 KM |
| Southville Primary School | Community School | 1.36 KM | |
| Kenyngton Manor Primary School | Academy Sponsor Led | Good | 1.48 KM |
Images
Nearby Streets
| Name | Average Price | Average Sqft | Distance |
|---|---|---|---|
| Avenue Road | £ 129,500 | 0 | 0.00 KM |
| Lancing Road | £ 0 | 0 | 0.00 KM |
| Grange Mews | £ 465,000 | 0 | 0.00 KM |
| Emerdale Close | £ 375,000 | 0 | 0.00 KM |
| Vineyard Road | £ 355,000 | 0 | 0.00 KM |
Nearby Transport
| Name | NLC | TLC | Distance |
|---|---|---|---|
| Feltham | 5559 | FEL | 2.03 KM |
| Sunbury | 5608 | SUU | 2.24 KM |
| Kempton Park Racecourse | 5678 | KMP | 2.45 KM |
| Upper Halliford | 5613 | UPH | 2.77 KM |
| Heathrow Terminal 4 | 7091 | HAF | 3.28 KM |
Nearby Listings
| Address | Price | Type | Score | Distance |
|---|---|---|---|---|
| Shelson Parade, Ashford Road, Feltham, TW13 | £ 1,650 | RENT | Unknown | 0.00 KM |
| Viridian Court, Ashford Road, Feltham, TW13 | £ 1,650 | RENT | Unknown | 0.03 KM |
| Topaz Court, Elvedon Road, Feltham | £ 1,550 | RENT | Unknown | 0.06 KM |
| Topaz Court, Elvedon Road, Feltham | £ 1,650 | RENT | Unknown | 0.06 KM |
| Topaz Court, Elvedon Road, Feltham, TW13 | £ 1,350 | RENT | Unknown | 0.07 KM |
Nearby Properties
| Address | Price | Distance |
|---|---|---|
| 23 Ashford Road | £ 109,950 | 0.04 KM |
| 15b Ashford Road | £ 240,000 | 0.04 KM |
| 21 Ashford Road | £ 455,000 | 0.05 KM |
| 1 Ashford Road | £ 580,000 | 0.05 KM |
| 17 Ashford Road | £ 435,000 | 0.05 KM |