Stanger Road, London
By Homecastle Estate Agents
£ 350,000
Reviews
3 out of 5 stars
Homecastle Estate Agents says ..
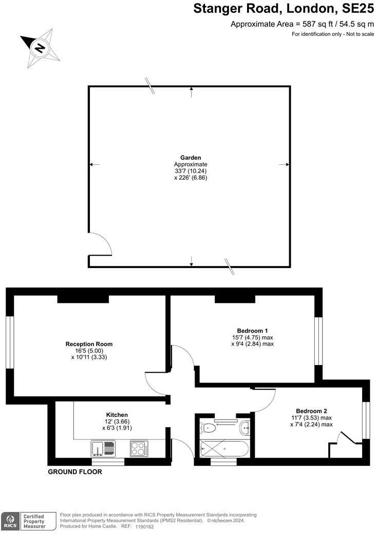
This two-bedroom ground-floor, purpose-built maisonette features its own private garden and offers exceptional convenience, with Norwood Junction BR/Overground Station nearby, providing direct access to London. The property has a private entrance that opens into a bright and airy living room, two...
Property Oracle says ..
This two-bedroom maisonette in Croydon is listed at £350,000. The property benefits from its own private garden, a significant advantage in a London location. Its proximity to Norwood Junction station, offering direct links to London, enhances its appeal. However, the provided square footage (587 sq ft) is considerably smaller than the area average of 1,065 sq ft, and the average price per sq ft in the area is £400, while this property is listed at a higher price per sq ft. The condition of the property appears to be generally good, though some areas may benefit from modernisation. The presence of a private garden is a positive factor, but the overall size of the property and its price relative to the local market should be carefully considered. The property is located near several schools, including South Norwood Primary and Harris Academy South Norwood, making it potentially attractive to families.
Therefore, we give this property 7 / 10. *Disclaimer: This is our option and does constitute a recommendation or financial advice. Do your own research. *
- Price
- 6
- Condition
- 7
- Location
- 8
- Land
- 8
- Bedrooms
- 2
- Bathrooms
- 1
- Sqft (est)
- 587.00
The heatmap indicates the level of crime in the area. The color of the heatmap indicates the crime severity and recency.
Metrics Year-on-Year
- Average area value
- 489,165.00 £Increased by 16.57 %
- Est sale value
- 365,701.00 £Increased by 28.45 %
- Average area rental value
- 1,679.00 £/moDecreased by 8.30 %
- Est letting value
- 1,174.00 £/moUnchanged by 0.00 %
- Est rental Yield
- 4.12 %Decreased by 21.37 %
- Crime Rate
- 10.00 %Unchanged by 0.00 %
Agent Activity
Homecastle Estate Agents created the listing.
Nearby Schools
| Name | Type | Ofsted | Distance |
|---|---|---|---|
| South Norwood Primary | Academy Sponsor Led | 0.17 KM | |
| Crosfield Nursery School And Children'S Centre | Children's Centre | 0.29 KM | |
| Crosfield Nursery School | Local Authority Nursery School | Good | 0.29 KM |
| St Mark'S Church Of England Primary Academy | Academy Sponsor Led | Good | 0.32 KM |
| Harris Academy South Norwood | Academy Sponsor Led | Outstanding | 0.61 KM |
Images
Nearby Streets
| Name | Average Price | Average Sqft | Distance |
|---|---|---|---|
| Crowther Road | £ 0 | 0 | 0.00 KM |
| Foot path 660 | £ 0 | 0 | 0.00 KM |
| St Mark's Road | £ 220,000 | 0 | 0.00 KM |
| Merton Road | £ 365,000 | 0 | 0.00 KM |
| Cargreen Place | £ 0 | 0 | 0.00 KM |
Nearby Transport
| Name | NLC | TLC | Distance |
|---|---|---|---|
| Norwood Junction | 5376 | NWD | 0.35 KM |
| Selhurst | 5434 | SRS | 1.84 KM |
| Anerley | 5397 | ANZ | 1.92 KM |
| Birkbeck | 5401 | BIK | 2.02 KM |
| Crystal Palace | 5356 | CYP | 2.45 KM |
Nearby Listings
| Address | Price | Type | Score | Distance |
|---|---|---|---|---|
| Stanger Road, London | £ 350,000 | BUY | 7 / 10 | 0.00 KM |
| Stanger Road, London, SE25 | £ 325,000 | BUY | Unknown | 0.02 KM |
| Crowther Road, South Norwood, London, SE25 | £ 325,000 | BUY | 7 / 10 | 0.05 KM |
| Stanger Road, South Norwood, London, SE25 | £ 425,000 | BUY | 7 / 10 | 0.08 KM |
| Crowther Road, London, SE25 | £ 600,000 | BUY | Unknown | 0.08 KM |
Nearby Properties
| Address | Price | Distance |
|---|---|---|
| 15 Stanger Road | £ 151,500 | 0.02 KM |
| 14c Stanger Road | £ 128,000 | 0.02 KM |
| 16a Stanger Road | £ 152,000 | 0.02 KM |
| 18a Stanger Road | £ 310,000 | 0.02 KM |
| 18 Stanger Road | £ 230,000 | 0.02 KM |