Savills says ..
A striking detached family home with the opportunity to develop.
Property Oracle says ..
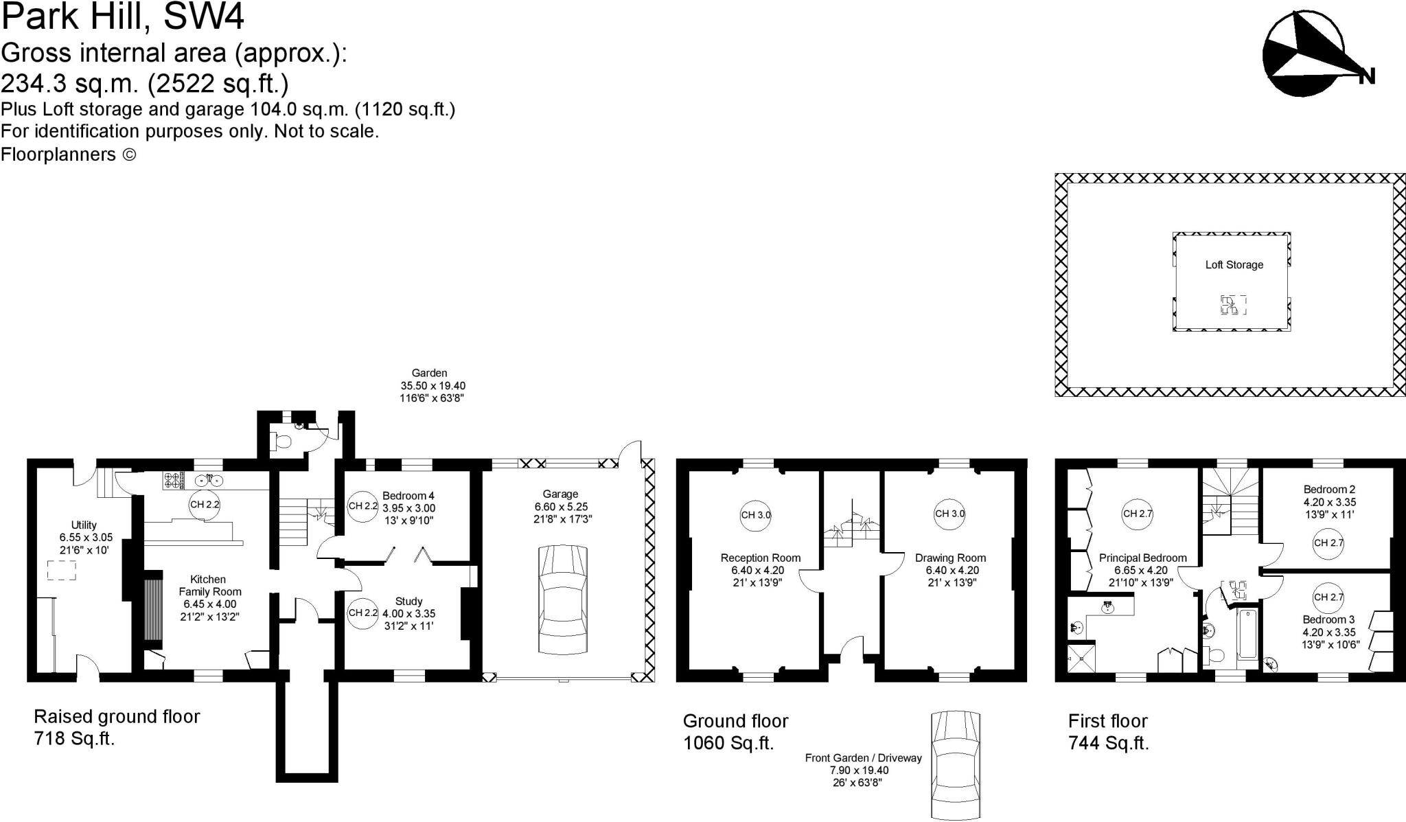
This property is a four-bedroom, two-bathroom detached house located on Park Hill in Clapham Common, Lambeth, London. The list price is £3,000,000, and the property has 2,512.30 sqft of living space and a plot size of 2,521.98 sqft.
The property appears to be a period property, retaining many of its original features. The images show high ceilings, large windows, fireplaces, and ornate architectural details. The kitchen and bathrooms appear to be in need of some modernisation. The garden is a significant feature, offering a good amount of outdoor space.
Clapham Common is a highly desirable area of South London, known for its excellent schools, green spaces (Clapham Common itself), and transport links. The proximity to Clapham High Street provides easy access to shops, restaurants, and amenities. Several highly-rated schools are within walking distance, making this property particularly attractive to families. The property’s location is a major strength.
Considering the property’s size, location, and the presence of a garden, the list price of £3,000,000 appears high relative to the average price per sqft in the area (£910). However, the average price and sqft data provided do not account for the type of property (detached houses are typically more expensive than flats), the size of the plot, or the desirability of the specific location on Park Hill. The nearby comparable properties provide little insight due to missing sqft data. Therefore, a definitive conclusion on price value cannot be reached without further information.
Therefore, we give this property 7 / 10. *Disclaimer: This is our option and does constitute a recommendation or financial advice. Do your own research. *
- Price
- 6
- Condition
- 7
- Location
- 9
- Land
- 8
- Bedrooms
- 4
- Bathrooms
- 2
- Sqft (est)
- 2,512.30
- Lot (est)
- 2,521.98
The heatmap indicates the level of crime in the area. The color of the heatmap indicates the crime severity and recency.
Metrics Year-on-Year
- Average area value
- 868,170.00 £Decreased by 7.78 %
- Est sale value
- 2,318,852.90 £Increased by 9.23 %
- Average area rental value
- 3,274.00 £/moIncreased by 7.73 %
- Est letting value
- 7,536.90 £/moIncreased by 50.00 %
- Est rental Yield
- 4.53 %Increased by 17.05 %
- Crime Rate
- 2.00 %Unchanged by 0.00 %
Agent Activity
Savills created the listing.
Nearby Schools
| Name | Type | Ofsted | Distance |
|---|---|---|---|
| Kings Avenue School | Community School | Requires improvement | 0.13 KM |
| Iqra Primary School | Voluntary Aided School | Outstanding | 0.21 KM |
| Harris Clapham Sixth Form | Free Schools 16 To 19 | 0.24 KM | |
| Harris Academy Clapham | Free Schools | 0.43 KM | |
| Glenbrook Primary School | Community School | Good | 0.43 KM |
Images
Nearby Streets
| Name | Average Price | Average Sqft | Distance |
|---|---|---|---|
| Lyham Road | £ 0 | 0 | 0.00 KM |
| Maple Close | £ 0 | 0 | 0.00 KM |
| Bowlands Road | £ 0 | 0 | 0.00 KM |
| King's Avenue | £ 0 | 0 | 0.00 KM |
| Ellerslie Square | £ 0 | 0 | 0.00 KM |
Nearby Transport
| Name | NLC | TLC | Distance |
|---|---|---|---|
| Clapham High Street | 5301 | CLP | 1.00 KM |
| Wandsworth Road | 5372 | WWR | 1.73 KM |
| Brixton | 5081 | BRX | 2.00 KM |
| Streatham Hill | 5435 | SRH | 2.10 KM |
| Queenstown Road (Battersea) | 5596 | QRB | 2.68 KM |
Nearby Listings
| Address | Price | Type | Score | Distance |
|---|---|---|---|---|
| Park Hill, London, SW4 | £ 3,000,000 | BUY | 7 / 10 | 0.00 KM |
| Park Hill, London, SW4 | £ 1,000,000 | BUY | 7 / 10 | 0.00 KM |
| Park Hill, Clapham, London, SW4 | £ 550,000 | BUY | Unknown | 0.00 KM |
| Park Hill, London, SW4 | £ 700,000 | BUY | Unknown | 0.00 KM |
| Park Hill, LONDON, SW4 | £ 3,500,000 | BUY | 9 / 10 | 0.00 KM |
Nearby Properties
| Address | Price | Distance |
|---|---|---|
| 113 Park Hill | £ 94,000 | 0.01 KM |
| 85a Park Hill | £ 670,000 | 0.01 KM |
| 121a Park Hill | £ 810,000 | 0.01 KM |
| 97c Park Hill | £ 295,000 | 0.01 KM |
| 81 Park Hill | £ 285,000 | 0.01 KM |