Barncroft, Callow Hill, Rock, Kidderminster
By Halls Estate Agents
£ 550,000
Reviews
3 out of 5 stars
Halls Estate Agents says ..
Offered with no onward chain, this charming period cottage presents a rare opportunity to acquire a beautifully maintained and characterful home. Boasting generously proportioned accommodation throughout. A viewing is highly recommended to fully appreciate the space and unique appeal this delight...
Property Oracle says ..
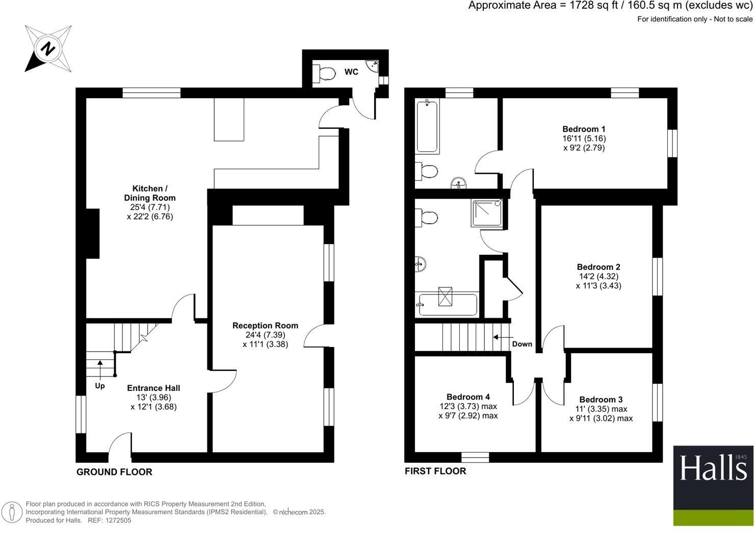
Barncroft is a charming property located in Callow Hill, Rock, Kidderminster. The property is a detached house with four bedrooms and two bathrooms, and it is listed at £550,000. The average price for properties in the area is £350,037, and the average price per square foot is £303.00. Barncroft is larger than average at 1,727.61 sqft. The property appears to be in good condition, and it has a garden. There are a few nearby schools, including Far Forest Lea Memorial Cofe Primary School, St Anne’s Cofe Vc Primary School, Abberley Parochial Vc Primary School, Kinlet Cofe Primary School, and Abberley Hall. The closest school is Far Forest Lea Memorial Cofe Primary School, which is 2.06 km away. The property is a traditional property with exposed beams and a fireplace. It appears well maintained and has character features. Given the size, condition, and location, the price seems reasonable.
Therefore, we give this property 7 / 10. *Disclaimer: This is our option and does constitute a recommendation or financial advice. Do your own research. *
- Price
- 7
- Condition
- 8
- Location
- 7
- Land
- 7
- Bedrooms
- 4
- Bathrooms
- 2
- Sqft (est)
- 1,727.61
The heatmap indicates the level of crime in the area. The color of the heatmap indicates the crime severity and recency.
Metrics Year-on-Year
- Average area value
- 477,459.00 £Increased by 4.94 %
- Est sale value
- 758,420.79 £Decreased by 5.18 %
- Average area rental value
- 939.00 £/moIncreased by 30.96 %
- Est letting value
- 0.00 £/mo
- Est rental Yield
- 2.36 %Increased by 24.87 %
- Crime Rate
- 0.00 %
Agent Activity
Halls Estate Agents created the listing.
Nearby Schools
| Name | Type | Ofsted | Distance |
|---|---|---|---|
| Far Forest Lea Memorial Cofe Primary School | Voluntary Controlled School | Requires improvement | 2.06 KM |
| St Anne'S Cofe Vc Primary School | Voluntary Controlled School | Good | 5.66 KM |
| Abberley Parochial Vc Primary School | Voluntary Controlled School | Good | 6.08 KM |
| Kinlet Cofe Primary School | Voluntary Controlled School | Good | 7.37 KM |
| Abberley Hall | Other Independent School | 7.41 KM |
Images
Nearby Listings
| Address | Price | Type | Score | Distance |
|---|---|---|---|---|
| Barncroft, Callow Hill, Rock, Kidderminster | £ 550,000 | BUY | 7 / 10 | 0.00 KM |
| Callow Hill, Rock, Kidderminster, Worcestershire | £ 675,000 | BUY | 7 / 10 | 0.14 KM |
| Callow Hill, Rock, Wyre Forest | £ 850,000 | BUY | 7 / 10 | 0.24 KM |
| Bliss Gate Road, Rock, DY14 9XP | £ 475,000 | BUY | Unknown | 0.25 KM |
| Southacre, Callow Hill, Rock, Kidderminster, DY14 9XB | £ 700,000 | BUY | Unknown | 0.30 KM |
Nearby Properties
| Address | Price | Distance |
|---|---|---|
| Cherry Cottage | £ 477,500 | 0.26 KM |
| The Croft | £ 400,000 | 0.26 KM |
| Summerdyne | £ 575,000 | 0.32 KM |
| Wayside Court | £ 685,000 | 0.59 KM |
| Bliss Gate Court | £ 530,000 | 0.68 KM |