TH
Osborne Close, Basingstoke, RG21
By The Property Explorer
£ 300,000
The Property Explorer says ..
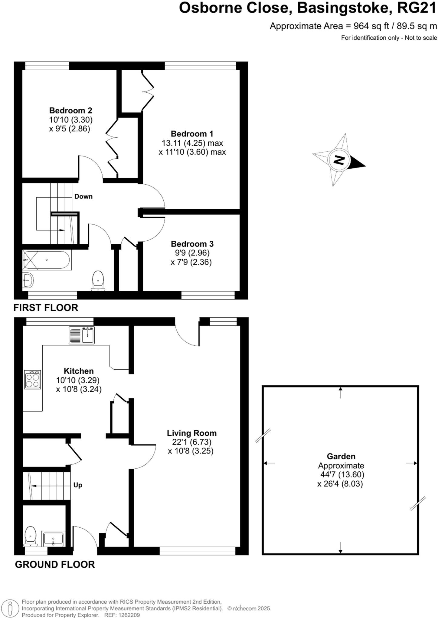
WELL-PRESENTED THREE-BEDROOM END-OF-TERRACE HOME. This spacious three-bedroom end-of-terrace home offers a comfortable and practical living space. The property features a large lounge/diner, a good-sized kitchen, and a spacious bathroom, making it ideal for families or first-time buyers.
- Bedrooms
- 3
- Bathrooms
- 1
The heatmap indicates the level of crime in the area. The color of the heatmap indicates the crime severity and recency.
Metrics Year-on-Year
- Average area value
- 306,071.00 £Decreased by 10.61 %
- Average area rental value
- 1,246.00 £/moDecreased by 2.58 %
- Est rental Yield
- 4.89 %Increased by 9.15 %
- Crime Rate
- 8.00 %Unchanged by 0.00 %
from 342,415.00 £
from 1,279.00 £/mo
from 4.48 %
from 8.00 %
Agent Activity
The Property Explorer created the listing.
Nearby Schools
| Name | Type | Ofsted | Distance |
|---|---|---|---|
| Oakridge Infant School | Community School | Good | 0.23 KM |
| Oakridge Junior School | Community School | Good | 0.36 KM |
| Merton Junior School | Community School | Good | 0.81 KM |
| Maple Ridge School | Community Special School | Good | 0.84 KM |
| Merton Infant School | Community School | Good | 0.84 KM |
Images
Nearby Streets
| Name | Average Price | Average Sqft | Distance |
|---|---|---|---|
| Merton Road | £ 0 | 0 | 0.00 KM |
| Aldermaston Road Roundabout | £ 0 | 0 | 0.00 KM |
| Kingfisher Court | £ 185,000 | 0 | 0.00 KM |
| Wallingford Road | £ 190,000 | 0 | 0.00 KM |
| Austen Court | £ 0 | 0 | 0.00 KM |
Nearby Transport
| Name | NLC | TLC | Distance |
|---|---|---|---|
| Basingstoke | 5520 | BSK | 1.46 KM |
| Bramley (Hampshire) | 5500 | BMY | 7.39 KM |
Nearby Listings
| Address | Price | Type | Score | Distance |
|---|---|---|---|---|
| Osborne Close, Basingstoke, RG21 | £ 300,000 | BUY | Unknown | 0.00 KM |
| Upper Sherborne Road, Basingstoke | £ 325,000 | BUY | Unknown | 0.18 KM |
| UPPER SHERBORNE ROAD, BASINGSTOKE, HAMPSHIRE, RG21 | £ 325,000 | BUY | 6 / 10 | 0.20 KM |
| Millard Close, Basingstoke | £ 199,950 | BUY | Unknown | 0.21 KM |
| Hillary Road, Basingstoke, RG21 | £ 350,000 | BUY | 6 / 10 | 0.25 KM |
Nearby Properties
| Address | Price | Distance |
|---|---|---|
| 24 Millard Close | £ 127,500 | 0.09 KM |
| 6 Millard Close | £ 165,000 | 0.09 KM |
| 4 Millard Close | £ 236,000 | 0.09 KM |
| 18a Millard Close | £ 135,000 | 0.09 KM |
| 54 Osborne Close | £ 195,000 | 0.10 KM |