Kingsmere Park, London, NW9
By Phillip Shaw
£ 1,050,000
Reviews
4 out of 5 stars
Phillip Shaw says ..
Phillip Shaw Ltd is delighted to present this beautifully maintained four-bedroom home, perfectly positioned on the highly sought-after Kingsmere Avenue.
Property Oracle says ..
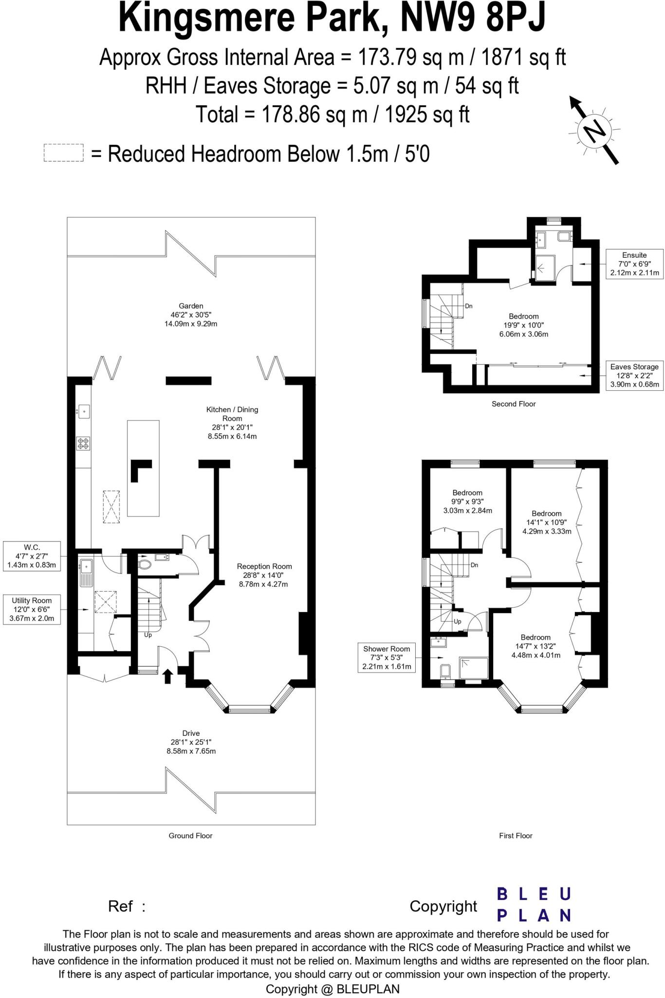
This property is a 4 bedroom, 2 bathroom semi-detached house located in Kingsmere Park, London. The property benefits from a large garden and is within easy reach of local schools and transport links. The house has been recently renovated to a high standard, with a modern kitchen and bathrooms. The asking price of £1,050,000 is higher than the average price for the area, but this is justified by the size of the property, its condition, and its location. Overall, this is a desirable property that is likely to appeal to families.
Therefore, we give this property 8 / 10. *Disclaimer: This is our option and does constitute a recommendation or financial advice. Do your own research. *
- Price
- 7
- Condition
- 9
- Location
- 9
- Land
- 8
- Bedrooms
- 4
- Bathrooms
- 2
- Sqft (est)
- 2,429.00
- Lot (est)
- 1,925.00
The heatmap indicates the level of crime in the area. The color of the heatmap indicates the crime severity and recency.
Metrics Year-on-Year
- Average area value
- 626,246.00 £Increased by 2.14 %
- Est sale value
- 1,467,116.00 £Increased by 5.78 %
- Average area rental value
- 2,336.00 £/moIncreased by 26.00 %
- Est letting value
- 4,858.00 £/moIncreased by 100.00 %
- Est rental Yield
- 4.48 %Increased by 23.42 %
- Crime Rate
- 3.00 %Unchanged by 0.00 %
Agent Activity
Phillip Shaw created the listing.
Nearby Schools
| Name | Type | Ofsted | Distance |
|---|---|---|---|
| St Nicholas School | Other Independent School | 0.43 KM | |
| Lycee International De Londres | Other Independent School | 0.69 KM | |
| Chalkhill Primary School | Community School | Good | 0.92 KM |
| Willows Children'S Centre | Children's Centre | 0.92 KM | |
| Fryent Primary School | Community School | Good | 0.96 KM |
Images
Nearby Streets
| Name | Average Price | Average Sqft | Distance |
|---|---|---|---|
| Daisy Close | £ 0 | 0 | 0.00 KM |
| Rawlings Crescent | £ 0 | 0 | 0.00 KM |
| Holly Grove | £ 0 | 0 | 0.00 KM |
| Laburnum Grove | £ 0 | 0 | 0.00 KM |
| Ken Way | £ 365,000 | 0 | 0.00 KM |
Nearby Transport
| Name | NLC | TLC | Distance |
|---|---|---|---|
| Wembley Stadium | 1509 | WCX | 2.53 KM |
| Stonebridge Park | 1454 | SBP | 2.99 KM |
| Hendon | 1522 | HEN | 3.55 KM |
| Wembley Central | 1423 | WMB | 3.61 KM |
| North Wembley | 1422 | NWB | 3.94 KM |
Nearby Listings
| Address | Price | Type | Score | Distance |
|---|---|---|---|---|
| Kingsmere Park, London, NW9 | £ 1,050,000 | BUY | 8 / 10 | 0.00 KM |
| Kingsmere Park, London, NW9 | £ 945,000 | BUY | 6 / 10 | 0.00 KM |
| Hill Drive, Kingsbury, London, NW9 | £ 785,000 | BUY | 6 / 10 | 0.08 KM |
| Hill Drive, Kingsbury, London, NW9 | £ 675,000 | BUY | Unknown | 0.10 KM |
| Hill Drive, Kingsbury London | £ 675,000 | BUY | 7 / 10 | 0.12 KM |
Nearby Properties
| Address | Price | Distance |
|---|---|---|
| 29 Kingsmere Park | £ 300,000 | 0.01 KM |
| 17 Kingsmere Park | £ 450,000 | 0.01 KM |
| 21 Kingsmere Park | £ 118,000 | 0.01 KM |
| 23 Kingsmere Park | £ 120,000 | 0.01 KM |
| 5 Kingsmere Park | £ 300,000 | 0.02 KM |