M
Coniston Avenue, Purfleet-On-Thames
By M & P Estates
£ 200,000
Reviews
3 out of 5 stars
M & P Estates says ..
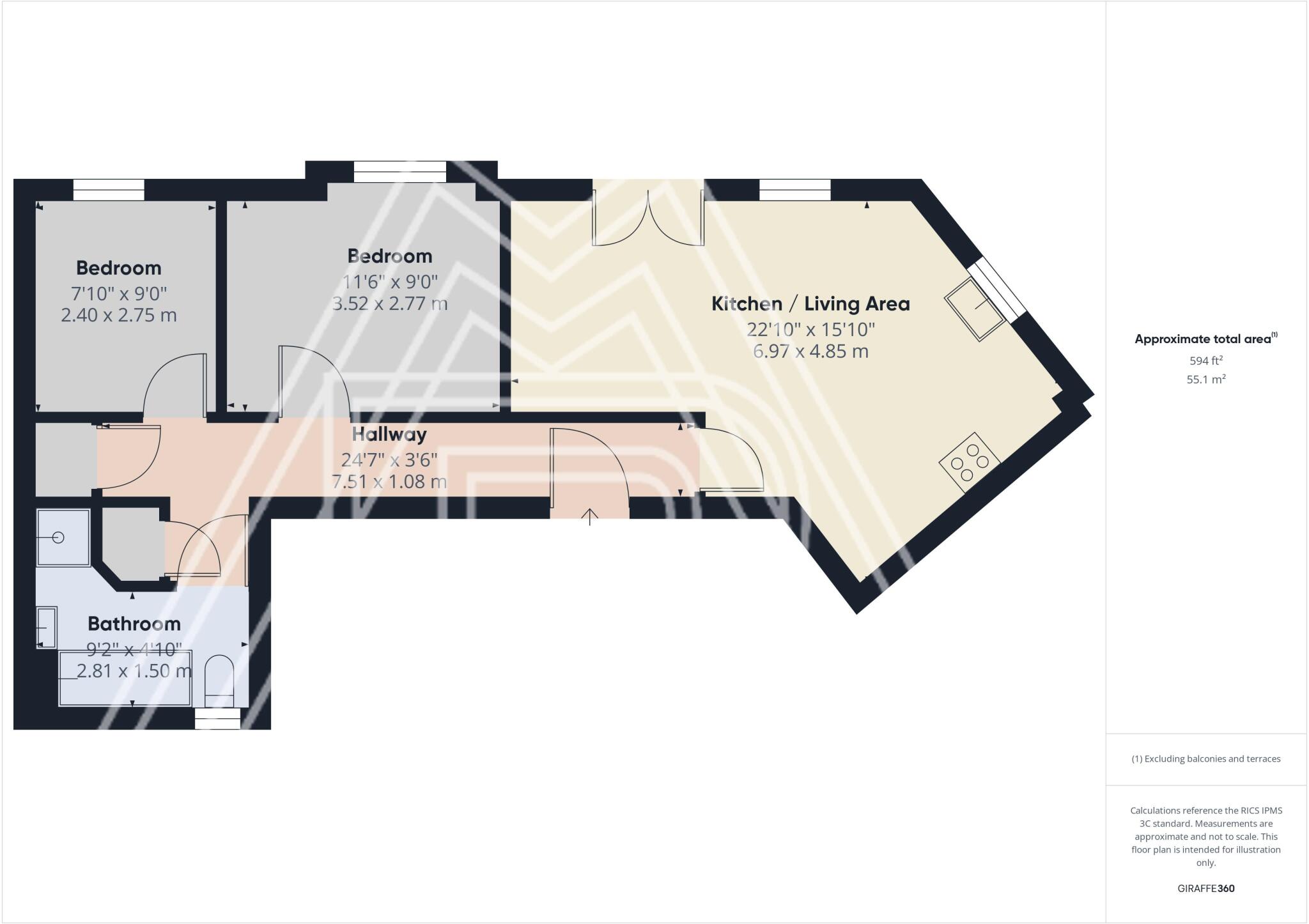
Ideal First-Time Purchase or Investment Opportunity Introducing this bright and stylish two-bedroom top floor flat on the sought-after Coniston Avenue, nestled just off London Road in Purfleet-on-Thames. With elevated panoramic views, including the iconic Queen Elizabeth II Bridge, and just mo...
Property Oracle says ..
Therefore, we give this property 7 / 10. *Disclaimer: This is our option and does constitute a recommendation or financial advice. Do your own research. *
- Price
- 8
- Condition
- 8
- Location
- 7
- Land
- 6
- Bedrooms
- 2
- Bathrooms
- 1
- Sqft (est)
- 593.09
The heatmap indicates the level of crime in the area. The color of the heatmap indicates the crime severity and recency.
Metrics Year-on-Year
- Average area value
- 266,429.00 £Decreased by 1.77 %
- Est sale value
- 249,690.89 £Increased by 21.68 %
- Average area rental value
- 1,389.00 £/moDecreased by 1.28 %
- Est letting value
- 1,186.18 £/moIncreased by 100.00 %
- Est rental Yield
- 6.26 %Increased by 0.64 %
- Crime Rate
- 19.00 %Unchanged by 0.00 %
from 271,236.00 £
from 205,209.14 £
from 1,407.00 £/mo
from 593.09 £/mo
from 6.22 %
from 19.00 %
Agent Activity
M & P Estates created the listing.
Nearby Schools
| Name | Type | Ofsted | Distance |
|---|---|---|---|
| Harris Academy Riverside | Free Schools | 0.75 KM | |
| Purfleet Primary Academy | Academy Sponsor Led | Good | 1.53 KM |
| Purfleet Children'S Centre P3-5 | Children's Centre | 1.96 KM | |
| Aveley Primary School | Academy Sponsor Led | 2.68 KM | |
| Dartford Bridge Community Primary School | Academy Sponsor Led | 2.82 KM |
Images
Nearby Streets
| Name | Average Price | Average Sqft | Distance |
|---|---|---|---|
| Purfleet Bypass | £ 0 | 0 | 0.00 KM |
| The Quadrant | £ 365,000 | 0 | 0.00 KM |
| Arterial Road Purfleet | £ 375,000 | 0 | 0.00 KM |
| Jurgen Road | £ 370,000 | 0 | 0.00 KM |
| Clare Court | £ 400,000 | 0 | 0.00 KM |
Nearby Transport
| Name | NLC | TLC | Distance |
|---|---|---|---|
| Purfleet | 7453 | PFL | 1.11 KM |
| Stone Crossing | 5248 | SCG | 3.63 KM |
| Chafford Hundred | 7447 | CFH | 4.56 KM |
| Dartford | 5101 | DFD | 4.67 KM |
| Greenhithe For Bluewater | 5138 | GNH | 4.91 KM |
Nearby Listings
| Address | Price | Type | Score | Distance |
|---|---|---|---|---|
| Coniston Avenue, Purfleet-On-Thames | £ 200,000 | BUY | 7 / 10 | 0.00 KM |
| Coniston Avenue, Purfleet on Thames | £ 219,000 | BUY | 7 / 10 | 0.00 KM |
| Kendal, Purfleet | £ 225,000 | BUY | 6 / 10 | 0.02 KM |
| Coniston Avenue, Purfleet-on-Thames, Essex, RM19 | £ 220,000 | BUY | 6 / 10 | 0.03 KM |
| Kendal, Purfleet-On-Thames | £ 240,000 | BUY | 7 / 10 | 0.07 KM |
Nearby Properties
| Address | Price | Distance |
|---|---|---|
| 12 Coniston Avenue | £ 168,995 | 0.01 KM |
| 8 Coniston Avenue | £ 178,500 | 0.01 KM |
| 6 Coniston Avenue | £ 210,000 | 0.01 KM |
| 14 Coniston Avenue | £ 168,995 | 0.01 KM |
| 4 Coniston Avenue | £ 138,000 | 0.01 KM |