Oscar James says ..
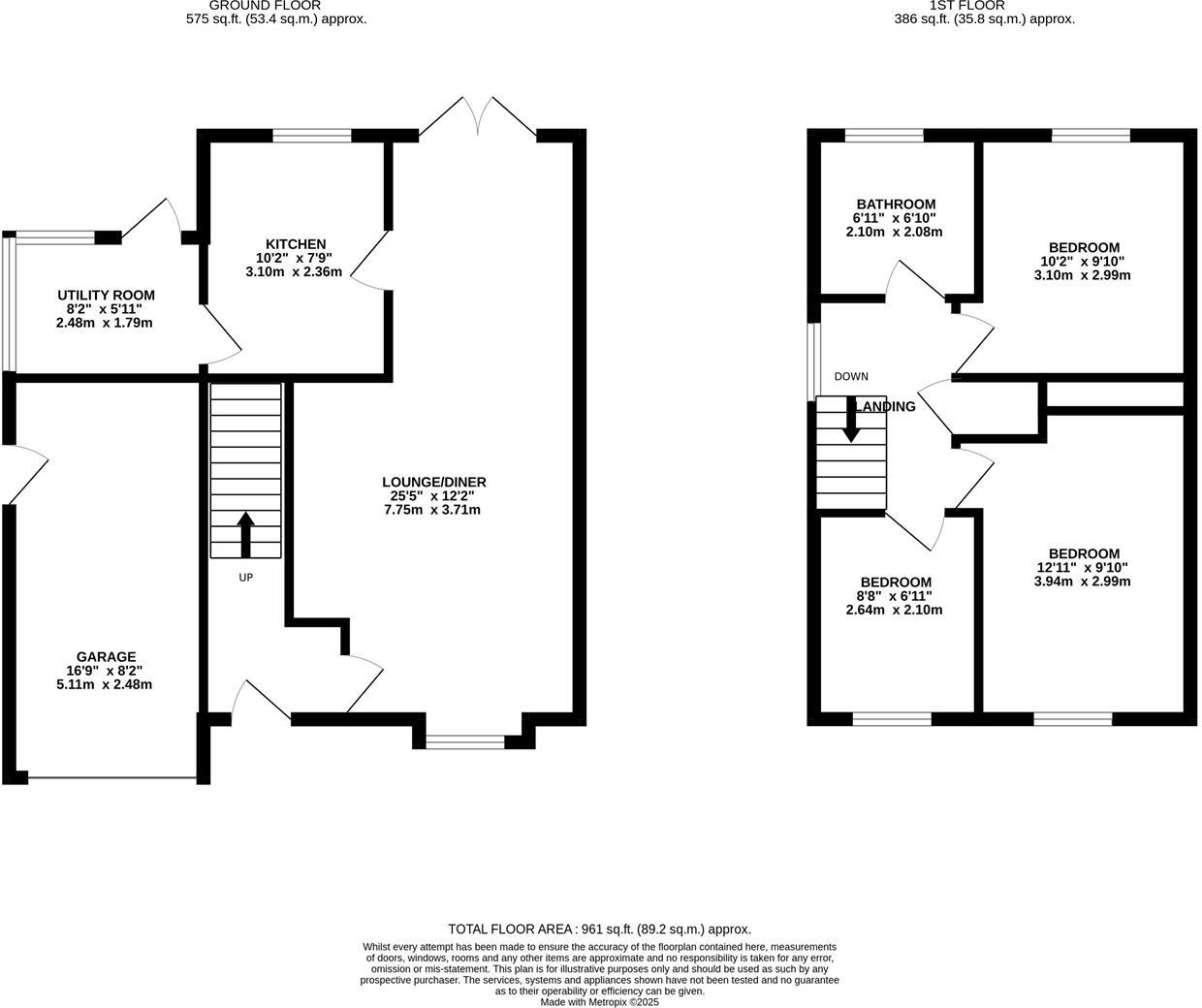
"Space Meets Style" This attractive and well-maintained three-bedroom detached modern home offers an excellent opportunity for families and buyers seeking comfortable, versatile living in a highly convenient location. Set towards the end of a pleasant and peaceful cul-de-sac, the property en...
Property Oracle says ..
This is a detached property in Uppingham, Rutland, featuring three bedrooms and one bathroom. The house spans 961 sqft and includes a garden. The property is conveniently located near schools and transportation links, making it suitable for families. While generally well-maintained, some areas could benefit from cosmetic improvements. The asking price of £330,000 appears reasonable given the location, size, and features of the property.
Therefore, we give this property 7 / 10. *Disclaimer: This is our option and does constitute a recommendation or financial advice. Do your own research. *
- Price
- 8
- Condition
- 7
- Location
- 7
- Land
- 8
- Bedrooms
- 3
- Bathrooms
- 1
- Sqft (est)
- 961.00
The heatmap indicates the level of crime in the area. The color of the heatmap indicates the crime severity and recency.
Metrics Year-on-Year
- Average area value
- 337,990.00 £Decreased by 7.08 %
- Est sale value
- 353,648.00 £Increased by 65.02 %
- Average area rental value
- 790.00 £/moDecreased by 33.39 %
- Est letting value
- 0.00 £/mo
- Est rental Yield
- 2.80 %Decreased by 28.39 %
- Crime Rate
- 40.00 %Unchanged by 0.00 %
Agent Activity
Oscar James created the listing.
Nearby Schools
| Name | Type | Ofsted | Distance |
|---|---|---|---|
| Uppingham Church Of England Primary School | Academy Converter | 0.19 KM | |
| Uppingham School | Other Independent School | 0.58 KM | |
| Leighfield Primary School | Academy Converter | Good | 0.77 KM |
| Uppingham Community College | Academy Converter | Good | 1.52 KM |
| Brooke Hill Academy | Academy Converter | Good | 7.74 KM |
Images
Nearby Streets
| Name | Average Price | Average Sqft | Distance |
|---|---|---|---|
| Oak Close | £ 0 | 0 | 0.00 KM |
| Queens Road | £ 0 | 0 | 0.00 KM |
| Chestnut Close | £ 0 | 0 | 0.00 KM |
| Chapman Place | £ 0 | 0 | 0.00 KM |
| London Road | £ 0 | 0 | 0.00 KM |
Nearby Transport
| Name | NLC | TLC | Distance |
|---|---|---|---|
| Oakham | 1904 | OKM | 8.98 KM |
Nearby Listings
| Address | Price | Type | Score | Distance |
|---|---|---|---|---|
| Oak Close., Uppingham, Rutland | £ 330,000 | BUY | 7 / 10 | 0.00 KM |
| Oak Close, Uppingham, Oakham | £ 330,000 | BUY | 7 / 10 | 0.00 KM |
| Oak Close, Uppingham | £ 337,500 | BUY | Unknown | 0.03 KM |
| Oak Close, Uppingham, Oakham | £ 310,000 | BUY | 7 / 10 | 0.03 KM |
| Oak Close, Uppingham, Rutland | £ 335,000 | BUY | 7 / 10 | 0.07 KM |
Nearby Properties
| Address | Price | Distance |
|---|---|---|
| 5 Caudebec Close | £ 315,000 | 0.03 KM |
| 6 Caudebec Close | £ 250,000 | 0.03 KM |
| 2 Caudebec Close | £ 230,000 | 0.03 KM |
| 7 Caudebec Close | £ 265,000 | 0.03 KM |
| 8 Caudebec Close | £ 377,000 | 0.03 KM |