AU
Wortley Lodge, St. Marys Close, Leeds, West Yorkshire
By Auction House
£ 40,000
Reviews
2 out of 5 stars
Auction House says ..
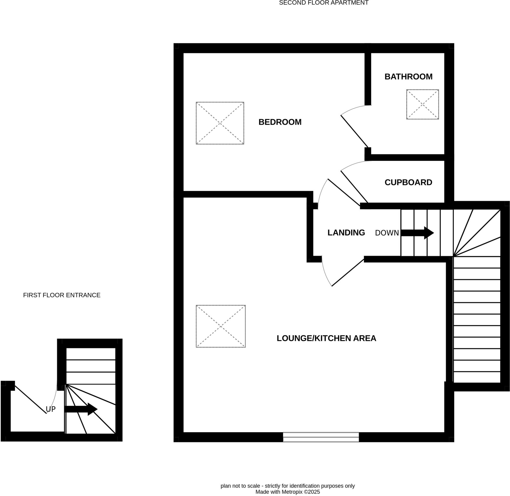
This one bedroom, second floor apartment is offered for sale via traditional auction and would make a great addition to a rental portfolio. Ideally located for commuting to Leeds city centre and is within easy reach of the ring road and Motorway networks. Leasehold informat...
Property Oracle says ..
Therefore, we give this property 4 / 10. *Disclaimer: This is our option and does constitute a recommendation or financial advice. Do your own research. *
- Price
- 9
- Condition
- 2
- Location
- 6
- Land
- 1
- Bedrooms
- 1
- Bathrooms
- 1
- Sqft (est)
- 485.60
The heatmap indicates the level of crime in the area. The color of the heatmap indicates the crime severity and recency.
Metrics Year-on-Year
- Average area value
- 158,332.00 £Decreased by 16.71 %
- Est sale value
- 118,000.80 £Increased by 43.79 %
- Average area rental value
- 837.00 £/moIncreased by 15.13 %
- Est letting value
- 485.60 £/mo
- Est rental Yield
- 6.34 %Increased by 38.13 %
- Crime Rate
- 16.00 %Unchanged by 0.00 %
from 190,105.00 £
from 82,066.40 £
from 727.00 £/mo
from 0.00 £/mo
from 4.59 %
from 16.00 %
Agent Activity
Auction House created the listing.
Nearby Schools
| Name | Type | Ofsted | Distance |
|---|---|---|---|
| Castleton Primary School | Community School | Good | 0.26 KM |
| Castleton Children'S Centre | Children's Centre | 0.28 KM | |
| Holy Family Catholic Primary School | Voluntary Aided School | Good | 0.64 KM |
| St Bartholomew'S Cofe Voluntary Controlled Primary School | Voluntary Controlled School | Good | 1.02 KM |
| Five Lanes Primary School | Community School | Good | 1.29 KM |
Images
Nearby Streets
| Name | Average Price | Average Sqft | Distance |
|---|---|---|---|
| Cheltenham Street | £ 0 | 0 | 0.00 KM |
| Highfield Gardens | £ 0 | 0 | 0.00 KM |
| Pickering Mount | £ 0 | 0 | 0.00 KM |
| Nunington Street | £ 135,000 | 0 | 0.00 KM |
| Castleton Close | £ 0 | 0 | 0.00 KM |
Nearby Transport
| Name | NLC | TLC | Distance |
|---|---|---|---|
| Burley Park | 8500 | BUY | 2.30 KM |
| Cottingley | 8505 | COT | 2.85 KM |
| Leeds | 8487 | LDS | 3.30 KM |
| Headingley | 8498 | HDY | 3.49 KM |
| Morley | 8504 | MLY | 4.84 KM |
Nearby Listings
| Address | Price | Type | Score | Distance |
|---|---|---|---|---|
| Wortley Lodge, St. Marys Close, Leeds, West Yorkshire | £ 40,000 | BUY | 4 / 10 | 0.00 KM |
| Wortley Lodge, St. Marys Close, Leeds, West Yorkshire | £ 70,000 | BUY | 5 / 10 | 0.00 KM |
| Gilpin View, Armley, Leeds, West Yorkshire, LS12 | £ 145,000 | BUY | 6 / 10 | 0.15 KM |
| Gilpin Terrace, Leeds, West Yorkshire, LS12 | £ 130,000 | BUY | 5 / 10 | 0.16 KM |
| Tong Road, Wortley, Leeds | £ 100,000 | BUY | 5 / 10 | 0.17 KM |
Nearby Properties
| Address | Price | Distance |
|---|---|---|
| 32 St Marys Close | £ 67,000 | 0.07 KM |
| 13a Gilpin View | £ 50,000 | 0.17 KM |
| 8 Gilpin View | £ 85,000 | 0.17 KM |
| 16 Gilpin View | £ 76,500 | 0.17 KM |
| 18 Gilpin View | £ 60,000 | 0.17 KM |