Sprowston Road, Norwich
Gilson Bailey logo

Sprowston Road, Norwich

By Gilson Bailey

£ 275,000

Reviews

3 out of 5 stars

Gilson Bailey says ..

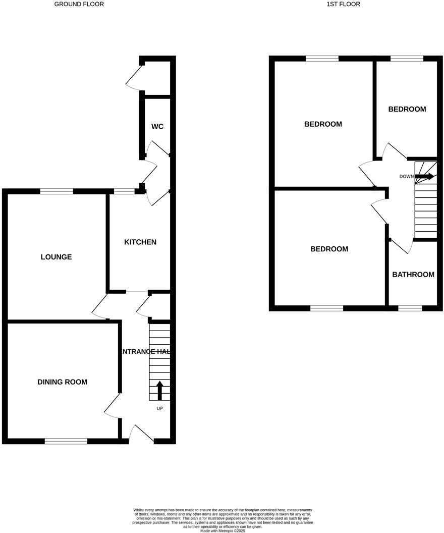
**HALL ENTRANCE NR3 TERRACE BACKING ONTO THE ALLOTMENTS** Gilson Bailey are delighted to offer with no onward chain, this beautifully presented hall entrance three-bedroom mid-terrace home, ideally located within walking distance of Norwich City Centre in the ever-popular NR3 area. The property b...

Property Oracle says ..

This is a traditional terraced property located on Sprowston Road in Norwich. It features three bedrooms and one bathroom, with a floor area of 692.30 sqft. The property includes a well-maintained garden with a greenhouse and decked area. While generally in good condition, some minor cosmetic updates could enhance its appeal. Its location offers convenient access to local schools and transportation links. The asking price of £275,000 appears reasonable considering the property’s size, location, and condition.

Therefore, we give this property 7 / 10. *Disclaimer: This is our option and does constitute a recommendation or financial advice. Do your own research. *

Price
7
Condition
7
Location
7
Land
8
Bedrooms
3
Bathrooms
1
Sqft (est)
692.30

The heatmap indicates the level of crime in the area. The color of the heatmap indicates the crime severity and recency.

Metrics Year-on-Year

Average area value
262,778.00 £
Increased by 18.64 %
from 221,500.00 £
Est sale value
203,536.20 £
Increased by 7.69 %
from 188,997.90 £
Average area rental value
1,094.00 £/mo
Decreased by 18.24 %
from 1,338.00 £/mo
Est letting value
692.30 £/mo
Unchanged by 0.00 %
from 692.30 £/mo
Est rental Yield
5.00 %
Decreased by 31.03 %
from 7.25 %
Crime Rate
4.00 %
Unchanged by 0.00 %
from 4.00 %

Agent Activity

  • Gilson Bailey created the listing.

Nearby Schools

NameTypeOfstedDistance
St. Clements Hill Primary AcademyFree Schools0.11 KM
George White Junior SchoolAcademy ConverterGood0.75 KM
Mousehold Infant & Nursery SchoolAcademy Converter0.81 KM
Sewell Park AcademyAcademy Sponsor LedRequires improvement0.84 KM
Magdalen Gates Primary SchoolCommunity SchoolGood1.28 KM

Images

IMG_4728-2.jpg IMG_4692-2.jpg IMG_4755-2.jpg IMG_4764-2.jpg IMG_4684-2.jpg IMG_4751-2.jpg IMG_4702-2.jpg IMG_4670-2.jpg IMG_4743-2.jpg IMG_4716-2.jpg IMG_4713-2.jpg IMG_4752-2.jpg IMG_4686-2.jpg IMG_4673-2.jpg IMG_4709-2.jpg IMG_4762-2.jpg IMG_4753-2.jpg IMG_4736-2.jpg IMG_4730-2.jpg IMG_4677-2.jpg IMG_4689-2.jpg IMG_4722-2.jpg IMG_4732-2.jpg IMG_4756-2.jpg IMG_4748-2.jpg IMG_4757-2.jpg

Nearby Streets

NameAverage PriceAverage SqftDistance
Le Safferne Gardens £ 295,00000.00 KM
Denmark Opening £ 000.00 KM
Marlow Court £ 675,00000.00 KM
Lusher's Loke £ 000.00 KM
Amos Bacon Close £ 350,00000.00 KM

Nearby Transport

NameNLCTLCDistance
Norwich7309NRW2.30 KM
Salhouse7318SAH9.99 KM

Nearby Listings

AddressPriceTypeScoreDistance
Sprowston Road, Norwich £ 275,000BUY7 / 100.00 KM
Sprowston Road, Norwich £ 250,000BUYUnknown0.04 KM
Sprowston Road, Norwich £ 250,000BUY6 / 100.04 KM
Sprowston Road, Norwich £ 250,000BUY6 / 100.04 KM
Le Safferne Gardens, Norwich £ 400,000BUY7 / 100.06 KM

Nearby Properties

AddressPriceDistance
397 Sprowston Road £ 170,0000.06 KM
293 Sprowston Road £ 218,5000.06 KM
317 Sprowston Road £ 87,5000.06 KM
321 Sprowston Road £ 223,0000.06 KM
325 Sprowston Road £ 230,0000.06 KM