Bradleys says ..
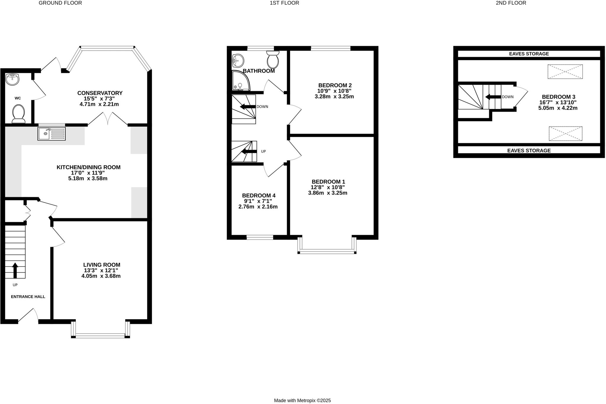
**STUNNING EXE ESTUARY VIEWS FROM ALL LEVELS** This 4-bed semi-detached 1920s home on sought-after Ryll Grove offers stunning estuary views from all levels. Features include two reception rooms, a living room and a south-facing conservatory, a modern kitchen/dining room, and rear garden...
Property Oracle says ..
This property is a 4-bedroom semi-detached house located in Exmouth, Devon. It benefits from a modern kitchen and conservatory extension, and has a good-sized garden. The property is well-presented and appears to be in good condition. The location is convenient, with nearby schools and transportation links. The list price of £475,000 is slightly above the average price for the area, but considering the property’s size, condition, and features, it could be considered reasonable. Further investigation into the plot size would be beneficial to provide a more complete assessment of value.
Therefore, we give this property 7 / 10. *Disclaimer: This is our option and does constitute a recommendation or financial advice. Do your own research. *
- Price
- 7
- Condition
- 8
- Location
- 8
- Land
- 7
- Bedrooms
- 4
- Bathrooms
- 1
- Sqft (est)
- 1,012.87
The heatmap indicates the level of crime in the area. The color of the heatmap indicates the crime severity and recency.
Metrics Year-on-Year
- Average area value
- 353,125.00 £Increased by 13.69 %
- Est sale value
- 434,521.23 £Increased by 22.92 %
- Average area rental value
- 1,100.00 £/moDecreased by 4.18 %
- Est letting value
- 1,012.87 £/moUnchanged by 0.00 %
- Est rental Yield
- 3.74 %Decreased by 15.77 %
- Crime Rate
- 7.00 %Unchanged by 0.00 %
Agent Activity
Bradleys created the listing.
Nearby Schools
| Name | Type | Ofsted | Distance |
|---|---|---|---|
| St Joseph'S Catholic Primary School, Exmouth | Academy Converter | Good | 0.30 KM |
| Exmouth Community College | Academy Converter | Requires improvement | 0.52 KM |
| Exeter Road Community Primary School | Foundation School | Good | 0.64 KM |
| Exeter Royal Academy For Deaf Education | Non-maintained Special School | Requires improvement | 0.80 KM |
| The Beacon Church Of England (Va) Primary School | Voluntary Aided School | Good | 0.95 KM |
Images
Nearby Streets
| Name | Average Price | Average Sqft | Distance |
|---|---|---|---|
| Bicton Villas | £ 0 | 0 | 0.00 KM |
| Albion Terrace | £ 200,000 | 0 | 0.00 KM |
| High View Gardens | £ 0 | 0 | 0.00 KM |
| Park Lane | £ 0 | 0 | 0.00 KM |
| Park Way | £ 345,000 | 0 | 0.00 KM |
Nearby Transport
| Name | NLC | TLC | Distance |
|---|---|---|---|
| Exmouth | 5756 | EXM | 1.03 KM |
| Lympstone Village | 5761 | LYM | 4.00 KM |
| Starcross | 3413 | SCS | 4.68 KM |
| Dawlish Warren | 3409 | DWW | 4.95 KM |
| Lympstone Commando | 5762 | LYC | 5.88 KM |
Nearby Listings
| Address | Price | Type | Score | Distance |
|---|---|---|---|---|
| Ryll Grove, Exmouth, Devon | £ 475,000 | BUY | 7 / 10 | 0.00 KM |
| Ryll Grove, Exmouth | £ 350,000 | BUY | Unknown | 0.02 KM |
| Fairview Terrace, Exmouth | £ 385,000 | BUY | 7 / 10 | 0.05 KM |
| Ryll Grove, Exmouth | £ 175,000 | BUY | 5 / 10 | 0.06 KM |
| Fair View Terrace, Exmouth | £ 395,000 | BUY | 6 / 10 | 0.07 KM |
Nearby Properties
| Address | Price | Distance |
|---|---|---|
| 30 Ryll Grove | £ 470,000 | 0.01 KM |
| 54 Ryll Grove | £ 279,950 | 0.01 KM |
| 56 Ryll Grove | £ 215,000 | 0.01 KM |
| 47 Ryll Grove | £ 243,000 | 0.01 KM |
| 34 Ryll Grove | £ 335,000 | 0.01 KM |