Yopa says ..
This modern two-bedroom first-floor flat is situated in the popular St. James' Village development in Gateshead. The property is ideal for first-time buyers, couples, and investors. The property offers contemporary living with excellent transport links to Newcastle city centre.
Property Oracle says ..
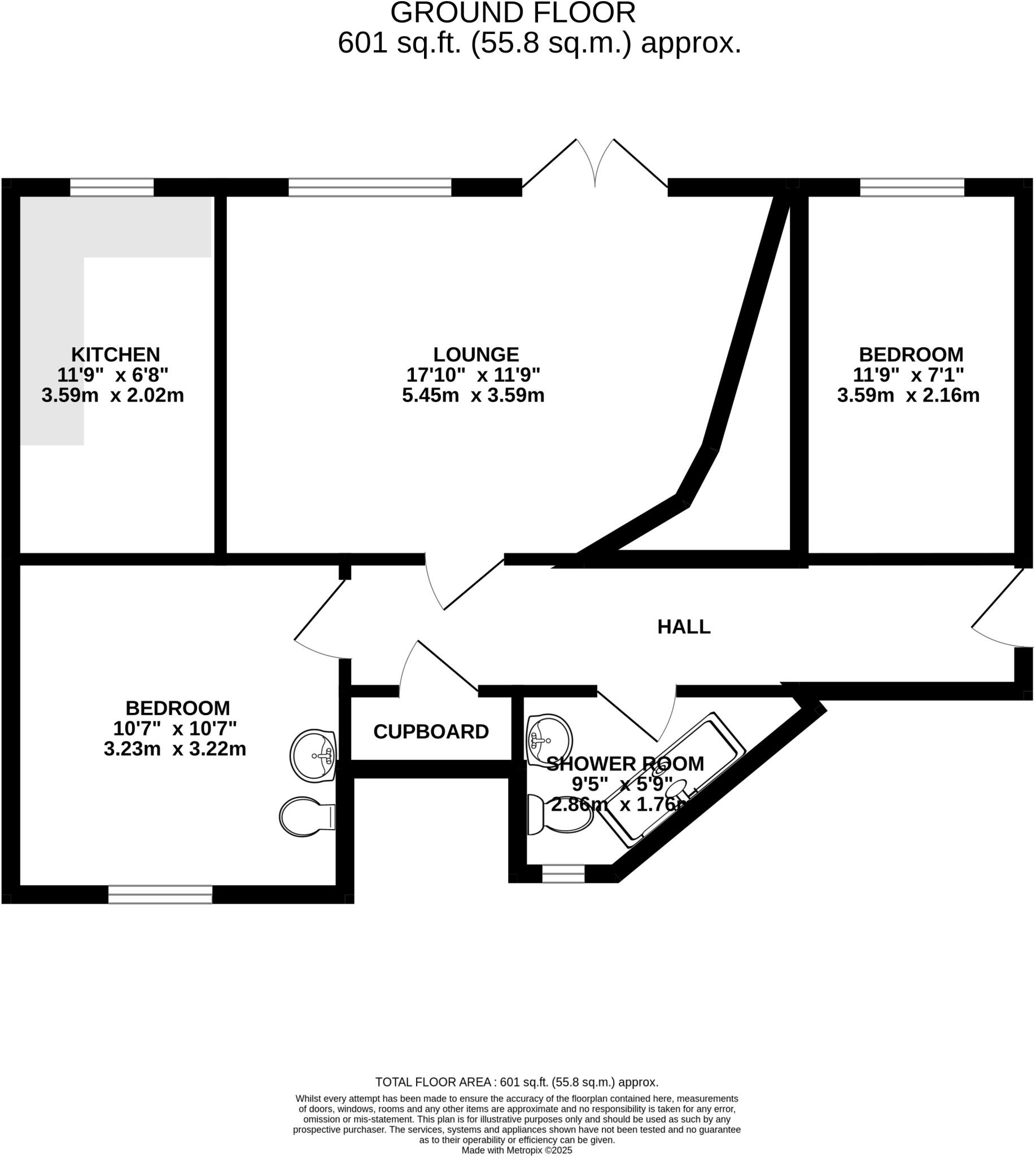
This property is a two bedroom flat located in Gateshead, Tyne and Wear. The property is well presented and benefits from a modern fitted kitchen and bathroom. Transport links are good with train stations and the metro system within a reasonable distance. There are also a number of schools nearby. The property is listed at £110,000 which is below the average price for the area. However, the average price per sqft is £231 and this property is £601 sqft. This means that the property is priced at approximately £139 per sqft which is significantly below the average. This could be due to the smaller size of the property or its location within the development. Overall, this property appears to be good value for money and would be suitable for a first-time buyer or investor.
Therefore, we give this property 6 / 10. *Disclaimer: This is our option and does constitute a recommendation or financial advice. Do your own research. *
- Price
- 8
- Condition
- 9
- Location
- 7
- Land
- 3
- Bedrooms
- 2
- Bathrooms
- 1
- Sqft (est)
- 601.00
- Lot (est)
- 601.00
The heatmap indicates the level of crime in the area. The color of the heatmap indicates the crime severity and recency.
Metrics Year-on-Year
- Average area value
- 131,874.00 £Decreased by 12.47 %
- Est sale value
- 102,170.00 £Decreased by 10.53 %
- Average area rental value
- 1,083.00 £/moIncreased by 0.65 %
- Est letting value
- 601.00 £/moUnchanged by 0.00 %
- Est rental Yield
- 9.85 %Increased by 14.94 %
- Crime Rate
- 3.00 %Unchanged by 0.00 %
Agent Activity
Yopa created the listing.
Nearby Schools
| Name | Type | Ofsted | Distance |
|---|---|---|---|
| Bede Community Primary School | Community School | Good | 0.52 KM |
| St Wilfrid'S Roman Catholic Voluntary Aided Primary School | Voluntary Aided School | Good | 0.58 KM |
| Bede Children'S Centre | Children's Centre Linked Site | 0.58 KM | |
| The Gateshead Cheder Primary School | Other Independent School | Inadequate | 1.23 KM |
| Gateshead Children'S Centre @ Deckham | Children's Centre | 1.37 KM |
Images
Nearby Streets
| Name | Average Price | Average Sqft | Distance |
|---|---|---|---|
| Grand Central Way | £ 0 | 0 | 0.00 KM |
| Kings Close | £ 0 | 0 | 0.00 KM |
| Elliot Road | £ 0 | 0 | 0.00 KM |
| Churchill Road | £ 125,000 | 0 | 0.00 KM |
| Highfield Road | £ 0 | 0 | 0.00 KM |
Nearby Transport
| Name | NLC | TLC | Distance |
|---|---|---|---|
| Manors | 7603 | MAS | 2.50 KM |
| Heworth | 7766 | HEW | 3.50 KM |
| Newcastle | 7728 | NCL | 3.56 KM |
| Dunston | 7744 | DOT | 6.26 KM |
| Metrocentre | 7725 | MCE | 8.77 KM |
Nearby Listings
| Address | Price | Type | Score | Distance |
|---|---|---|---|---|
| Foster Drive, Gateshead, NE8 | £ 110,000 | BUY | 6 / 10 | 0.00 KM |
| Foster Drive, Gateshead, NE8 | £ 100,000 | BUY | Unknown | 0.00 KM |
| Foster Drive, St James Village, Gateshead, NE8 | £ 109,950 | BUY | 6 / 10 | 0.00 KM |
| Foster Drive, St. James Village, Gateshead, NE8 | £ 75,000 | BUY | 5 / 10 | 0.03 KM |
| Foster Drive, St James Village, Gateshead | £ 145,000 | BUY | Unknown | 0.03 KM |
Nearby Properties
| Address | Price | Distance |
|---|---|---|
| 67 Foster Drive | £ 223,000 | 0.00 KM |
| 11 Foster Drive | £ 105,000 | 0.00 KM |
| 63 Foster Drive | £ 180,000 | 0.00 KM |
| 15 Foster Drive | £ 94,950 | 0.00 KM |
| 27 Foster Drive | £ 141,000 | 0.00 KM |