Brompton Farm Road, Strood, Rochester, Kent. ME2
By Moxy Property Consultants
£ 575,000
Reviews
3 out of 5 stars
Moxy Property Consultants says ..
When Location matters, Brompton Farm Road should be top of your list to view. Situated on one of Strood's most sought-after roads, this exquisite, semi-detached, five-bedroom residence offers a remarkable blend of modern living within a charming residential setting. Boasting not only a prime loca...
Property Oracle says ..
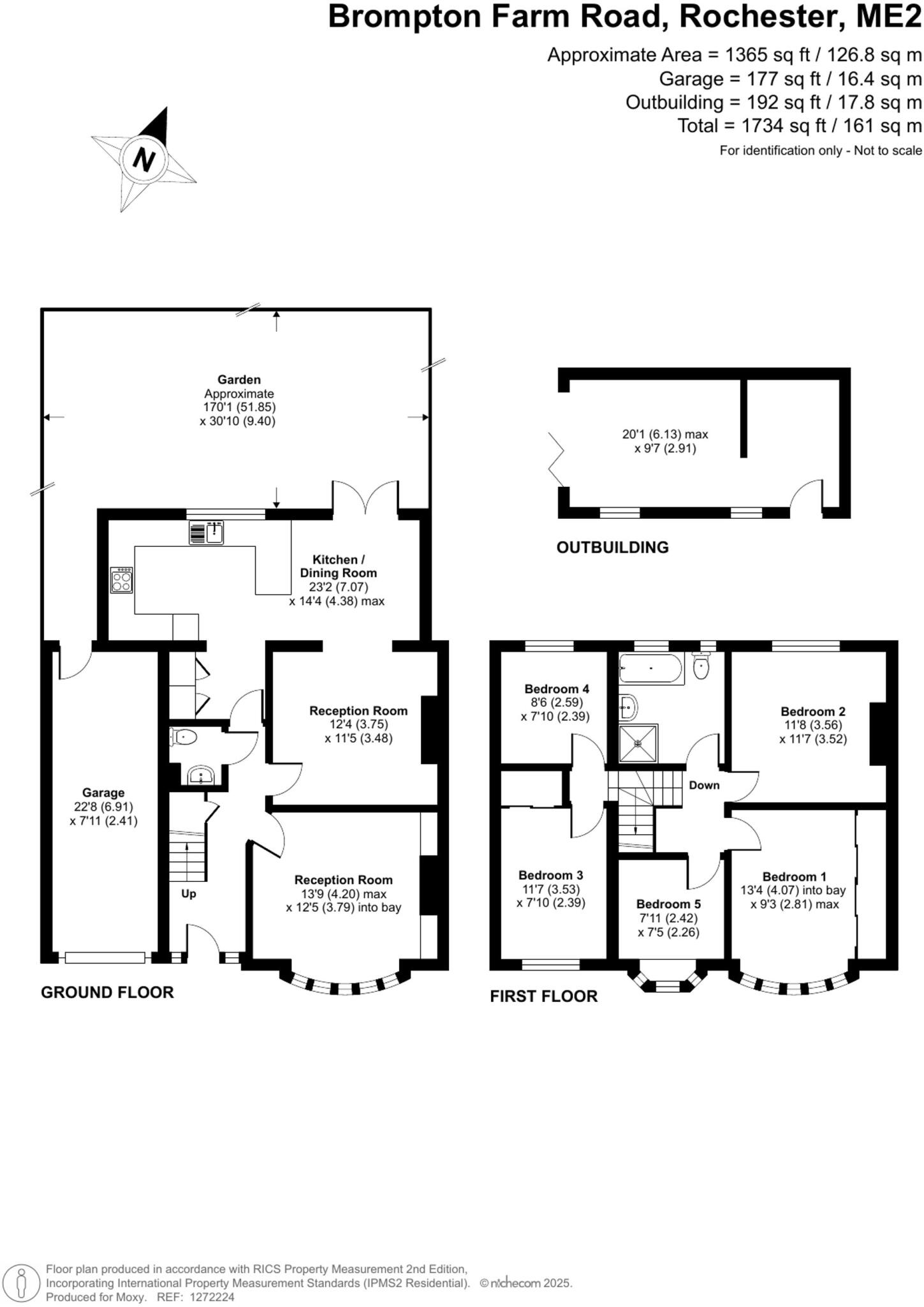
This property is a 5 bedroom, 1 bathroom semi-detached house located on Brompton Farm Road in Strood, Kent. The house is in excellent condition and has been recently renovated to a high standard, as evidenced by the modern kitchen and updated bathrooms. The property benefits from a large garden, which is well-maintained and includes a patio area, shed and play area. The location is convenient, with good access to local schools and transportation links. The asking price of £575,000 is slightly above the average price for the area, however, given the size of the property (6,644 sqft) and its excellent condition, it represents good value for money. The property also benefits from off-street parking.
Therefore, we give this property 7 / 10. *Disclaimer: This is our option and does constitute a recommendation or financial advice. Do your own research. *
- Price
- 7
- Condition
- 9
- Location
- 7
- Land
- 8
- Bedrooms
- 5
- Bathrooms
- 1
- Sqft (est)
- 6,644.00
- Lot (est)
- 1,734.00
The heatmap indicates the level of crime in the area. The color of the heatmap indicates the crime severity and recency.
Metrics Year-on-Year
- Average area value
- 224,000.00 £Decreased by 29.61 %
- Est sale value
- 2,232,384.00 £Increased by 13.13 %
- Average area rental value
- 1,116.00 £/moDecreased by 12.40 %
- Est letting value
- 6,644.00 £/moUnchanged by 0.00 %
- Est rental Yield
- 5.98 %Increased by 24.58 %
- Crime Rate
- 0.00 %
Agent Activity
Moxy Property Consultants created the listing.
Nearby Schools
| Name | Type | Ofsted | Distance |
|---|---|---|---|
| Abbey Court Foundation Special School | Community Special School | Outstanding | 0.47 KM |
| Gordons Children'S Academy, Junior | Academy Sponsor Led | Good | 0.93 KM |
| Gordons Children'S Academy, Infant | Academy Sponsor Led | Good | 0.93 KM |
| St Nicholas Church Of England Voluntary Controlled Infant School | Voluntary Controlled School | Outstanding | 1.21 KM |
| Manorway Independent School | Other Independent Special School | Inadequate | 1.29 KM |
Images
Nearby Streets
| Name | Average Price | Average Sqft | Distance |
|---|---|---|---|
| Russet Close | £ 0 | 0 | 0.00 KM |
| Crispin Road | £ 0 | 0 | 0.00 KM |
| Kaler Mews | £ 0 | 0 | 0.00 KM |
| A2 | £ 375,000 | 0 | 0.00 KM |
| Stonehorse Court | £ 900,000 | 0 | 0.00 KM |
Nearby Transport
| Name | NLC | TLC | Distance |
|---|---|---|---|
| Strood (Kent) | 5191 | SOO | 2.23 KM |
| Higham | 5202 | HGM | 2.98 KM |
| Rochester | 5203 | RTR | 3.81 KM |
| Cuxton | 5201 | CUX | 4.07 KM |
| Chatham | 5199 | CTM | 5.13 KM |
Nearby Listings
| Address | Price | Type | Score | Distance |
|---|---|---|---|---|
| Brompton Farm Road, Strood, Rochester, Kent. ME2 | £ 575,000 | BUY | 7 / 10 | 0.00 KM |
| Brompton Farm Road, Strood | £ 500,000 | BUY | 7 / 10 | 0.05 KM |
| Brompton Farm Road, Strood, Rochester, Kent. ME2 | £ 490,000 | BUY | 7 / 10 | 0.07 KM |
| Brompton Farm Road, Strood, Rochester, Kent. ME2 | £ 685,000 | BUY | 7 / 10 | 0.12 KM |
| Sandycroft Road, Strood | £ 390,000 | BUY | Unknown | 0.13 KM |
Nearby Properties
| Address | Price | Distance |
|---|---|---|
| 38 Brompton Farm Road | £ 275,000 | 0.01 KM |
| 4 Brompton Farm Road | £ 332,500 | 0.01 KM |
| 30 Brompton Farm Road | £ 369,000 | 0.01 KM |
| 52 Brompton Farm Road | £ 250,000 | 0.01 KM |
| 22 Brompton Farm Road | £ 342,000 | 0.01 KM |