Hightown Road, Ringwood, BH24
By Fells New Forest Property
£ 280,000
Reviews
3 out of 5 stars
Fells New Forest Property says ..
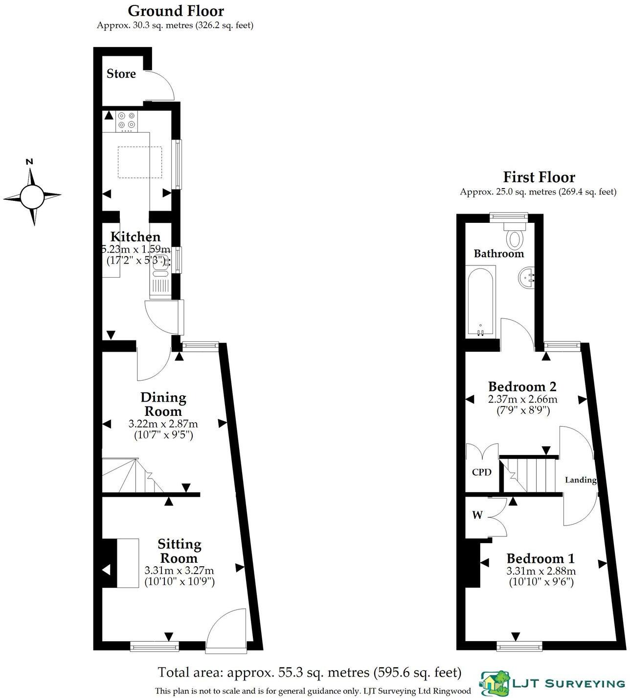
Charming two-bedroom period cottage in Ringwood with exposed brick fireplace, stylish kitchen, generous garden and no onward chain. A perfect blend of character and convenience.
Property Oracle says ..
This is a two-bedroom terraced house located on Hightown Road in Ringwood, Hampshire. The property is in a good location, within walking distance of local schools and shops. The property appears to be in reasonable condition, with a modern kitchen and bathroom. The property has a garden, which is a desirable feature. The property is listed for £280,000, which appears to be a reasonable price for a property of this type and location.
Therefore, we give this property 7 / 10. *Disclaimer: This is our option and does constitute a recommendation or financial advice. Do your own research. *
- Price
- 8
- Condition
- 7
- Location
- 7
- Land
- 6
- Bedrooms
- 2
- Bathrooms
- 1
- Sqft (est)
- 595.24
The heatmap indicates the level of crime in the area. The color of the heatmap indicates the crime severity and recency.
Metrics Year-on-Year
- Average area value
- 460,000.00 £Increased by 1.26 %
- Est sale value
- 268,453.24 £Increased by 39.20 %
- Average area rental value
- 1,049.00 £/moIncreased by 2.34 %
- Est letting value
- 595.24 £/mo
- Est rental Yield
- 2.74 %Increased by 1.11 %
- Crime Rate
- 13.00 %Unchanged by 0.00 %
Agent Activity
Fells New Forest Property created the listing.
Nearby Schools
| Name | Type | Ofsted | Distance |
|---|---|---|---|
| Ringwood Junior School | Community School | Good | 0.31 KM |
| Ringwood Church Of England Infant School | Voluntary Controlled School | Good | 0.35 KM |
| Pathways Children'S Centre | Children's Centre Linked Site | 0.37 KM | |
| Ringwood School Academy | Academy Converter | Good | 0.66 KM |
| Poulner Junior School | Community School | Good | 2.42 KM |
Images
Nearby Streets
| Name | Average Price | Average Sqft | Distance |
|---|---|---|---|
| Collins Lane | £ 0 | 0 | 0.00 KM |
| Monmouth Court | £ 0 | 0 | 0.00 KM |
| Manor Gardens | £ 0 | 0 | 0.00 KM |
| Gravel Lane | £ 675,000 | 0 | 0.00 KM |
| Moortown Lane | £ 0 | 0 | 0.00 KM |
Nearby Listings
| Address | Price | Type | Score | Distance |
|---|---|---|---|---|
| Hightown Road, Ringwood, BH24 | £ 280,000 | BUY | 7 / 10 | 0.00 KM |
| Ringwood, BH24 | £ 400,000 | BUY | 6 / 10 | 0.05 KM |
| Hightown Road, Ringwood, Hampshire, BH24 | £ 215,000 | BUY | 7 / 10 | 0.08 KM |
| Forest Gate | £ 192,500 | BUY | 6 / 10 | 0.09 KM |
| Barrows Mews, Ringwood, BH24 | £ 260,000 | BUY | 6 / 10 | 0.10 KM |
Nearby Properties
| Address | Price | Distance |
|---|---|---|
| 25 Hightown Road | £ 265,000 | 0.04 KM |
| 5 Hightown Road | £ 139,000 | 0.04 KM |
| 37 Hightown Road | £ 435,000 | 0.04 KM |
| 27 Hightown Road | £ 260,000 | 0.04 KM |
| 19 Hightown Road | £ 130,000 | 0.04 KM |