Marlborough Road, Wroughton, SN4
By Richard James
£ 285,000
Reviews
3 out of 5 stars
Richard James says ..
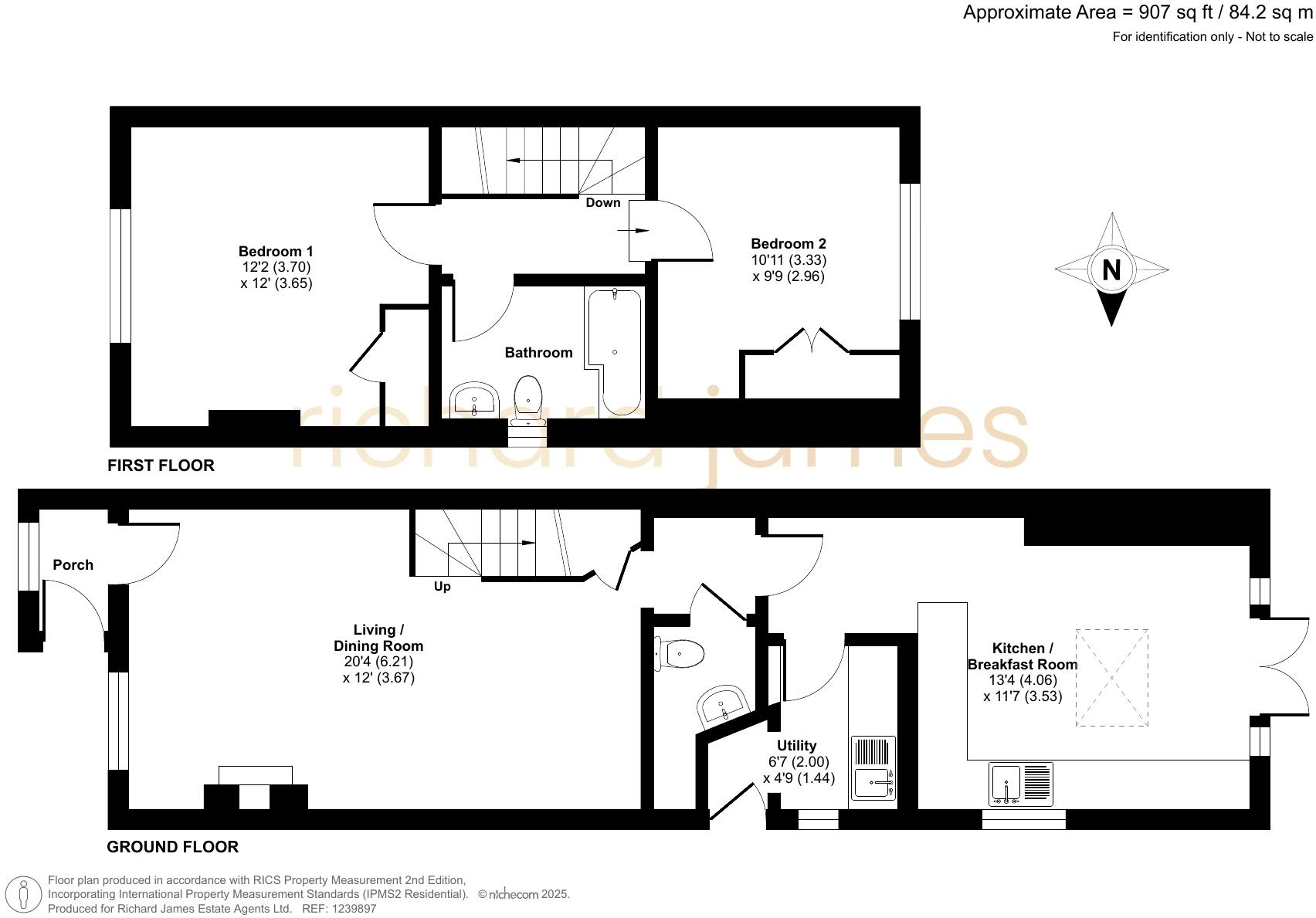
Guide Price £285,000-£295,000 A character semi-detached cottage, situated in the popular village of Wroughton. The property has been extended and updated throughout, and also features generous Westerly facing Rear Garden and off road parking for six vehicles.
Property Oracle says ..
This property is a 2-bedroom, 1-bathroom semi-detached house located in Wroughton, Swindon. The property benefits from a good-sized garden and appears to be well-maintained and modernised, based on the provided images. The location is convenient, with relatively close proximity to schools and a train station. However, the list price is significantly below the average price for the area, which may indicate a competitive price point or potential for negotiation. Further investigation into the specifics of the property’s condition and any potential drawbacks would be beneficial before making a final assessment.
Therefore, we give this property 7 / 10. *Disclaimer: This is our option and does constitute a recommendation or financial advice. Do your own research. *
- Price
- 6
- Condition
- 8
- Location
- 7
- Land
- 7
- Bedrooms
- 2
- Bathrooms
- 1
- Sqft (est)
- 677.00
- Lot (est)
- 907.00
The heatmap indicates the level of crime in the area. The color of the heatmap indicates the crime severity and recency.
Metrics Year-on-Year
- Average area value
- 460,714.00 £Increased by 27.86 %
- Est sale value
- 343,239.00 £Increased by 63.55 %
- Average area rental value
- 1,150.00 £/moDecreased by 37.30 %
- Est letting value
- 677.00 £/moUnchanged by 0.00 %
- Est rental Yield
- 3.00 %Decreased by 50.90 %
- Crime Rate
- 28.00 %Unchanged by 0.00 %
Agent Activity
Richard James marked this listing as sold.
Richard James created the listing.
Nearby Schools
| Name | Type | Ofsted | Distance |
|---|---|---|---|
| The Ridgeway School & Sixth Form College | Academy Converter | Good | 0.83 KM |
| East Wichel Primary School & Nursery | Community School | Good | 2.19 KM |
| The Croft Primary School | Academy Sponsor Led | Outstanding | 2.76 KM |
| The Commonweal School | Academy Converter | Good | 2.82 KM |
| Lethbridge Primary School | Academy Converter | Good | 3.04 KM |
Images
Nearby Streets
| Name | Average Price | Average Sqft | Distance |
|---|---|---|---|
| Saint Helens Gardens | £ 0 | 0 | 0.00 KM |
| Watercress Way | £ 390,000 | 0 | 0.00 KM |
| Old Bakery Road | £ 0 | 0 | 0.00 KM |
| Tall Conifers | £ 0 | 0 | 0.00 KM |
| Moat Walk | £ 0 | 0 | 0.00 KM |
Nearby Transport
| Name | NLC | TLC | Distance |
|---|---|---|---|
| Swindon (Wilts) | 3333 | SWI | 4.64 KM |
Nearby Listings
| Address | Price | Type | Score | Distance |
|---|---|---|---|---|
| Marlborough Road, Wroughton, SN4 | £ 285,000 | BUY | 7 / 10 | 0.00 KM |
| Marlborough Road, Wroughton, Swindon, SN4 | £ 260,000 | BUY | 7 / 10 | 0.02 KM |
| Marlborough Road, Wroughton, Swindon Wiltshire, SN4 | £ 177,500 | BUY | 6 / 10 | 0.03 KM |
| Marlborough Road, Wroughton, Swindon Wiltshire, SN4 | £ 265,000 | BUY | 6 / 10 | 0.03 KM |
| Marlborough Road, Wroughton, SN4 | £ 280,000 | BUY | Unknown | 0.03 KM |
Nearby Properties
| Address | Price | Distance |
|---|---|---|
| 56 Marlborough Road | £ 273,500 | 0.02 KM |
| 38 Marlborough Road | £ 210,000 | 0.02 KM |
| 10 Marlborough Road | £ 187,500 | 0.02 KM |
| 20 Marlborough Road | £ 164,000 | 0.02 KM |
| 28 Marlborough Road | £ 245,000 | 0.02 KM |