Bowden Bradley says ..
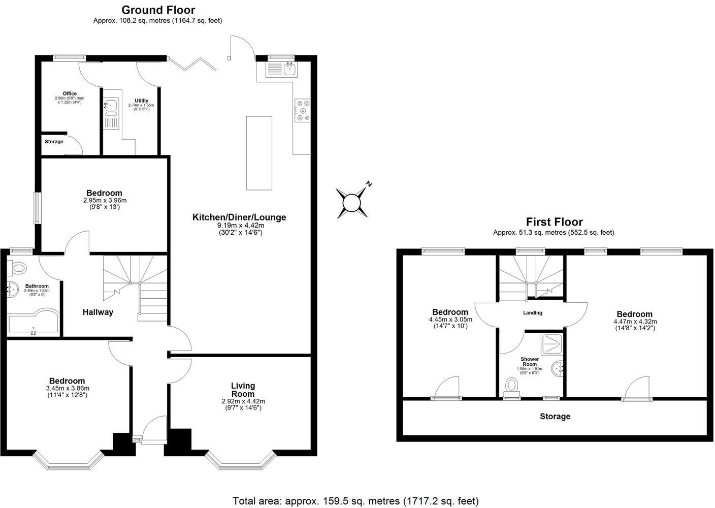
Mawney Road in the charming area of Collier Row, this stunning detached bungalow offers a perfect blend of modern living and convenience. With four spacious bedrooms and two well-appointed bathrooms, this property is ideal for families seeking comfort and style. The home has been fully refurbishe...
Property Oracle says ..
This is a detached bungalow on Mawney Road, Collier Row. The property features four bedrooms and two bathrooms. The house has been modernised and is in good condition. The property benefits from a garden. The property is located within a reasonable distance of schools and transportation. The listing price is £700,000.
Therefore, we give this property 7 / 10. *Disclaimer: This is our option and does constitute a recommendation or financial advice. Do your own research. *
- Price
- 7
- Condition
- 9
- Location
- 7
- Land
- 6
- Bedrooms
- 4
- Bathrooms
- 2
The heatmap indicates the level of crime in the area. The color of the heatmap indicates the crime severity and recency.
Metrics Year-on-Year
- Average area value
- 400,731.00 £Decreased by 13.42 %
- Average area rental value
- 1,775.00 £/moDecreased by 10.49 %
- Est rental Yield
- 5.32 %Increased by 3.50 %
- Crime Rate
- 4.00 %Unchanged by 0.00 %
Agent Activity
Bowden Bradley created the listing.
Nearby Schools
| Name | Type | Ofsted | Distance |
|---|---|---|---|
| St Patrick'S Catholic Primary School | Voluntary Aided School | Good | 0.68 KM |
| Crownfield Infant School | Community School | Good | 0.81 KM |
| Crownfield Junior School | Community School | Good | 0.81 KM |
| Collier Row Children'S Centre | Children's Centre | 1.01 KM | |
| Clockhouse Primary School | Community School | Good | 1.15 KM |
Images
Nearby Streets
| Name | Average Price | Average Sqft | Distance |
|---|---|---|---|
| Nelson Close | £ 0 | 0 | 0.00 KM |
| Elizabeth Close | £ 0 | 0 | 0.00 KM |
| Ash Close | £ 0 | 0 | 0.00 KM |
| Adams Close | £ 550,000 | 0 | 0.00 KM |
| Cook's Close | £ 425,000 | 0 | 0.00 KM |
Nearby Transport
| Name | NLC | TLC | Distance |
|---|---|---|---|
| Romford | 6886 | RMF | 2.92 KM |
| Chadwell Heath | 6874 | CTH | 4.62 KM |
| Gidea Park | 6877 | GDP | 4.86 KM |
| Goodmayes | 6878 | GMY | 6.49 KM |
| Emerson Park | 7473 | EMP | 6.81 KM |
Nearby Listings
| Address | Price | Type | Score | Distance |
|---|---|---|---|---|
| Mawney Road, Collier Row | £ 700,000 | BUY | 7 / 10 | 0.00 KM |
| Mawney Road, Romford, RM7 | £ 750,000 | BUY | 7 / 10 | 0.04 KM |
| Mawney Road, Romford, RM7 | £ 575,000 | BUY | 7 / 10 | 0.04 KM |
| Mawney Road, Romford, RM7 | £ 600,000 | BUY | 7 / 10 | 0.04 KM |
| Mawney Road, Romford, RM7 | £ 475,000 | BUY | 7 / 10 | 0.10 KM |
Nearby Properties
| Address | Price | Distance |
|---|---|---|
| 513 Mawney Road | £ 445,000 | 0.03 KM |
| 463 Mawney Road | £ 196,000 | 0.03 KM |
| 455 Mawney Road | £ 248,500 | 0.03 KM |
| 519 Mawney Road | £ 197,500 | 0.03 KM |
| 521 Mawney Road | £ 435,000 | 0.03 KM |