Jacobs Steel says ..
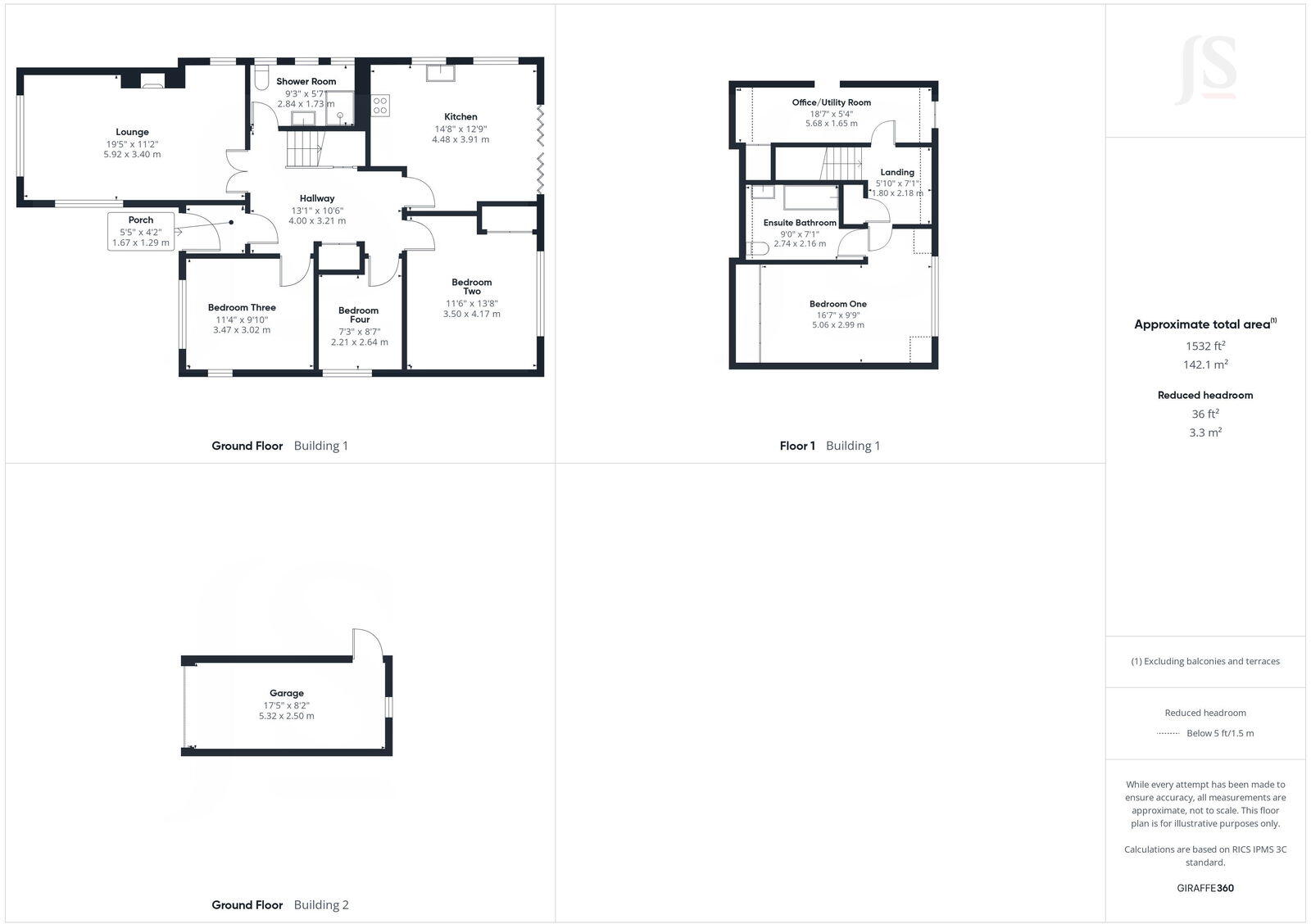
We are delighted to offer for sale this extended four bedroom detached chalet bungalow benefitting from off-road parking and garage situated within close proximity to Shoreham Beach.
Property Oracle says ..
Therefore, we give this property 7 / 10. *Disclaimer: This is our option and does constitute a recommendation or financial advice. Do your own research. *
- Price
- 6
- Condition
- 8
- Location
- 8
- Land
- 7
- Bedrooms
- 4
- Bathrooms
- 2
- Sqft (est)
- 1,325.43
The heatmap indicates the level of crime in the area. The color of the heatmap indicates the crime severity and recency.
Metrics Year-on-Year
- Average area value
- 417,776.00 £Increased by 5.86 %
- Est sale value
- 713,081.34 £Increased by 29.95 %
- Average area rental value
- 1,253.00 £/moDecreased by 3.76 %
- Est letting value
- 1,325.43 £/moUnchanged by 0.00 %
- Est rental Yield
- 3.60 %Decreased by 9.09 %
- Crime Rate
- 6.00 %Unchanged by 0.00 %
from 394,636.00 £
from 548,728.02 £
from 1,302.00 £/mo
from 1,325.43 £/mo
from 3.96 %
from 6.00 %
Agent Activity
Jacobs Steel marked this listing as sold.
Jacobs Steel created the listing.
Nearby Schools
| Name | Type | Ofsted | Distance |
|---|---|---|---|
| Swiss Gardens Primary School | Community School | Good | 1.00 KM |
| Buckingham Park Primary School | Community School | Good | 1.87 KM |
| Shoreham Beach Primary School | Community School | Good | 1.90 KM |
| St Peter'S Catholic Primary School, Shoreham-By-Sea | Voluntary Aided School | Good | 2.52 KM |
| Kingston Buci Children & Family Centre | Children's Centre | 2.67 KM |
Images
Nearby Streets
| Name | Average Price | Average Sqft | Distance |
|---|---|---|---|
| Kings Walk | £ 1,050,000 | 0 | 0.00 KM |
| Brighton Road | £ 264,950 | 0 | 0.00 KM |
| High Street | £ 289,975 | 0 | 0.00 KM |
| Raleigh Close | £ 0 | 0 | 0.00 KM |
| Bridges Bank | £ 0 | 0 | 0.00 KM |
Nearby Transport
| Name | NLC | TLC | Distance |
|---|---|---|---|
| Shoreham-By-Sea | 5277 | SSE | 1.51 KM |
| Lancing | 5275 | LAC | 4.36 KM |
| Southwick | 5286 | SWK | 5.31 KM |
| Fishersgate | 5284 | FSG | 7.14 KM |
| East Worthing | 5283 | EWR | 7.90 KM |
Nearby Listings
| Address | Price | Type | Score | Distance |
|---|---|---|---|---|
| Mardyke, Shoreham By Sea | £ 725,000 | BUY | 7 / 10 | 0.00 KM |
| Beach Green, Shoreham, West Sussex, BN43 | £ 900,000 | BUY | 8 / 10 | 0.06 KM |
| Havenside Shoreham Beach | £ 700,000 | BUY | 6 / 10 | 0.09 KM |
| Beach Green, Shoreham by Sea | £ 850,000 | BUY | 7 / 10 | 0.12 KM |
| Kings Walk, Shoreham-by-Sea, West Sussex, BN43 | £ 300,000 | BUY | 7 / 10 | 0.13 KM |
Nearby Properties
| Address | Price | Distance |
|---|---|---|
| 8 Mardyke | £ 485,000 | 0.00 KM |
| 3 Mardyke | £ 570,000 | 0.00 KM |
| 43 Beach Green | £ 275,000 | 0.06 KM |
| 35 Beach Green | £ 671,000 | 0.06 KM |
| 29 Beach Green | £ 545,000 | 0.06 KM |