Chancellors says ..
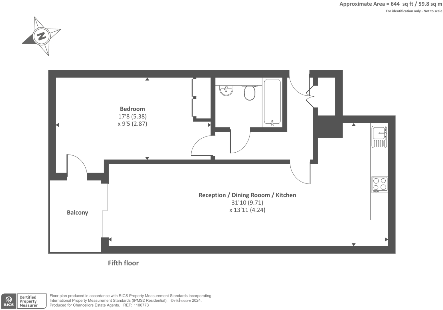
A one bedroom apartment located in Slough with a living room, entrance hall family bathroom and storage room. Under a mile to transport links in Slough Also with kitchen. Viewings highly recommended.
Property Oracle says ..
Therefore, we give this property 6 / 10. *Disclaimer: This is our option and does constitute a recommendation or financial advice. Do your own research. *
- Price
- 8
- Condition
- 6
- Location
- 7
- Land
- 3
- Bedrooms
- 1
- Bathrooms
- 1
- Sqft (est)
- 643.68
The heatmap indicates the level of crime in the area. The color of the heatmap indicates the crime severity and recency.
Metrics Year-on-Year
- Average area value
- 308,571.00 £Increased by 2.94 %
- Est sale value
- 237,517.92 £Decreased by 9.11 %
- Average area rental value
- 1,256.00 £/moDecreased by 11.74 %
- Est letting value
- 643.68 £/moUnchanged by 0.00 %
- Est rental Yield
- 4.88 %Decreased by 14.39 %
- Crime Rate
- 14.00 %Unchanged by 0.00 %
from 299,754.00 £
from 261,334.08 £
from 1,423.00 £/mo
from 643.68 £/mo
from 5.70 %
from 14.00 %
Agent Activity
Chancellors created the listing.
Nearby Schools
| Name | Type | Ofsted | Distance |
|---|---|---|---|
| Slough And Eton Church Of England Business And Enterprise College | Academy Converter | Outstanding | 0.81 KM |
| Littledown School | Academy Special Converter | Good | 0.81 KM |
| Darul Madinah | Other Independent Special School | 0.91 KM | |
| James Elliman Academy | Academy Sponsor Led | Good | 1.16 KM |
| Elliman Avenue Children'S Centre | Children's Centre | 1.19 KM |
Images
Nearby Streets
| Name | Average Price | Average Sqft | Distance |
|---|---|---|---|
| Chapel Street | £ 0 | 0 | 0.00 KM |
| Heritage Walk | £ 0 | 0 | 0.00 KM |
| Victoria Street | £ 532,500 | 0 | 0.00 KM |
| Finefield Walk1 | £ 457,000 | 0 | 0.00 KM |
| Park Street | £ 0 | 0 | 0.00 KM |
Nearby Transport
| Name | NLC | TLC | Distance |
|---|---|---|---|
| Slough | 3172 | SLO | 0.79 KM |
| Windsor And Eton Riverside | 5672 | WNR | 2.77 KM |
| Windsor And Eton Central | 3175 | WNC | 3.17 KM |
| Datchet | 5668 | DAT | 3.54 KM |
| Burnham | 3176 | BNM | 5.59 KM |
Nearby Listings
| Address | Price | Type | Score | Distance |
|---|---|---|---|---|
| Slough, Berkshire, SL1 | £ 270,000 | BUY | 5 / 10 | 0.00 KM |
| Slough, Berkshire, SL1 | £ 230,000 | BUY | 5 / 10 | 0.00 KM |
| Slough, Berkshire, SL1 | £ 180,000 | BUY | 6 / 10 | 0.00 KM |
| 26 High Street, Slough, SL1 | £ 175,000 | BUY | 6 / 10 | 0.10 KM |
| Chalvey Park, Slough | £ 265,000 | BUY | 5 / 10 | 0.12 KM |
Nearby Properties
| Address | Price | Distance |
|---|---|---|
| 89 Beechwood Gardens | £ 165,000 | 0.02 KM |
| 41 Beechwood Gardens | £ 265,000 | 0.02 KM |
| 49 Beechwood Gardens | £ 257,950 | 0.02 KM |
| 59 Beechwood Gardens | £ 268,000 | 0.02 KM |
| 65 Beechwood Gardens | £ 242,500 | 0.02 KM |