MA
Apperley Drive, Quedgeley , Gloucester
By Martin & Co
£ 185,000
Reviews
3 out of 5 stars
Martin & Co says ..
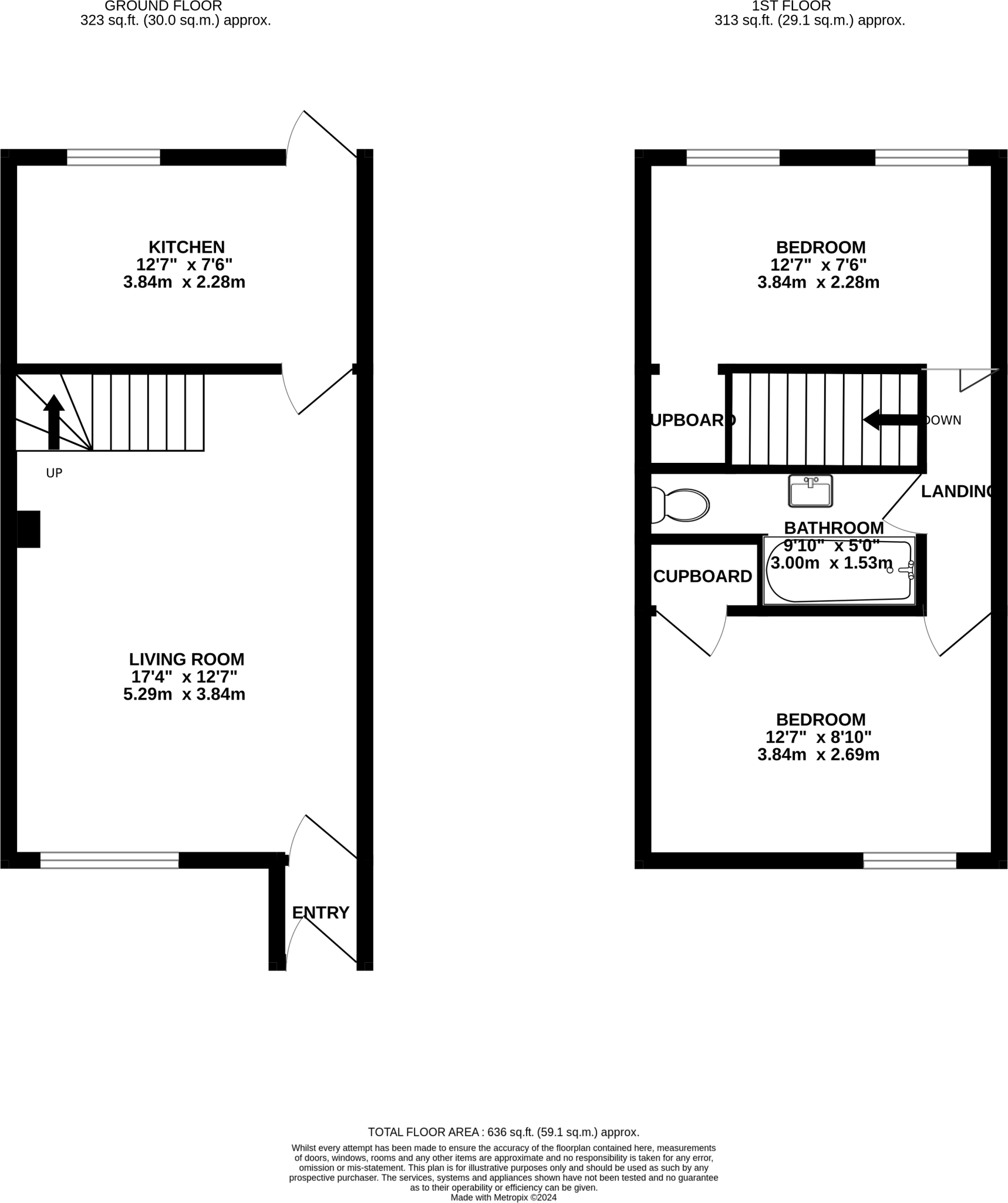
AVAILABLE NOW - NO CHAIN - 2 bedroom mid terraced house with entrance porch, lounge, kitchen to the rear, bathroom, UPVC double glazing, gas central heating, garden and parking. EPC, CTAX B. Limited indoor mobile coverage in this area
Property Oracle says ..
Therefore, we give this property 6 / 10. *Disclaimer: This is our option and does constitute a recommendation or financial advice. Do your own research. *
- Price
- 7
- Condition
- 4
- Location
- 7
- Land
- 6
- Bedrooms
- 2
- Bathrooms
- 1
The heatmap indicates the level of crime in the area. The color of the heatmap indicates the crime severity and recency.
Metrics Year-on-Year
- Average area value
- 290,495.00 £Decreased by 11.63 %
- Average area rental value
- 1,124.00 £/moIncreased by 4.46 %
- Est rental Yield
- 4.64 %Increased by 18.07 %
- Crime Rate
- 13.00 %Unchanged by 0.00 %
from 328,713.00 £
from 1,076.00 £/mo
from 3.93 %
from 13.00 %
Agent Activity
Martin & Co created the listing.
Nearby Schools
| Name | Type | Ofsted | Distance |
|---|---|---|---|
| Severn Vale School | Academy Converter | Good | 0.32 KM |
| Clearwater Church Of England Primary Academy | Free Schools | 0.38 KM | |
| Field Court Church Of England Infant Academy | Academy Converter | 0.86 KM | |
| Field Court Junior School | Academy Converter | Outstanding | 0.93 KM |
| Beech Green Primary School | Community School | Good | 0.94 KM |
Images
Nearby Streets
| Name | Average Price | Average Sqft | Distance |
|---|---|---|---|
| James Way | £ 0 | 0 | 0.00 KM |
| Brecon Close | £ 225,000 | 0 | 0.00 KM |
| Mulberry Close | £ 180,000 | 0 | 0.00 KM |
| Mallard Close | £ 0 | 0 | 0.00 KM |
| Quantock Road | £ 350,000 | 0 | 0.00 KM |
Nearby Transport
| Name | NLC | TLC | Distance |
|---|---|---|---|
| Gloucester | 4760 | GCR | 7.27 KM |
| Stonehouse | 4770 | SHU | 8.89 KM |
Nearby Listings
| Address | Price | Type | Score | Distance |
|---|---|---|---|---|
| Apperley Drive, Quedgeley , Gloucester | £ 185,000 | BUY | 6 / 10 | 0.00 KM |
| Apperley Drive, Quedgeley, Gloucester | £ 230,000 | BUY | 6 / 10 | 0.07 KM |
| Apperley Drive, Quedgeley, Gloucester, Gloucestershire, GL2 | £ 200,000 | BUY | Unknown | 0.09 KM |
| Apperley Drive, Quedgeley, GL2 | £ 205,000 | BUY | Unknown | 0.10 KM |
| Apperley Drive, Quedgeley, Gloucester, Gloucestershire, GL2 | £ 200,000 | BUY | 7 / 10 | 0.10 KM |
Nearby Properties
| Address | Price | Distance |
|---|---|---|
| 6 Tirley Close | £ 162,000 | 0.03 KM |
| 12 Tirley Close | £ 177,000 | 0.03 KM |
| 13 Tirley Close | £ 87,500 | 0.03 KM |
| 9 Tirley Close | £ 85,500 | 0.03 KM |
| 1 Tirley Close | £ 215,500 | 0.03 KM |