Wood Lane, Isleworth
AN

Wood Lane, Isleworth

By Anthony James Manser

£ 440,000

Reviews

3 out of 5 stars

Anthony James Manser says ..

Situated in a excellent location a ground floor apartment of excellent proportion and comprising of spacious living areas to include a reception room and separate dining area. There is a modern kitchen with built in oven, hob and extractor fan. There is also a modern bathroom with white corner ...

Property Oracle says ..

This 2-bedroom, 1-bathroom property located on Wood Lane, Isleworth, offers a blend of conveniences and potential. The property benefits from its location in a well-connected area with good access to public transport and well-regarded schools. The interior is presented in a fairly well-maintained condition, although a few cosmetic upgrades could make it more contemporary. The presence of a garden is a definite plus, though its modest size could be seen as a limiting factor for some buyers. The asking price seems reasonable when considering the property’s features and location, though additional information on nearby properties and property type would be beneficial to fully evaluate the price. A key aspect to note is the need for more information on the square footage of the property to help generate a better understanding of the overall value and if this is good value for money. Overall, this property would suit first-time buyers, small families, or investors seeking a property in a good location, with the understanding that some minor modernization may be needed.

Therefore, we give this property 6 / 10. *Disclaimer: This is our option and does constitute a recommendation or financial advice. Do your own research. *

Price
7
Condition
6
Location
7
Land
4
Bedrooms
2
Bathrooms
1
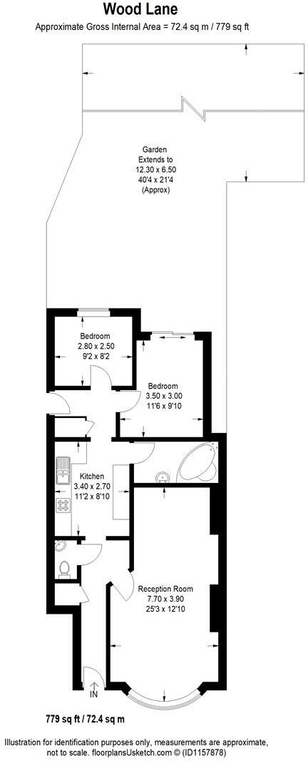
Sqft (est)
779.00

The heatmap indicates the level of crime in the area. The color of the heatmap indicates the crime severity and recency.

Metrics Year-on-Year

Average area value
731,667.00 £
Increased by 2.19 %
from 716,018.00 £
Est sale value
772,768.00 £
Increased by 100.81 %
from 384,826.00 £
Average area rental value
2,106.00 £/mo
Increased by 7.01 %
from 1,968.00 £/mo
Est letting value
1,558.00 £/mo
Increased by 100.00 %
from 779.00 £/mo
Est rental Yield
3.45 %
Increased by 4.55 %
from 3.30 %
Crime Rate
11.00 %
Unchanged by 0.00 %
from 11.00 %

Agent Activity

  • Anthony James Manser created the listing.

Nearby Schools

NameTypeOfstedDistance
The Woodbridge Park Education ServicePupil Referral UnitGood0.47 KM
Nishkam School West LondonFree SchoolsOutstanding0.57 KM
Isleworth And Syon School For BoysAcademy ConverterGood0.62 KM
Bolder AcademyFree Schools0.94 KM
Marlborough Primary SchoolCommunity SchoolGood0.96 KM

Images

111B Wood Lane Isleworth, TW7-LOW RES-2.jpg 111B Wood Lane Isleworth, TW7-LOW RES-12.jpg 111B Wood Lane Isleworth, TW7-LOW RES-11.jpg 111B Wood Lane Isleworth, TW7-LOW RES-1.jpg 111B Wood Lane Isleworth, TW7-LOW RES-8.jpg 111B Wood Lane Isleworth, TW7-LOW RES-9.jpg 111B Wood Lane Isleworth, TW7-LOW RES-7.jpg 111B Wood Lane Isleworth, TW7-LOW RES-6.jpg 111B Wood Lane Isleworth, TW7-LOW RES-5.jpg 111B Wood Lane Isleworth, TW7-LOW RES-10.jpg 111B Wood Lane Isleworth, TW7-LOW RES-13.jpg 111B Wood Lane Isleworth, TW7-LOW RES-14.jpg 111B Wood Lane Isleworth, TW7-LOW RES-15.jpg 111B Wood Lane Isleworth, TW7-LOW RES-16.jpg 111B Wood Lane Isleworth, TW7-LOW RES-19.jpg 111B Wood Lane Isleworth, TW7-LOW RES-24.jpg 111B Wood Lane Isleworth, TW7-LOW RES-28.jpg 111B Wood Lane Isleworth, TW7-LOW RES-32.jpg 111B Wood Lane Isleworth, TW7-LOW RES-17.jpg 111B Wood Lane Isleworth, TW7-LOW RES-18.jpg 111B Wood Lane Isleworth, TW7-LOW RES-27.jpg 111B Wood Lane Isleworth, TW7-LOW RES-35.jpg 111B Wood Lane Isleworth, TW7-LOW RES-21.jpg 111B Wood Lane Isleworth, TW7-LOW RES-22.jpg 111B Wood Lane Isleworth, TW7-LOW RES-23.jpg 111B Wood Lane Isleworth, TW7-LOW RES-25.jpg 111B Wood Lane Isleworth, TW7-LOW RES-26.jpg 111B Wood Lane Isleworth, TW7-LOW RES-33.jpg

Nearby Streets

NameAverage PriceAverage SqftDistance
Highfield Road £ 795,00000.00 KM
Henley Close £ 000.00 KM
Hartham Road £ 450,00000.00 KM
St. John's Road £ 685,00000.00 KM
Aylett Road £ 000.00 KM

Nearby Transport

NameNLCTLCDistance
Isleworth5592ISL0.79 KM
Syon Lane5609SYL1.23 KM
Brentford5552BFD2.98 KM
Hanwell3191HAN3.36 KM
St Margarets5604SMG3.42 KM

Nearby Listings

AddressPriceTypeScoreDistance
Wood Lane, Isleworth £ 440,000BUY6 / 100.00 KM
Borough Road, Isleworth, TW7 £ 460,000BUY7 / 100.08 KM
George Little House, Borough Road, Isleworth, Middlesex, TW7 £ 350,000BUY6 / 100.08 KM
Wood Lane, Isleworth, TW7 £ 750,000BUY7 / 100.11 KM
Harewood Road, Isleworth £ 745,000BUY6 / 100.12 KM

Nearby Properties

AddressPriceDistance
801 Great West Road £ 466,0000.14 KM
805 Great West Road £ 565,0000.14 KM
813 Great West Road £ 580,0000.14 KM
51 Wood Lane £ 900,0000.14 KM
63 Wood Lane £ 355,0000.14 KM